
屋主想在这套99平米的房子里进行第二次翻新改造。常住5-6口人,三代同堂,所以希望房屋从采光、通风、储物上都能得到最大的优化。
此外,在满足日常基础需求之上,还需将烹饪美食、观影、看书的爱好融入其中,让居家生活更惬意舒适。

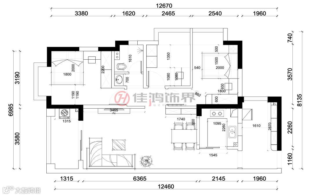
●原始户型图

●设计方案图
户型优化改造:厨房开窗,加强空气对流及采光,增强互动性;全屋定制柜体儿童房做榻榻米,增加储物空间;卫生间盥洗区外移,形成干湿分区方便使用。

玄关是个独立的入户花园,整体灰纹亮面地砖+纯白墙面空间,一个冰箱+一排绿植盆栽,靠墙布置通顶鞋帽衣柜,底部也做了留空。整体空间利用得精致而舒适。

厨房选择了较为清爽素净的搭配,灰色方砖简约好打理。原本空间并不算太大的厨房,由于空间上的联动,显得十分明亮开阔。

厨房和餐厅、入户之间用黑框玻璃隔断窗作为隔断,起到避免油烟的效果,而且黑框玻璃推拉窗搭配内部黑白灰的橱柜、墙地砖设计,也显得更有格调感。

客厅选择极简、自由灵活的陈设方式,以开阔的视觉、舒适的尺度打造轻松明快、可变化的室内氛围。

色彩是人们视觉上最为敏感的一种,灰蓝色电视背景在视觉上的舒适度,可以为整个空间的美观度加分。

选用低矮的L型沙发,视线刚好在电视机荧光屏,营造出最舒服的观影姿势,同时搭配岩板茶几和几何地毯,边角做圆弧处理,小朋友在地毯上玩耍也完全不用担心。

偏冷色系的客厅软装,通过绿植的衬托,增添生机。

餐厅与客厅之间,用双眼皮吊顶+主灯+筒灯辅助照明的形式塑造了整体层次感, 胡桃木的餐边柜保证了充足的收纳需求。

简单的三餐四季不需要过多的藻饰,轻盈的餐桌椅材质让就餐成为一件放松愉快的事情,桌面的绿植插瓶和铁艺钻石吊灯营造恰到好处的氛围感。


主卧室的床头背景墙刷成了和客厅一样的蓝色,高背床搭配绒面和纯棉的床品,一侧摆放定制的梳妆台和衣柜,整个卧室给人一种优雅深邃的感觉。

一幅腾跃的组合挂画彰显不羁,象征无限美好,阔步向前的生活愿望。


长辈房以舒压和助眠为主,用香槟色与木色营造出空间的调性,简约,清雅。卧室除了睡眠区域,还在两侧配置了床头柜和台灯,可满足睡前阅读的需要,也方便了老人家起夜。
层叠饰画和精致的物品摆件,为空间增添更多的层次与想象。

儿童房的背景墙刷成了浅浅的天蓝色,在这个量身打造的卧室里,预留了书桌书柜,是小朋友用来学习的地方,更是他的精神领域。靠窗定制榻榻米,带来大容量的储物空间,原木材质更贴近自然。
项目地址:蔚蓝城邦
设计风格:现代简约
户型面积:3房2厅 99㎡
👇👇👇
扫描二维码可观看VR全景哦


往期案例推荐
点击图片即可获取全文
全国热线:400-6065-645




