///
每一个属于自己的空间,都是对自我场域的一次搭建,是对自我精神的一次洗礼,更是对自我生活的一次断舍离,是生命哲学的倩影,也是人、物、时间在空间里的一次共生。
写在前面
Write in front
记得第一次沟通房子的装修需求时,客户委托了公司职员带我们去房子现场量尺,本人则忙于自己的事业,全年一大半的时间都是在外出差,无法到达现场。
所幸客户对装修方面还是很有见解的,装修过很多套房,经验丰富。此次装修虽然本人没在,但是需求及注意事项都有交代清楚。因为经常出差,在外都是住在酒店,客户不想自己家有酒店的感觉,同时对实际装修效果非常敏感,不需要太过亮眼和奢靡。喜欢简简单单的样子。
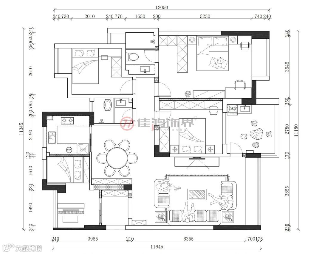
户型平面设计方案
Flat design plan
▲(原始户型图)
装修存在的问题:
1.房子属于旧房改造,房龄较久。前期打拆的时候需要非常的谨慎小心,为此也是特派了老房改造经验丰富的金牌管家进行全案施工。
2.因是二手房,原业主对房子的改动比较大,后期修复的费用会更高些。
3.客户属于经常出差的状态,常年不在本地。虽然装修过程中的对接非常不便,但在服务团队高密度的对接下,没有给工期带来过多的影响。
▲(平面布置图)
户型格局优化:
1.修复原业主改造的空间,使房屋焕然一新。
2.把原来的储物间和入户花园利用起来做成临时卧室,屋主有时候出差回来得较晚,拥有一个单独的卧室,可以不打扰到家人的休息。
效果呈现
Effect
Living room
客厅
01
▲客厅采用白色与米色的主色调,将原有阳台改为飘窗后,阳光透过窗户照射进屋内,带来朦胧的美感,自然又有诗意。
高级灰的L型布艺沙发,两个胡桃木茶几,高低错落,丰富了整个空间的层次美感。居中布置回环旋绕的吊灯,轻巧的造型,低调又时髦。
▲电视背景墙上方的筒灯照明,光量柔和充足,灯光向下打、不扩散。吊顶四周暗藏灯带,光线由内至外散发出来,明暗结合的搭配,整体营造出立体的氛围感。
整体造型简化,木饰面板与黑色线条结合,立脚的电视柜只占据下方一小块空间,在一片简约素净中,营造出一份温暖舒适。
Dinning room
餐厅
02
▲餐厅中间放置一款圆形的胡桃木餐桌,搭配六把同系列的餐椅,圆润、流畅的曲线,在出入餐桌时不易磕碰,提升了空间的质感与时尚感。
Kitchen
厨房
03
▲U型的厨房设计,动线合理,一侧是蒸饭区,另一侧是烹饪区,中间是洗切专用。烤漆面板的收纳柜,足以放下厨房各种小家电。
石英石的操作台面,实用而且美观,让每天的柴米油盐酱醋茶,散发着不一样的人间烟火味,小心翼翼地抚摸着凡人的心脏。
Master bedroom
主卧
04
▲越靠近身体的地方,越是高级质感的体现,每一晚的美梦都离不开卧室的加持,简约的意式风格,把主卧里的高级感描绘得淋漓尽致。
雅白的墙面、木纹的地砖,视觉流畅,空间实用,居室又给人以清新开朗之感。一侧是梳妆台和飘窗,一个完整的独立区域。
Second bedroom
次卧一
05
▲拼接色的高背床,其外形条纹肌理分明,配合上活力橙的纯棉床品,整体为空间带来简约的秩序美。
▲通过衣柜的定制延伸,打造了立体的写字桌,也可作为临时的办公使用,整体优雅而轻盈。
Second bedroom
次卧二
06
▲次卧白色与木色的撞色,打造出温暖舒适的睡眠环境。草绿色的软包床,精致的书桌椅与通顶衣柜,营造出休闲时尚的空间氛围。
Main guard
卫生间
07
▲卫生间空间较大,玻璃隔断通透避免沉闷,银色浴具、陶瓷马桶,细腻丰富的材质搭配,凸显功能性空间的美学体验。
▲灰色背景与黑色浴室柜的搭配,充满了质感,也是都市未来的时尚。留白的台面,可放置更多的洗护物品,方便拿取。
最后,我们来听听设计师怎么说:
Q1:在整个装修设计期间您有碰到过挑战吗,是如何解决的?
由于客户经常处于出差状态,设计效果的落地和中间的沟通显得非常的吃力。这时候,我会不断地调整,并将效果发给客户确认,落地时也需要去工地现场对接,再次发给客户,确认工程的顺利进行。
总结来说:房子不管大小,装修费用不管多少,设计能落地,客户满意就是最好。
Q2:您是如何实现客户的一些需求的?
前期是以参考图确定客户喜欢的方向和大致模样,再给到客户实际落地后的效果,结合了客户及家人的意见,最终得到满意的答复,实现完美交付。
Q3:完工后,您觉得房子是否符合客户的期望,筑造出了理想中家的模样?
目前处于收尾阶段,在整个合作过程中,客户对我们的关怀和认可,经常让我和工程团队感到很暖心。很期待客户举办入伙仪式的那一天(业主还在挑良辰吉日,届时我们也会参加,记录下这令人难忘的美好时刻)
部分装修信息:
设计师:林睦权
案例楼盘:世纪名城
面积:133㎡
户型:4房2厅
风格:现代简约
设计材料:
布艺、胡桃木、木饰面板、石英石、玻璃等
设计师
Designer
往期案例推荐
点击图片即可获取全文
推荐阅读
佳鸿饰界,全称广东佳鸿饰界装饰设计工程有限公司,国家注册商标,注册资金1000万人民币。05年成立于广州,是集住宅与商业空间的装饰设计、施工、建材、家具、配饰、售后和增值售后为一体的一站式家居连锁服务商。佳鸿饰界以环保透明为企业的发展特色,是全国最先倡导环保透明家装的品牌。
目前旗下注册商标品牌: 佳鸿饰界整装、谷间私宅、非凡同创3大品牌,同时有佳鸿V8.大宅,佳鸿VV软装两个事业部。在东莞寮步、东莞常平、东莞虎门、东莞塘厦、珠海香洲、惠州大亚湾、惠州博罗、惠州惠阳、惠州罗阳、惠州惠东、惠州惠城、惠州仲恺、中山等地设有分公司,是广东省最具竞争力装饰公司之一及全国头部家装500强企业。
Honors
资质荣誉
中国头部家装500强企业
广东省守合同重信用企业
中国室内装饰协会会员单位
中国农业银行战略合作单位
湖南设计力量发起单位
东莞市室内建筑设计行业协会单位
百城设计联盟最佳设计创意奖
国家室内装饰企业设计乙级资质单位
国家室内装饰企业施工乙级资质单位
房天下2016年度中国家居风云榜--暨业主喜爱的家居品牌
2016年度装修品牌榜最受业主信任的互联网装修口碑品牌
校企合作企业联盟单位
2016年家装战略合作百强企业
2018年中国商业汇最具口碑装饰设计公司 网络评选大赛冠军
中国室内建筑学会室内设计分会会员单位
APDF亚太设计联盟会员单位
保利地产战略合作客户
万科战略合作客户
......

广东佳鸿饰界
16年专注环保透明家装
一站式整体家装服务商
淘宝/网页搜索“广东佳鸿饰界”都可以找到我们哦!










