是随意也是惬意
有温柔也有温度
通过设计从大众化的房子
到富有个人气质的家
以不同材质和简约线条打造空间的质感
让家回归现代自然宅居的舒适本质
///
[ 全景案例 ]
Modern minimalist style
现代简约风格
楼盘 |Real estate-宝麒花园
面积 |Area-168 m²
户型 |Unit type-三房两厅
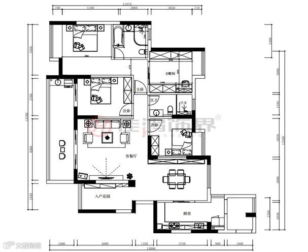
『 平面布置图 』
▼
设计灵感
本案以当下年轻人钟爱的白色为主色调,亮色作为点缀穿插其中,克制而热烈,不同材质的运用为空间注入不同的情绪,增添了层次感。与细节处兼顾功能与美观,建立起人与空间、生活、艺术相互阐释的契机,为居者构建起一个安放生活与个性的理想家。
设计材料
美国PPG大师漆、玻璃、布艺等
♀♀♀♀♀♀
入户做了一整面的玄关柜,摆上一个落地镜,并在顶上装筒灯,整个空间都显得格外的温馨精致。通顶的收纳柜,中部和底部合理留空,白色的柜体更简约现代。
♀♀♀♀♀♀
客厅以年轻的现代简约风格基础搭配,水波纹的背景墙搭配轻奢电视柜,以绿植点缀,整体格外的优雅大方。
左右滑动查看更多
采用了圆润的茶几、边几和真皮的沙发、天鹅椅,空间布置简约实用又很耐看,留出了足够宽敞的活动空间。沙发背景墙运用了现代时尚挂画做装饰,玻璃的落地窗进行了光的延伸,空间的暖意与柔美呼之欲出。
♀♀♀♀♀♀
客餐厅以地砖划线圈出不同的区域,移步之间,体验感更微妙、更有生活仪式感,也使得全屋尽量保持了一个不影响视线,采光通透的空间布局。
餐厅选择方形餐桌,无论是小两口用餐还是更多家庭成员的就餐,都充满了温馨的氛围。
♀♀♀♀♀♀
双门洞的设计,既是生活阳台也兼有休闲的功用,体验感与互动性更强。
同时将洗衣机外置,也让日常生活更便利。蓝色小方砖上墙,带来清新质感。
♀♀♀♀♀♀
主人房是脏粉的主题色调,米色的软包床卧,由淡淡的蓝调点缀,营造出舒适的睡眠氛围。
床头的梳妆柜,布置上智能的LED圆形小镜,千鸟格纹的座椅,使得整个睡卧区十分浪漫又不乏生活的精致感。
♀♀♀♀♀♀
主卧衣帽间以开放收纳为主,让琳琅满目的物品尽收眼底,生活就该如此轻松方便。
梳妆台、大衣、包包等各有专属的区域,显得井然有序。
♀♀♀♀♀♀
儿童房在布莱茵蓝的背景基础下,墙脚部分是一圈白色的踢脚线,配上深蓝色的小床和床头柜,还有童趣的图案,充满了轻松惬意的气息。飘窗小巧轻盈,让空间透气而舒适。
♀♀♀♀♀♀
简洁的配色+硬包床头背景,双人高背床卧和大大的飘窗,满足可坐可卧可躺的场景需求,整体设计一丝不乱,干净宜人。
左右滑动查看更多
♀♀♀♀♀♀
卫生间浴缸、浴室柜、镜柜、独立淋浴房、马桶呈现U型排列,提升了整个卫浴空间的设计格调,也便捷了业主夫妇俩人高效有序的起居生活。
淋浴区采用壁龛满足洗浴收纳需求,地面通铺哑光地砖,完美地兼顾了空间功能实用性和隐私性。

往期案例推荐
点击图片即可获取全文
推荐阅读
佳鸿饰界,全称广东佳鸿饰界装饰设计工程有限公司,国家注册商标,注册资金1000万人民币。05年成立于广州,是集住宅与商业空间的装饰设计、施工、建材、家具、配饰、售后和增值售后为一体的一站式家居连锁服务商。佳鸿饰界以环保透明为企业的发展特色,是全国最先倡导环保透明家装的品牌。
目前旗下注册商标品牌: 佳鸿饰界整装、谷间私宅、非凡同创3大品牌,同时有佳鸿V8.大宅,佳鸿VV软装两个事业部。在东莞寮步、东莞常平、东莞虎门、东莞塘厦、珠海香洲、惠州大亚湾、惠州博罗、惠州惠阳、惠州罗阳、惠州惠东、惠州惠城、惠州仲恺、中山等地设有分公司,是广东省最具竞争力装饰公司之一及全国头部家装500强企业。
Honors
资质荣誉
中国头部家装500强企业
广东省守合同重信用企业
中国室内装饰协会会员单位
中国农业银行战略合作单位
湖南设计力量发起单位
东莞市室内建筑设计行业协会单位
百城设计联盟最佳设计创意奖
国家室内装饰企业设计乙级资质单位
国家室内装饰企业施工乙级资质单位
房天下2016年度中国家居风云榜--暨业主喜爱的家居品牌
2016年度装修品牌榜最受业主信任的互联网装修口碑品牌
校企合作企业联盟单位
2016年家装战略合作百强企业
2018年中国商业汇最具口碑装饰设计公司 网络评选大赛冠军
中国室内建筑学会室内设计分会会员单位
APDF亚太设计联盟会员单位
保利地产战略合作客户
万科战略合作客户
......

广东佳鸿饰界
16年专注环保透明家装
一站式整体家装服务商
淘宝/网页搜索“广东佳鸿饰界”都可以找到我们哦!










