
恣意洒脱的设计,开启无边界的审美。设计师作为美好家居的圆梦者,以超凡的设计能力,给居住者一个梦想的居所。
项目地址 | Address:寮步自建房
设计风格 | Style:现代简约
项目面积 | Area:120㎡
户型格局 | Apartment:3房2厅2卫
使用材料 | Materials:
木材、大板砖、铝合金
[ JIAHONG实景案例 ]
01
门厅设计



进门后,拾阶而上,我们来到了屋主一家人的生活区。一幅“平安喜乐”的挂画象征着对家人、对日子最大的期盼。

本案户型进深较大,从过道可以看出,正对入户门的是厨房,往里则是客餐厅公区和卧室休息区,呈左右两侧分布,形成流畅的洄游路线。
02
厨房设计


▲三联动移门效果展示
厨房采用三联动移门,隔绝油烟的同时方便使用,相比传统推拉门,因为没有地轨结构,还能有效防止小孩老人家的磕绊。



现代感十足的设计将大型厨电嵌入橱柜,配色选择了干净百搭的白、灰色系,与地面瓷砖自由不羁的纹理放在一起丝毫不显违和。


合理的U型布局在提升下厨效率的同时,也为居住者带来更多的人文关怀,合理的动线、宽裕的尺度、良好的采光,让下厨变得更加有仪式感和幸福感。
03
客餐厅设计

在同一个空间塑造出不一样的生活场景。拆除一面墙后的客餐厅化为了一个整体,实现了人与人之间无阻隔的交流,也为生活提供了多样的可能性。



意式轻奢餐桌椅,搭配线形环绕吊灯,以百合花插瓶做桌面点缀,自然、优雅的感觉油然而生。


内嵌的餐边柜遵循“藏八露二”原则,既可用于展示收纳,还能摆放一些小电器,补充餐厨空间的储物需求。


设计师对客厅空间的氛围灯光进行了特别布局,让灯光氛围和身体感知,从而放松紧张的工作情绪,享受与家人在一起的放松、温暖。



叠加的大理石电视背景墙搭配同色系地柜,内藏灯带,极简的线条勾勒出满满的生活品质感。


转角的设计手法将整个背景墙加宽,加入黑玻柜体,中间摆放书籍和饰品,实用性与颜值均在线!
04
品茶区



品茶区小坐,慢品香茗,享受家居悠闲生活,在茶香袅袅的静谧里,把玩珍藏手办,别有一番雅趣。

05
阳台设计



从客厅品茶空间到阳台,是与外部的连接之处。
我们常忽略阳台能够带来的感觉,它巧妙地分割出室内空间与室外不同的主观感受,从理性开阔到柔美细腻,情绪的转变也正是在这几步里的自然变换。


主卧与阳台以一窗之隔带来丰沛的采光,让清晨新鲜的空气在空间内相互流动。


这里同时也是洗衣晾晒区,将洗衣机置入柜体,搭配可升降晾衣杆,完善了日常生活中的刚需配置。
06
主卧设计


设计师利用主卧进门衣柜侧面做了挂外套包包的地方,让空间得到了充分利用。





卧室以米色为主调,营造出了一个安静且舒适的休憩氛围,内部设计运用减法排除繁杂的造型,只在吊顶处增加奶油花瓣灯、筒灯和暗藏灯带,让睡眠环境更加纯粹。


象牙白的梳妆台静落在旁,这是特地为女主人打造的一角,有了LED镜灯的加持可随时开启柔光模式,突显浪漫主义感,令时光悠闲得如同一首情诗。

衣柜是胡桃木色,一柜到顶,不易落尘储物量大,非常的简洁大方。
07
主卫设计


淋浴空间贴心地各设计了两个置物架存放沐浴露。在地面材质选用上,运用了哑光大理石防滑地砖,提高沐浴空间安全系数。


08
女孩房设计

女孩房衣柜、书桌椅、床卧错落式的排布,为小朋友创造了收纳区、学习娱乐区和休息区,功能齐备不显局促。


床头柜可用于放置闹钟等小物件,内里还可藏起属于女孩子的小秘密,拿取也十分方便。


一体式的书桌书柜,满足了正处于小学阶段小朋友的学习需要,靠墙书架则选择了树枝状,增强空间的趣味性。

09
男孩房设计



光线透过窗户使男孩房看上去格外通透,选用最简单的天蓝色作为墙面颜色保证了房间的明亮感。双层床为爷爷奶奶的偶尔小住做了充分准备。



一侧布置的储物展示柜与窗帘相映成趣,既保证了功能性又丰富了空间层次感,还可以存放孩子的玩具。


旁边的收纳衣柜可以按需存放小朋友的衣物鞋帽,定制原木书桌,为孩子的成长学习提供了充足空间。


10
公卫设计


公卫同样以灰色调作为主基调,深浅不一的灰色以及纹理营造空间的立体视觉感。


悬空镜柜浴室柜、门框、花洒等线条边框为空间勾勒出干净利落的感觉,让卫浴空间在保有现代简约的基调里,带有高级质感。
设计方案
Design scheme

▲原始户型图
屋主家常住夫妻二人和两位小朋友,平常喜欢喝茶,热爱收藏手办,希望房屋是大气简洁的,具备完善的功能,生活动线流畅,与家人有更多的互动。
户型缺陷:
❶室内梁位多且高,另外还有很多承重柱分隔空间结构;
❷排水排污不便,管道设置成为装修难点;
❸户型为长方形,多个空间存在采光不足的问题。

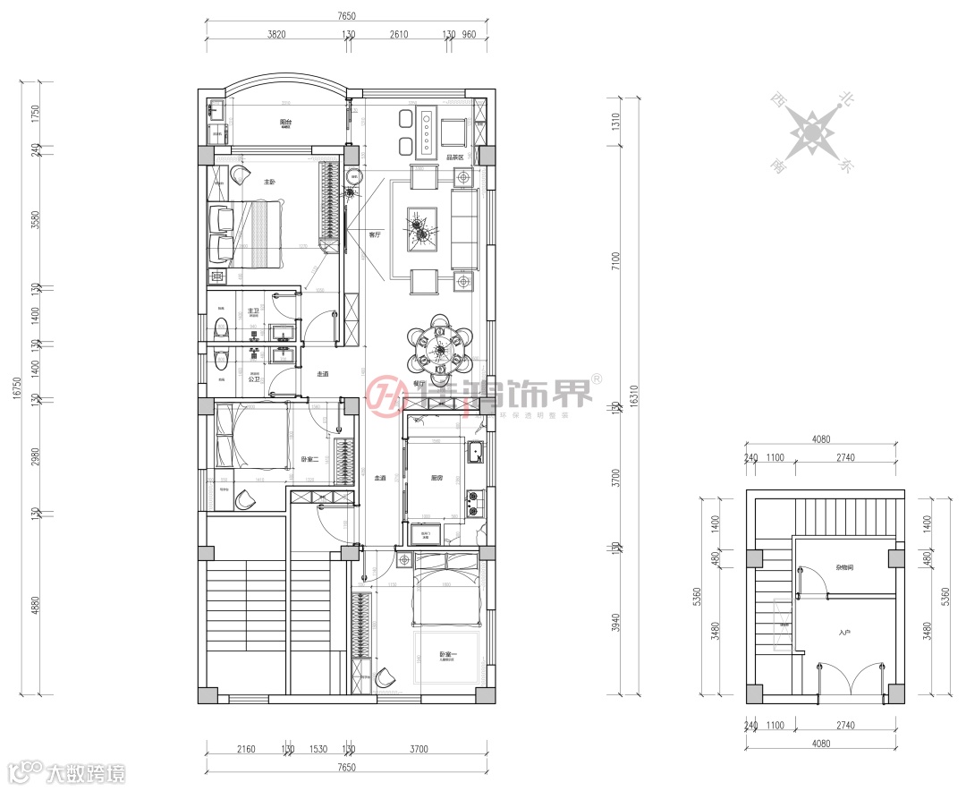
▲平面布置图
设计与施工:
❶客餐厅天花方面的设计,因为梁位深度较高,所以整体吊平是不实际的,这样会让空间变得压抑。优化方案时借用梁位做天花设计,保证美观性的同时又能保留一定高度的层高让空间更加挑空;
❷为解决排水排污问题,我们对排污管的位置进行了专门的定位和固定,因为是靠外墙排污,施工过程中涉及到了部分高空作业;另外一个排水点在茶台区,原定计划打开楼板,但在打拆完地面后,发现靠墙边位置原建筑预留了排水口,这个排水点就得到了惊喜的解决;
❸每个空间的采光都做了充分考虑,最大变化的是客餐厅空间,将光线最好的阳台与客餐厅打通,让客餐厅变得敞亮大方;
❹厨房及入户位置的改善,原入户走道位置光线特别暗,现利用厨房+移门透光,优化了入户走道的采光和通风。
本案设计师
Designer of the case

往期案例推荐
点击图片即可获取全文

全国热线:400-6065-645




