
随着人们生活质量和文化素质的提高,平面住房已经不能完全满足人们对住房空间的需求,而复式住宅上下有效连成一体,使室内有一定的高差,形成少有的立体空间。今天给大家介绍一套新中式复式别墅案例,挑空的客厅,多形态的夹层,提升家的互动感。
面积:600+m²
户型:六房三厅三卫一厨
定制材质:胡桃木+格木
色彩搭配:胡桃色
出品:东莞 · 东家
设计师:胡慧

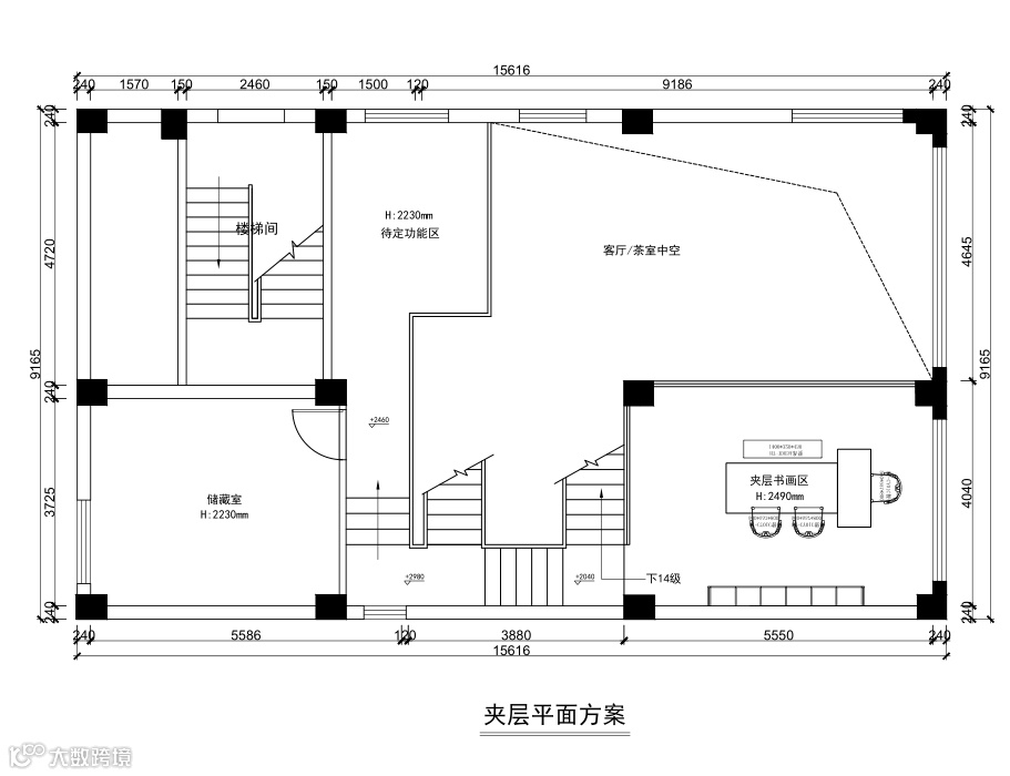
中国传统迎客之礼,体现了主人的涵养和气质。而客厅,作为迎接客人的地方,更是能体现屋主的宾客之礼。一般的复式空间是两个平层的叠加,上下层只有楼梯的连接,而客厅部分挑空的设计,成了这个方案里一个点晴之笔。

推开入户大门,原生的东家独板,如艺术品般置落在中空的会客厅中央。多处高挑的采光窗与落地窗,保证了充足的采光,恢弘大气,让空间更显宽阔舒畅。客厅顶部挂起中式吊灯,让客厅拥有国宴级的奢华,处处彰显气派!
· 餐厅 ·

很多家庭的餐厅都有着共同的问题:物品杂乱难收拾。餐厅的设计条理分明,用餐环境干净整洁,才能和家人享受舒适的用餐氛围。如靠窗一侧放置餐边柜,轻松收纳小物件,靠墙一侧定制半开放式置物柜,收纳大件餐厨用品,同时可摆放名酒与装饰品,提升餐厅的格调。
· 休闲区 ·

复式豪宅有一个明显的特征,就是强调社交空间的打造,空间的“互动感”由为重要。多元化的夹层空间,同时也具备多重功能,摆上罗汉床与沙发组合,就能实现“休闲社交模式”。
· 阅读区 ·

走到另一侧夹层空间,则切换成“专注模式”,大板与书柜的组合,可同时容纳多人阅读,打造私人图书馆,让大人孩子一同专注书籍的海洋。
· 客厅 ·

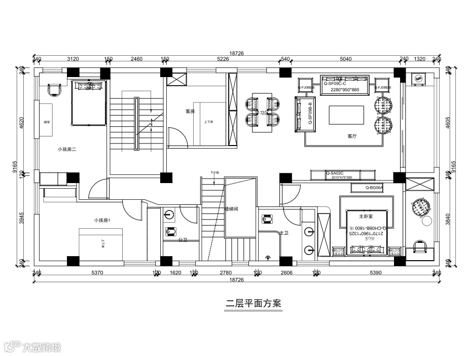
一楼二楼两处客厅,实现动静区隔,一层属于社交空间、朋友聚会,二层则是日常生活,有效地跟活动区分离,互不打扰,每一个空间,都有着对应的功能,真正将空间还给生活。
· 主卧 ·

600㎡的复式别墅做到了四室,比肩传统别墅的配置,更加强调的是生活品质。主卧的软装搭配选择冷色系,与温暖的胡桃色家具形成视觉上的对比,恰到好处的色彩搭配,平衡了整个空间。生活阳台的独特设计,打破卧室的沉闷,也扩大空间的使用。
· 儿童房 ·


儿童房同样是冷色系的软装搭配,但家具的选择上更为大胆灵活, 儿童房的空间相对较小,嵌入式衣柜提升空间利用率,把家具靠墙摆放,给中间区域更多的空间作为儿童玩耍的地方。
—
每个人对生活都有期待的一面,风尘俱静,岁月悠长。这里有宁静致远的格局,有清风自来的淡泊,有返璞归真的绝俗,有身心寂静的归宿。选择一种家居风格,也是对生活的一种选择。
下一期“新中式案例”,带大家看更多别致的大宅设计!