
古往今来,无数文人雅士隐逸于山水,寄才情于秋风明月,被传为美谈。在城市喧嚣中开辟一处宁静之地在城市中修行,在山水中养生开启东方精致生活。本次为大家介绍的新中式整体木作全案,位于绵阳岷山,把山水意象带进居室,尽显风雅之韵。

·餐厅·

用餐区的设计亦以简雅为意,贴近自然的木色与纹理、金梅铜雀的典雅圈画、与清冽的琉璃杯樽等器物陈设,在弥漫着一室淡淡花香的室内,娓娓地述说着东方的故事。5米宽的用餐区,容纳下1.5米黑檀木大餐桌后仍有富余的走动空间,在不影响动线下,享受着三代同堂的烟火时光。


新中式风格家居一般多采用简洁硬朗的直线条,迎合新中式家具的内敛质朴的气质,同时也让整体空间更加实用、简洁、现代。本案客厅的家具选择,采用黑檀木材质,极简设计,线条明朗,横竖之间胜似文人雅士笔下一幅隽永的字画。高挑的桌椅角,既有效降低碰伤的几率,又解决了打扫的烦恼。


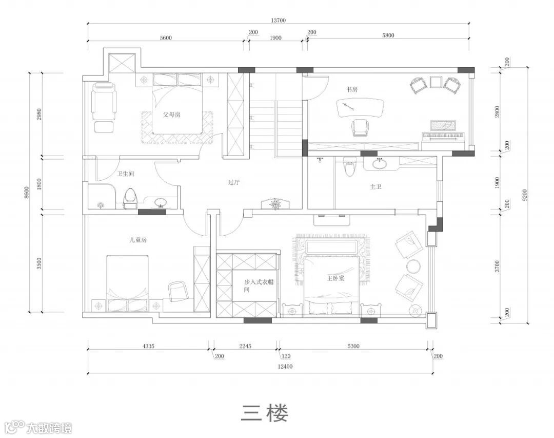
主卧的设计体现新中式的对称性,床头两侧对称的床头柜与吊灯,散发着安之若素的内在情怀。墙上所安置的艺术摆件都充满巧妙的用意,具象或抽象的山水,充盈着无形的柔软的力量,在卧室的另一侧,摆放一张罗汉床,以艺术品陈列的妙趣横生来表达东方文化中的文人趣味性,寄情山水,安抚人心。

儿童房的风格脱胎于新中式,更突出现代元素,与其他卧室最大不同之处在于,床的颜色选择上,和衣柜保持统一的单色处理,浅色调的软装搭配,带来活跃的氛围感。封顶的定制衣柜,大大增加收纳空间,孩子的衣服或玩具,再大也能容纳其中。
长辈房宽敞通透,并且做到满足挂衣,叠放,抽屉收纳的需求。风格上则回归新中式的静谧,空灵中有雅、有序的设计,映射出居住者日常的充实情感。床头的背景,如画框般的定制线条,一副双雀戏寒梅,恰如相濡以沫的伉俪温情,在素雅的空间内装点出情感色彩,艺术上的神韵油然而生。
编辑 | 王文星

▾▾


