
小家格局却有着豪宅规格的气度与质感,拥有完整的居家功能,通过半高墙面与透光介质的视野延伸手法,让挑高窗光明亮放大每个独立场域,并细究家具家饰比例,调和层叠有序的空间平衡。
从现代风格出发的设计,质感温润的木地板柔软空间氛围,对比水平阵列的电视墙纹理,沙发背墙以斑斓直纹壁纸与之呼应,线条美学延伸至天花樑体处,利用斜切摺线结合照明光影,在利落刻划的现代唯度里注入艺术质感。
图片提供:比沙列空间设计
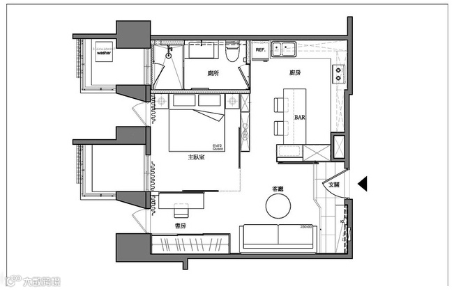
空间格局:玄关、客厅、餐厨区、书房、主卧房、卫浴
主要建材:大理石、木地板、梧桐木皮、镀钛











【更多精彩,请点击下方“阅读原文”↓↓↓】
这里是【搜狐焦点家居】官方微信。喜欢的话就点击右上角,分享给更多朋友吧!
如何关注我们的微信:
1.点击右上角-查看公众账号
2.添加朋友-查找微信公众账号-搜索“搜狐焦点家居”
更多精彩内容请登录搜狐焦点家居:http://home.focus.cn


