
跳脱刻意为之的设计框架,从空间主人的生活经历、个性情感与内心想法,衍生出这间毛胚屋将要呈现的氛围与表情。白净日光与平滑肌理交融中,宁静淡雅的气息充盈室内,梳理城市生活的紧凑与压力。禾筑设计以精细的施做工法与选材标准,整疗出简约优雅的空间脉络,从光的导引、顏色及材质调性,无一不显得清新细致。
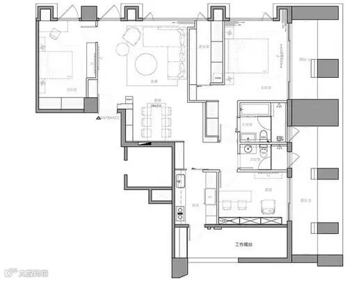
房屋平数:145平
图片提供:禾筑国际设计有限公司
空间格局:玄关、客厅、餐厅、厨房、书房、主卧房、次卧室、卫浴×2、工作阳台
主要建材:荷兰栓木木皮染色、铁刀木木皮、秋香木木皮、铁件烤漆、灰玻、烤玻、磁砖、石材、玻璃五金、乳










【更多精彩,请点击下方“阅读原文”↓↓↓】
这里是【搜狐焦点家居】官方微信。喜欢的话就点击右上角,分享给更多朋友吧!
如何关注我们的微信:
1.点击右上角-查看公众账号
2.添加朋友-查找微信公众账号-搜索“搜狐焦点家居”
更多精彩内容请登录搜狐焦点家居:http://home.focus.cn


