
风格:现代
居室:二居
面积:86平
造价:7.6万/全包
设计思路:
客厅主要以电视背景墙为切入点利用它把钢琴与展示柜融入一体,凸显实用加美观相结合。主卧主要以床头背景墙为主题,利用软包和暖色墙漆相结合,整个空间柔和舒适。

客厅效果图

卧室效果图

卧室效果图

厨房效果图

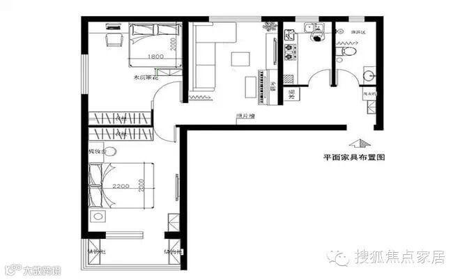
平面图

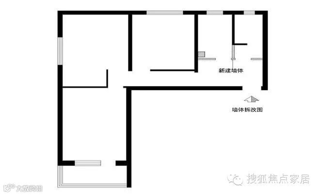
户型图
【联系设计师,请点击下方“阅读原文”↓↓↓】
这里是【搜狐焦点家居】官方微信。喜欢的话就点击右上角,分享给更多朋友吧!
如何关注我们的微信:
1.点击右上角-查看公众账号
2.添加朋友-查找微信公众账号-搜索“搜狐焦点家居”
更多精彩内容请登录搜狐焦点家居:http://home.focus.cn

