
风格:现代
居室:复式
面积:50平
造价:24万/全包
设计思路:
业主需求:设计师在设计之初和业主充分沟通后,把握了空间格局的划分和颜色上的搭配,造型灵气干练,把氛围很好的融入了业主的气质,同时又不失空间感设计理念:设计师在设计之初和业主充分沟通后,把握了空间格局的划分和颜色上的搭配,造型灵气干练,把氛围很好的融入了业主的气质,同时又不失空间感预算说明:设计费6000元,基础施工款45000元,自选主材200000元。 所用材料:上海伟星PPR管,德国都芳漆、热镀锌铁管、可耐福石膏板、进口OSB板等 金意陶瓷砖、箭牌洁具、爱格地板、欧派橱柜、TATA木门、友邦吊顶等。

卧室效果图

书房效果图

客厅效果图

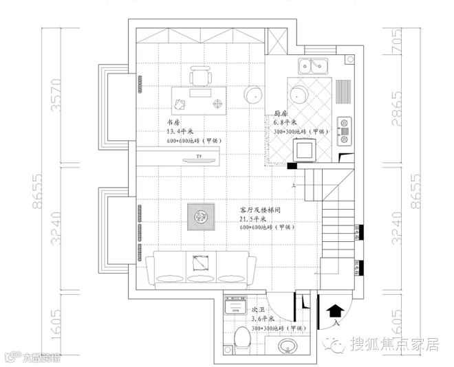
平面图

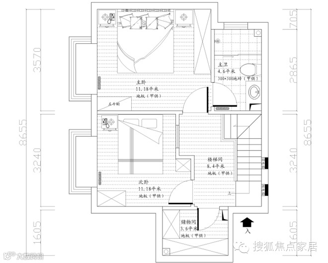
平面图
【联系设计师,请点击下方“阅读原文”↓↓↓】
这里是【搜狐焦点家居】官方微信。喜欢的话就点击右上角,分享给更多朋友吧!
如何关注我们的微信:
1.点击右上角-查看公众账号
2.添加朋友-查找微信公众账号-搜索“搜狐焦点家居”
更多精彩内容请登录搜狐焦点家居:http://home.focus.cn

