
风格:地中海
居室:三居
面积:125平
造价:10万/全包
设计思路:
业主背景和需求——追求简练、明快、浪漫、地中海风格,清新的布艺沙发搭配米黄色墙漆,温馨又清新。定制的蓝色木格栅把门厅和餐厅进行分区,使主次更加分明。

客厅效果图

客厅效果图

卧室效果图

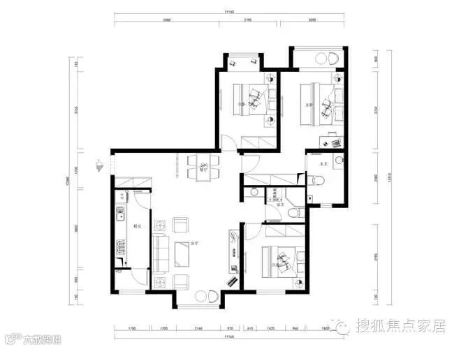
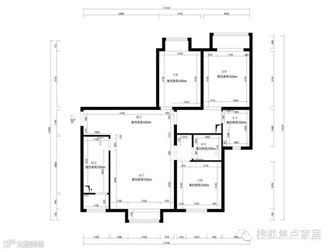
平面图

户型图
【联系设计师,请点击下方“阅读原文”↓↓↓】
这里是【搜狐焦点家居】官方微信。喜欢的话就点击右上角,分享给更多朋友吧!
如何关注我们的微信:
1.点击右上角-查看公众账号
2.添加朋友-查找微信公众账号-搜索“搜狐焦点家居”
更多精彩内容请登录搜狐焦点家居:http://home.focus.cn

