
这套小公寓也就30平米的空间,通过合理的格局设计,虽然面积小却装修很精致;各位租房的单身狗们不妨看看这套案例,然后把小公寓改造下成这样有情调,做个懂情调的人,估计离脱单也不远了!
玄关
进门后的小玄关,在墙面装上一面多孔收纳板,结合挂钩一起使用显得格外的实用大方又整洁;

玄关里的这根工业风壁灯,营造出了一种独特的年轻小资情调氛围;

厨房
而过道对面的则是厨房,在狭小的空间里把厨房挤进去,结合紧凑实用的收纳橱柜,这对于小户型而言还是比较紧凑实用的布局;


餐厅
餐厅则是以一个极简范的木质吧台,搭配上小资清新的摆饰布置,整体显得格外的舒适优雅;

吧台后方的小角落是个休闲小角落,摆上一个懒人沙发,成为一个周末宅家里的好角落;


卧室
吧台再往里就是卧室,摆上一张收纳功能丰富的床,同时床尾这一面墙都是收纳柜,为小房子的整洁提供了充足的储物空间;

木质感的床头柜,布置在这里也是简洁美观,搭配起来很年轻小资范;

床尾处的这个开放的展示柜,整洁地摆上一些小装饰品,精致又清新;

卫生间
卫生间在马桶后摆一个木质置物架,间接有序地摆上卫浴用品,整洁的氛围体现出主人追求极简氛围的心;

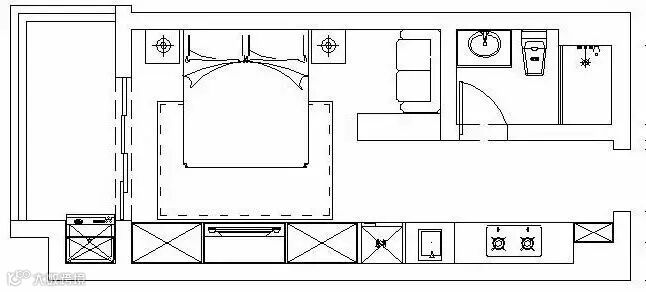
平面布置图

佳鸿饰界,全称广东佳鸿饰界装饰设计工程有限公司,05年成立于广州,是集住宅与商业空间的装饰设计、施工、建材、家具、配饰、售后和增值售后为一体的一站式家居连锁服务商。
目前旗下拥有: 佳鸿.新饰界整装、佳鸿.V8大宅、佳鸿.VV软装3大品牌,是广东省最具竞争力装饰公司之一。
佳鸿饰界以"装修改变生活品质”为使命,以"做您最贴心的装修管家"为宗旨,以"一次装修,一生家人"为目标,坚持透明化、人性化装修,得到了行业与客户的不断认可。
佳鸿饰界具有国家室内装饰企业设计施工双乙级资质、是中国室内装修装饰协会会员单位、亚太设计联盟会员单位、广东十大装饰品牌、连续三届获得消费者信得过装饰品牌、CIID中国室内设计协会会员单位、广东省守信用重合同企业及2016中国家居风云榜暨业主最喜爱家居品牌。


