
工程地址:花漫里
项目面积:150m²
工程预算:20万
装修风格:现代简约风格
首席设计师卢金凤
追求艺术与技术的完美
结合、用最省钱的办法
打造最适合您的家!
业主需求
本案例为现代简约风格设计,简约不等于简单,它是经过深思熟虑后经过创新得出的设计和思路的延展,不是简单的“堆砌”和平淡的“摆放”,是经过设计师与业主的沟通交流后所表达的一种生活方式。
1
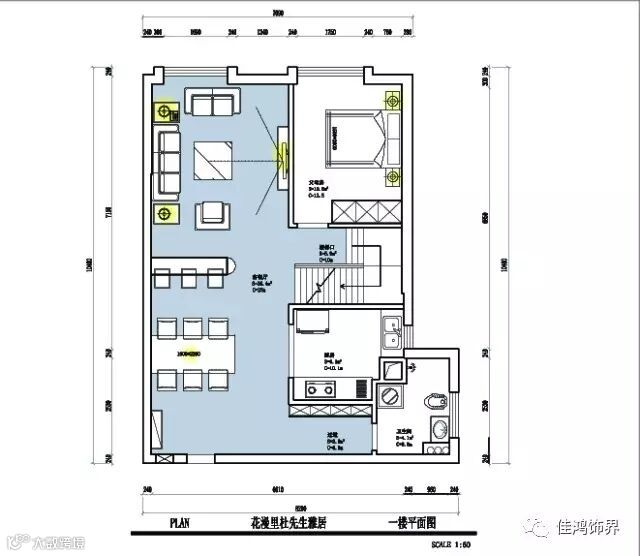
一楼原始结构图
一楼客餐厅
复式楼最好的特点就是客餐厅区域上下相通,不再受限于层高,在视觉上通透开阔,而大理石造型的背景墙的处理,简洁自然而不单调。墙面采用留白处理,加以装饰画点缀,主次分明,沉稳有序。
2
二楼原始结构图
二楼主卧
卧室最主要的是舒适、放松,尽可能不用装饰和取消多余的东西,认为任何复杂的设计,没有实用价值的特殊部件及任何装饰都会增加建筑造价,强调形式应更多地服务于功能。
3
二楼原始结构图
二楼次卧
简约的空间设计通常非常含蓄,往往能够达到以少胜多,以简胜繁的效果。
佳鸿饰界,全称广东佳鸿饰界装饰设计工程有限公司,05年成立于广州,是集住宅与商业空间的装饰设计、施工、建材、家具、配饰、售后和增值售后为一体的一站式家居连锁服务商。
目前旗下拥有: 佳鸿.新饰界整装、佳鸿.V8大宅、佳鸿.VV软装3大品牌,是广东省最具竞争力装饰公司之一。
佳鸿饰界以"装修改变生活品质”为使命,以"做您最贴心的装修管家"为宗旨,以"一次装修,一生家人"为目标,坚持透明化、人性化装修,得到了行业与客户的不断认可。
佳鸿饰界具有国家室内装饰企业设计施工双乙级资质、是中国室内装修装饰协会会员单位、亚太设计联盟会员单位、广东十大装饰品牌、连续三届获得消费者信得过装饰品牌、CIID中国室内设计协会会员单位、广东省守信用重合同企业及2016中国家居风云榜暨业主最喜爱家居品牌。


