一般别墅给人的印象就是面积大,装修豪华,认识比较多的人对别墅的装修可能都会首选欧式风格。但其实不然,一个好的设计无论是那一种风格都可以展现出自己的不同美感。今天给大家分享一组不一样的别墅风。
基本资料
工程地址:清溪华桂园
面积:380㎡
类型:别墅
风格:现代风格
设计师:谭燕云
设计理念:
设计是一种稀缺的表达方式,犹如万物生长;好设计源于生活,沟通成就好作品。
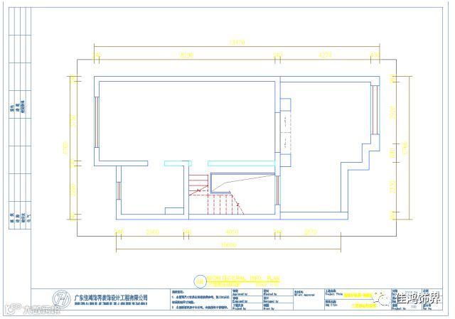
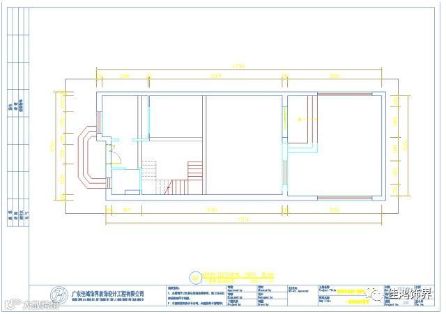
原始结构+方案图
负一楼休闲室
负一楼是休闲的场所,在此案例中业主的想法是把这里打造成更具娱乐性的空间,所以在这里不仅设置了投影,旁边还配备了小吧台。不管是约友人来家里聚会还是开家庭party,这里都是非常不错的选择。你可以安静的坐在沙发观影,亦可以在吧台小酌上几杯,可以说是非常放松休闲的。
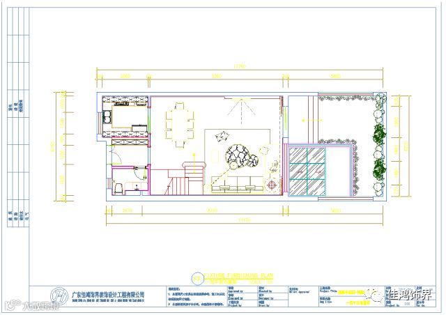
一楼客餐厅
客厅与花园是相连的,超大的落地窗,让客餐厅整体得到非常好的光线。木饰面加大理石的电视背景墙与餐厅背景结合在一起,而加入整块的大理石去做处理,使得客餐厅看起来更具协调性,现代感与设计感十足。
二楼过道
设计师在楼梯白墙上加上一副艺术画,减弱了留白带来的枯燥感,二楼过道有一个平台,这里采用开放式的处理,旁边做储物柜。一来视线宽敞,二来对二楼卧室的进出也是极为方便的。
二楼书房
书房以多功能的角度出发,可以看到整体空间储物性是非常充裕的,实用性也是强大到不行。有矮座,有榻榻米,这是集工作与休闲共存的环境,在工作疲惫之后不想回卧室,立马就可以趟下来休息了。色调上来说素雅清新,令人赏心悦目。
二楼卧室
二楼是业主女儿的卧室,整个房间的装饰主要体现在床头背景的装饰设计上,没有太多花俏的造型,简单舒适才是卧室最本质的出发点。
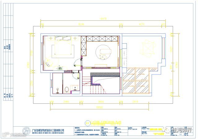
三楼主卧
主卧讲究睡眠质量,单色墙加艺术画去做点缀处理让原本单一的空间突然就鲜活起来了。每一个房间窗户的光线都非常好,在这里摆上一个懒人凳子,翻翻书,一览窗外的风景都是极好的。
三楼衣帽间
对于独立的衣帽间而言,设计时,要合理安排灯光、色调等元素,使之既融入室内整体风格,又保持自己独特的情调。从而达到视觉功能和心理功能的协调。根据现有的空间格局,这里更适合L形排布、同时在灯光的营造上,设计师也是给到非常好的处理,好的光线,对衣帽间是非常重要的。
华桂园韩小姐雅居3D全景视频入口
“从前车马很慢,讲究一锤定音,但也可以变化无常。而如今,‘轻装修,重装饰’的理念更贴合现代人的生活方式,而我们佳鸿饰界的服务理念就是:一次装修一生家人,业主可能要住很多年,那么我们希望,在这些年里给他更多的可能性和新鲜感。”

