
本案例业主新婚燕尔,业主钟先生出自书香门第,独爱中式风格,而秦女士从事平面设计,对空间的美感有自己独特的追求和见解。设计师与业主进行了三次充分的沟通交流后和与双方达成一致,最终敲定了此设计方案。
基本资料
工程地址:东城
面积:100㎡
风格:新中式古典
设计师:袁啸霆
设计理念:理性中寻找感性,不忘初心,砥砺前行。
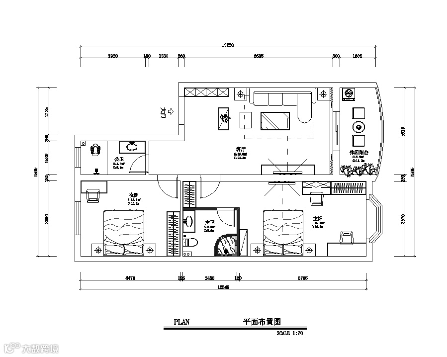
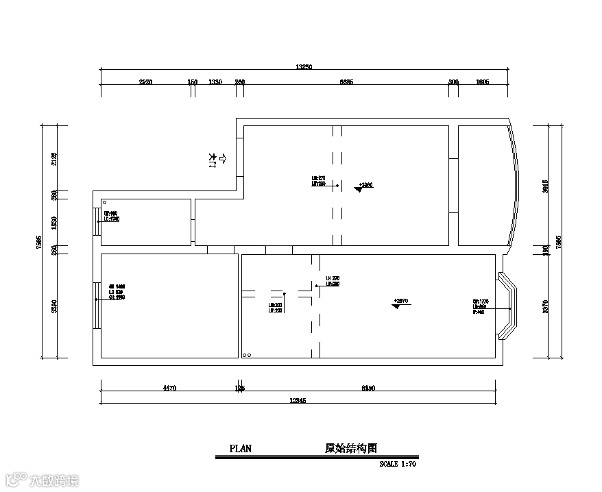
结构图+方案图
户型解析:业主原始户型客厅中部位置有一堵墙,非常影响入户采光,在这一点上业主和设计师想法一致选择了拆除,拆完之后一来增加了整个入户及会客厅的采光性,二来也扩大了客厅的空间,在增加了利用率的同时也更显大气。
公共区域
电视背景墙采用了大理石加造型花格的选择,考虑到整体空间的色调,大理石选色上挑了乳白色,缓解黑胡桃在整个空间的占比。两边的造型花格则是与整体风格相匹配,也让整个背景墙不显单调,反而有典雅大气的感觉扑面而来。
因为本设计是别墅第三层,所以不考虑餐厅及厨房,只需要客厅和两个房间的效果层次表现出来,整个户型是偏狭长型的结构框架,在尺寸及定位的选择上经过了非常慎重精确的考虑。在最终方案确定前其实和业主产生了一定的分歧,设计师建议把主卧做成套间形式,另一个房间也并入主卧空间。三层完全独立开来作为夫妻二人回家后的休憩,娱乐的私密空间。但结合业主实际情况:钟先生时长需要在家里与商业伙伴进行沟通谈判,并且近两年就会有添小宝宝的打算,于是便为他保留下来了次卧,作为书房兼未来的小孩房。
女业主非常注重生活品质,在整体软装和造型的搭配上先确定了一个大的基调,需要全部用黑胡桃木进行整个空间的体现,并且全屋需要使用木地板。在收集到这些信息之后我便开始了自己的工作,因为入户位置有独属于业主自己的过厅,所以在进门后设置了一个独立的办公区域,业主夫妻二人工作时间有时并不统一,工作繁忙时可以让对方有一个静谧的休息空间。在沙发的侧边放置了造型隔断,也一定程度上缓解了风水上的问题。
沙发背景墙是本案最大的亮点,选择了满墙山水画,四周采用黑胡桃木进行收边,所用画卷采用了“留白”的形式去增加空间的格调。也提炼出业主追求的“淡雅”特点。
卧室
主卧采用素色,让空间更多一分宁静,通过色彩的搭配提醒主人,回到卧室就要暂时抛开工作中的烦心事儿,好好休息。背景墙遵循了中式的对称手法,用中式的元素勾画出独有的韵味。
透过镜头可以看到卧室最大的看点应属卫生间了,在设计师的处理上,这里大胆的采用玻璃隔断,极富浪漫气息。

