设计师:曾颖洁
人为的设计生活方式,是为了努力去创造一种更好的生活状态。
工程地址 / Project address:新力珑湾
面积 / built-up area:89㎡
户型 / House type:三房
风格 / Design style:现代简约
所在城市 / City:广东·惠州
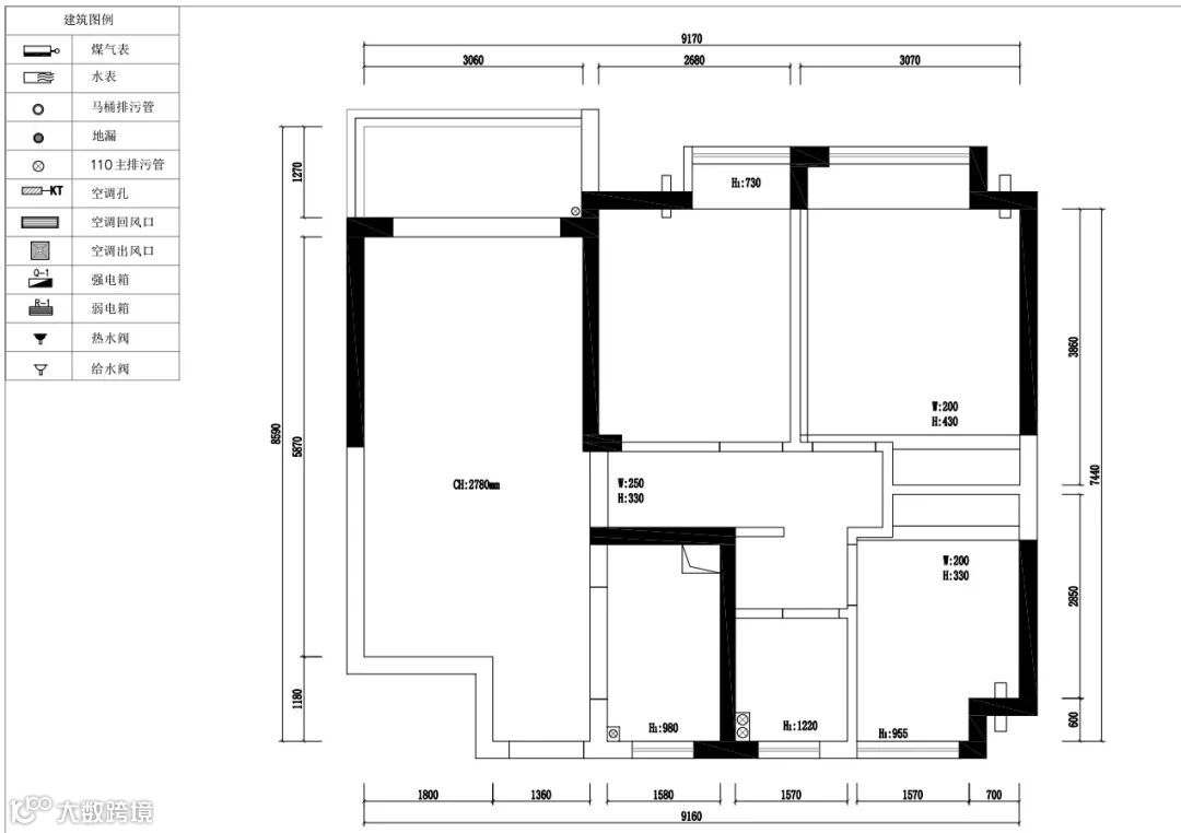
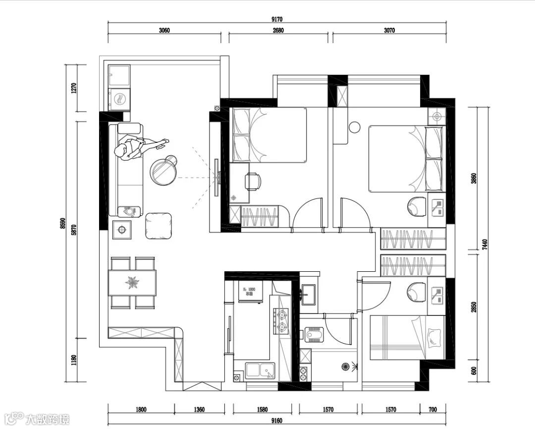
户型平面设计方案
▲(原始户型结构图)
▲(平面布置方案图)
01_
丨客厅
丨A living room
客厅|明亮的白,平和的青灰,温润质感的花纹砖面贯穿整个空间,别致的灯具为空间画龙点睛。棕色皮质单椅和浅灰低矮沙发相组合,给人以沉稳、宁静的自然家居氛围。
02_
丨餐厅
丨Dining hall
餐厅|餐厅延续了客厅整体的色调和感觉,没有做大的改动。方形圆角的餐桌,既满足了日常使用,又精致安全,墙面上的放射状镜面装饰也与餐厅的吊灯颜色相互呼应,很好的实现了空间的相融性,体现了设计师的巧思。
03_
丨厨房
丨Kitchen
厨房|以大面的浅灰肌理墙面,偶尔点缀一些色彩,为整个空间带来温度与活力。自然质朴的原木橱柜,散发着寻求本真、淡然回归的生活态度。整个空间可以很好的体现出居住者的性格和对品质的追求。
04_
丨主卧
丨Master bedroom
主卧|带着一天忙碌过后的睡意进入安稳宁静的空间,温和的灯光柔软的床垫,幸福感满满。卧室选择了白色和灰色的基调,原木色地板,搭配艺术气息浓厚的挂画和双层黑色书架,营造出既高冷又温馨的空间氛围,显得别具一格。
05_
丨卫生间
丨Bathroom
卫生间|卫生间设计成干湿分区,干区采用大理石低墙隔断,进行功能分区的同时不影响过道的采光和开阔感。格橱具备,为洗漱区留出足够的储物和放置空间。
06_
丨儿童房
丨Children's room
儿童房|儿童房仍是白灰调的空间,床头墙挂了卡通动物图案的装饰画和日用小物件,布置蓝色的布艺床铺,黑白配的格子抱枕,靠衣橱摆一张简洁的书桌,为孩子提供了一个温馨舒适的私人空间。
阳光和成长在这里,小朋友平日可在写字台上认真伏写着,也可以依靠在飘窗上,读着一本本的书,仿佛经历了一个个奇幻的梦境,也流转在早晨的窗边、午后的休憩时光。
往期案例推荐
点击图片即可获取全文
推荐阅读
佳鸿饰界,全称广东佳鸿饰界装饰设计工程有限公司,国家注册商标,注册资金1000万人民币。05年成立于广州,是集住宅与商业空间的装饰设计、施工、建材、家具、配饰、售后和增值售后为一体的一站式家居连锁服务商。佳鸿饰界以环保透明为企业的发展特色,是全国最先倡导环保透明家装的品牌。
目前旗下注册商标品牌: 佳鸿饰界整装、谷间私宅、非凡同创3大品牌,同时有佳鸿V8.大宅,佳鸿VV软装两个事业部。在东莞寮步、东莞常平、珠海香洲、惠州大亚湾、惠州博罗、惠州惠阳、惠州罗阳等地设有分公司,是广东省最具竞争力装饰公司之一及全国头部家装500强企业。
Honors
资质荣誉
中国头部家装500强企业
广东省守合同重信用企业
中国室内装饰协会会员单位
中国农业银行战略合作单位
湖南设计力量发起单位
东莞市室内建筑设计行业协会单位
百城设计联盟最佳设计创意奖
国家室内装饰企业设计乙级资质单位
国家室内装饰企业施工乙级资质单位
房天下2016年度中国家居风云榜--暨业主喜爱的家居品牌
2016年度装修品牌榜最受业主信任的互联网装修口碑品牌
校企合作企业联盟单位
2016年家装战略合作百强企业
2018年中国商业汇最具口碑装饰设计公司 网络评选大赛冠军
中国室内建筑学会室内设计分会会员单位
APDF亚太设计联盟会员单位
保利地产战略合作客户
万科战略合作客户
......

广东佳鸿饰界
16年专注环保透明家装
一站式整体家装服务商
装修干货|施工技艺|设计方案
敬请关注广东佳鸿饰界
淘宝/网页搜索“广东佳鸿饰界”都可以找到我们哦!
【非凡同创总部】广东东莞寮步镇时代华庭二楼01室
【谷间私宅】广东东莞寮步镇时代华庭二楼02室
【东莞寮步店】 广东东莞寮步镇时代华庭三楼整层
【东莞常平店】 广东东莞常平镇袁山贝文昌三街14-15号4楼
【惠州大亚湾店】大亚湾区南山国际6F22室
【珠海香洲店】香洲区前山左右创意园1栋2-23室
【惠州博罗店】博罗县罗阳镇荣鸿大厦601室
【惠州惠阳店】惠州惠阳区淡水志隆大厦8楼
【惠州罗阳店】博罗县罗阳镇城东区江山美苑CA栋二楼







