工程地址 / Project address:金昌凤凰苑
面积 / built-up area:120㎡
户型 / House type:三房
风格 / Design style:现代简约
所在城市 / City:广东·惠州
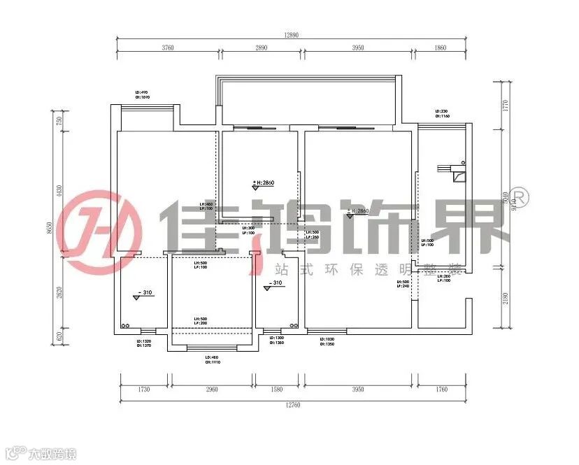
户型平面设计方案
▲(原始方案图)
▲(平面布置方案图)
设计说明:本案中业主夫妇提出,偶尔会有亲朋好友走访,因此需要保留留宿的空间,三居室,原本空间分布上并没有做特别大的更改,但是,考虑到布局合理性、不同区域面积使用性、及储物收纳的需求较强,设计在原基础上通过重组及材质的特性,对空间使用面积进行优化改动,弥补原结构上的缺陷,让空间整体采光通透性更上一级。
01_
丨客厅
丨A living room
客厅|客厅的沙发背景墙利用木饰面拼板和金属线条替代传统装饰画墙面,更具实用功能性,电视背景墙则舍弃过多的造型,岩板带来清晰明亮感。顶面、地面、墙面通过运用线型元素来扩大客厅视觉纵深感。在客厅大面积棕白主色调上,着重用沙发单椅、窗帘、摆件等软装做跳色的点缀,丰富空间层次。
The sofa background wall in the living room uses wooden veneer panels and metal lines to replace the traditional decorative painting wall, which is more practical and functional. The TV background wall discards too much shape, and the rock board brings a clear and bright feeling. The top, floor and wall use linear elements to expand the visual depth of the living room. In the main color of the large area of brown and white in the living room, the soft furnishings such as sofas, chairs, curtains, ornaments and so on are used as color-changing embellishments to enrich the spatial level.
02_
丨餐厅
丨Dining hall
餐厅|浅棕色花纹哑光地砖使餐厅与客厅得到了连贯的联系,用线条元素:线型环状吊灯、墙面吊顶线条、百叶窗、金属竖线桌脚等的组合,起到线条装饰性作用的同时,保证了简洁美观,优雅大方。
Light brown patterned matte floor tiles make the dining room and the living room have a coherent connection, using line elements: linear ring chandelier, wall ceiling lines, blinds, metal vertical table legs, etc., play a decorative role at the same time , To ensure the simplicity, beauty, elegance and generosity.
03_
丨阳台
丨Balcony
阳台|斑驳的光影,衬着绿意,在灰质暗花纹椅,金属线条的现代都市时尚氛围中得到了融合。生活不只有喧嚣和工作,还有恰好的阳光,充满暖意的心情和健康的身体。
Mottled light and shadow, lined with greenery, are integrated in the modern urban fashion atmosphere of gray dark pattern chairs and metal lines. Life is not only hustle and bustle and work, but also the right sunshine, warm mood and healthy body.
04_
丨厨房
丨Kitchen
厨房|厨房以白色和浅灰色为主色调,在墙面铺贴现代时尚的方格砖,天使白橱柜满足储物放置需求,简约方便。石材的纹理彰显了空间的质感,重油污地区的台面使用纯白石英石,干净好打理。
The kitchen uses white and light gray as the main colors, and modern and fashionable checkered bricks are pasted on the wall. Angel white cabinets meet the storage needs, simple and convenient. The texture of the stone highlights the texture of the space. The countertops in the heavily oiled areas are made of pure white quartz stone, which is clean and well maintained.
05_
丨主卧
丨Master bedroom
主卧|主卧强调功能性设计,线条简约流畅,色彩清新自然。淡雅的蓝色背景墙很好地衬托了内敛,令人觉得舒服轻松,散发出自信与安稳的力量。定制衣橱与床头柜的组合,几何吊灯与简约飘窗的邂逅,让空间更灵动。
The master bedroom emphasizes functional design, simple and smooth lines, fresh and natural colors. The elegant blue background wall perfectly sets off the restraint, makes people feel comfortable and relaxed, and exudes the power of confidence and stability. The combination of custom-made wardrobes and bedside tables, and the encounter of geometric chandeliers and simple bay windows make the space more agile.
06_
丨主卫
丨Main guard
主卫|卫生间淋浴房使用透明玻璃分开干湿区域,黑色镜柜,全铜把手的洗手柜美观经典实用,墙地面白色大面积的瓷砖运用,把卫生间尽可能做到简约、开阔。
The bathroom shower room uses transparent glass to separate the dry and wet areas, the black mirror cabinet, the wash cabinet with all copper handles is beautiful, classic and practical, and the white tiles on the wall and floor are used to make the bathroom as simple and open as possible.
07_
丨次卧
丨Second bedroom
次卧|卧室运用简易的设计,床头靠背和靠枕增加了舒适度,背景墙运用对称全铜壁灯和鹰击长空挂画的饰面装饰,黑色质感圆柱床头柜和沙漏个性而时尚,轻松打造年轻的舒适艺术氛围。
The bedroom uses a simple design. The bedside back and pillows increase comfort. The background wall is decorated with symmetrical copper wall lamps and eagle-strike paintings in the sky. The black textured cylindrical bedside table and hourglass are individual and stylish, making it easy to create a young and comfortable art atmosphere.
08_
丨影视厅
丨Cinema
影视厅|乳白色的空间,纯青色的窗帘,融入灰绒沙发与圆茶几,一系列简单低调的色彩搭配,有助于松弛主人紧绷了一天的神经,犹如身边的猫咪一样慵懒,营造一个舒适的观影氛围。
The creamy white space, pure cyan curtains, blended into the gray velvet sofa and round coffee table, a series of simple and low-key color matching, help relax the owner's nerves after a day Shadow atmosphere.
往期案例推荐
点击图片即可获取全文
推荐阅读
佳鸿饰界,全称广东佳鸿饰界装饰设计工程有限公司,国家注册商标,注册资金1000万人民币。05年成立于广州,是集住宅与商业空间的装饰设计、施工、建材、家具、配饰、售后和增值售后为一体的一站式家居连锁服务商。佳鸿饰界以环保透明为企业的发展特色,是全国最先倡导环保透明家装的品牌。
目前旗下注册商标品牌: 佳鸿饰界整装、谷间私宅、非凡同创3大品牌,同时有佳鸿V8.大宅,佳鸿VV软装两个事业部。在东莞寮步、东莞常平、珠海香洲、惠州大亚湾、惠州博罗、惠州惠阳、惠州罗阳等地设有分公司,是广东省最具竞争力装饰公司之一及全国头部家装500强企业。
Honors
资质荣誉
中国头部家装500强企业
广东省守合同重信用企业
中国室内装饰协会会员单位
中国农业银行战略合作单位
湖南设计力量发起单位
东莞市室内建筑设计行业协会单位
百城设计联盟最佳设计创意奖
国家室内装饰企业设计乙级资质单位
国家室内装饰企业施工乙级资质单位
房天下2016年度中国家居风云榜--暨业主喜爱的家居品牌
2016年度装修品牌榜最受业主信任的互联网装修口碑品牌
校企合作企业联盟单位
2016年家装战略合作百强企业
2018年中国商业汇最具口碑装饰设计公司 网络评选大赛冠军
中国室内建筑学会室内设计分会会员单位
APDF亚太设计联盟会员单位
保利地产战略合作客户
万科战略合作客户
......

广东佳鸿饰界
16年专注环保透明家装
一站式整体家装服务商
装修干货|施工技艺|设计方案
敬请关注广东佳鸿饰界
淘宝/网页搜索“广东佳鸿饰界”都可以找到我们哦!
【非凡同创总部】广东东莞寮步镇时代华庭二楼01室
【谷间私宅】广东东莞寮步镇时代华庭二楼02室
【东莞寮步店】 广东东莞寮步镇时代华庭三楼整层
【东莞常平店】 广东东莞常平镇袁山贝文昌三街14-15号4楼
【惠州大亚湾店】大亚湾区南山国际6F22室
【珠海香洲店】香洲区前山左右创意园1栋2-23室
【惠州博罗店】博罗县罗阳镇荣鸿大厦601室
【惠州惠阳店】惠州惠阳区淡水志隆大厦8楼
【惠州罗阳店】博罗县罗阳镇城东区江山美苑CA栋二楼







