工程地址 / Project address:东江新城
面积 / built-up area:105㎡
户型 / House type:三房两卫
风格 / Design style:现代简约
所在城市 / City:广东·惠州
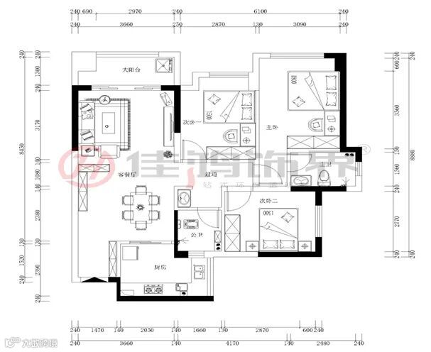
户型平面设计方案
▲(原始户型图)
▲(平面布置图)
请输入标题 bcdef
设计说明:
在本案中,设计师采用现代简约风格,在色彩与元素的使用上非常含蓄,对色彩、材质的质感要求却很高,力图将原材料简化到最少的程度,呈现出“少即是多”的高级感。在白色和低饱和度色系的光影变化中,温馨独特的木质色调和大理石加以点缀,营造豁目开襟的空间感,将稳重深沉的理性之美渗透于细节,呈现出一种经岁月积淀的睿智优雅。
请输入标题 abcdefg
01_
丨客厅
丨Living room
客厅|洁白的空间,圆形水晶吊灯下,布艺沙发绵软而温柔,象征着家的温暖与环抱,搭配大理石茶几,降低重心,空间更显宽敞;橘黄和条纹的抱枕、莫兰迪蓝色的窗帘、充满生意的绿植,点点滴滴的点缀,都为客厅增添了生活氛围感,在每一个清晨与日落,都能嗅到自然亲切的气息;采用了木格橱柜进行空间隔断,同时摆放精致的饰物,体现主人不俗的品味。
In the pure white space, under the round crystal chandelier, the fabric sofa is soft and gentle, symbolizing the warmth and embrace of the home. With a marble coffee table, the center of gravity is lowered and the space is more spacious; orange and striped pillows, Morandi blue curtains, The green plants full of business and the dots of embellishments add a sense of living atmosphere to the living room. Every morning and sunset, you can smell the natural and cordial atmosphere; the wooden cabinets are used to divide the space and are exquisitely placed. The ornaments reflect the good taste of the owner.
02_
丨餐厅
丨Dining hall
餐厅|金属的吊灯与饰物,相互呼应的现代时尚挂画,丰富却不显杂乱,带来艺术的气息;玫瑰金色的镶边,映衬着岩板餐桌、丝绒餐椅独特天然的质感,让就餐也感受到精致与舒适;布置餐边橱柜,同时满足储物的需要,经典而优雅。
Metal chandeliers and ornaments, modern and fashionable hanging paintings that echo each other, are rich but not messy, and bring an artistic atmosphere; the rose gold trim sets off the unique natural texture of the slate dining table and velvet dining chair, making dining also feel To exquisiteness and comfort; the side cabinets are arranged to meet the needs of storage at the same time, which is classic and elegant.
03_
丨主卧
丨Master bedroom
主卧|生活的质感在皮质高背床、精致棕红色梳妆台、定制的衣橱处显现,简单的空间更需精心的布置;梳妆台同时充当着床头柜,兼具更多的功能,圆形镜子内藏灯带,为日常带来更多的便利,配合现代简约的挂画,卧室更显温馨。
The texture of life appears in the leather high-back bed, the exquisite brown-red dressing table, and the customized wardrobe. Simple spaces require careful arrangement; the dressing table also acts as a bedside table and has more functions. The round mirror is hidden Light strips bring more convenience to daily life. With modern and simple hanging paintings, the bedroom is more warm.
04_
丨次卧
丨Second bedroom
次卧|卧室以白色床头墙,布置以棕灰色的软质床铺,爱马仕橙的床单,简约天使白的空间,营造出高级的舒适感;床头两边放置对称的床头柜,加入白色床头灯,棕白色的设计,显得更加时尚经典。
The bedroom is decorated with white bedside walls, brown-gray soft beds, Hermes orange sheets, simple angel white space, creating a high-level comfort; symmetrical bedside tables are placed on both sides of the bed, white bedside lamps are added, brown and white The design is more fashionable and classic.
05_
丨次卧
丨Second bedroom
次卧|次卧空间简单的墙面,布置棕褐色的软质床铺与灰色窗帘,增添橙色的床单,床边的电脑桌配置立脚单椅,空间实用灵活且舒适。
The second bedroom has a simple wall, tan soft beds and gray curtains, orange sheets are added, and the computer table next to the bed is equipped with an upright chair. The space is practical, flexible and comfortable.
你的每次点赞加分享 我都认真当成了喜欢
向你推荐一个超赞的公众号

往期案例推荐
点击图片即可获取全文
推荐阅读
佳鸿饰界,全称广东佳鸿饰界装饰设计工程有限公司,国家注册商标,注册资金1000万人民币。05年成立于广州,是集住宅与商业空间的装饰设计、施工、建材、家具、配饰、售后和增值售后为一体的一站式家居连锁服务商。佳鸿饰界以环保透明为企业的发展特色,是全国最先倡导环保透明家装的品牌。
目前旗下注册商标品牌: 佳鸿饰界整装、谷间私宅、非凡同创3大品牌,同时有佳鸿V8.大宅,佳鸿VV软装两个事业部。在东莞寮步、东莞常平、东莞虎门、珠海香洲、惠州大亚湾、惠州博罗、惠州惠阳、惠州罗阳、惠州惠东等地设有分公司,是广东省最具竞争力装饰公司之一及全国头部家装500强企业。
Honors
资质荣誉
中国头部家装500强企业
广东省守合同重信用企业
中国室内装饰协会会员单位
中国农业银行战略合作单位
湖南设计力量发起单位
东莞市室内建筑设计行业协会单位
百城设计联盟最佳设计创意奖
国家室内装饰企业设计乙级资质单位
国家室内装饰企业施工乙级资质单位
房天下2016年度中国家居风云榜--暨业主喜爱的家居品牌
2016年度装修品牌榜最受业主信任的互联网装修口碑品牌
校企合作企业联盟单位
2016年家装战略合作百强企业
2018年中国商业汇最具口碑装饰设计公司 网络评选大赛冠军
中国室内建筑学会室内设计分会会员单位
APDF亚太设计联盟会员单位
保利地产战略合作客户
万科战略合作客户
......

广东佳鸿饰界
16年专注环保透明家装
一站式整体家装服务商
淘宝/网页搜索“广东佳鸿饰界”都可以找到我们哦!
【非凡同创总部】东莞市寮步镇时代华庭二楼01室
【谷间私宅】东莞市寮步镇时代华庭二楼02室
【东莞寮步店】 东莞市寮步镇时代华庭三楼整层
【东莞常平店】 东莞市常平镇袁山贝文昌三街14-15号4楼
【惠州大亚湾店】惠州市大亚湾区响水北路12号
【珠海香洲店】珠海市香洲区前山左右创意园1栋2-12/13/23/24室
【惠州博罗店】惠州市博罗县罗阳镇荣鸿大厦601室
【惠州惠阳店】惠州市惠阳区淡水志隆大厦8楼
【惠州罗阳店】惠州市惠博大道中洲半岛四期11栋106-107号
【惠州惠东区域筹备部】敬请期待
【东莞虎门区域筹备部】敬请期待
【珠海金湾区域筹备部】敬请期待







