设计哲学
这里是一方空间
也是一段时间
从浮华喧嚣处抽身
只听见生活与梦境的旁白
内心的澄澈渐次回归
...
设计师
项目介绍
Project introduction
工程地址 :融创臻园
面积 :96㎡
户型 :3室2厅1厨2卫
风格 :现代简约
客户背景:
1.一个5口之家,三个卧室,分别是主卧,大次卧作为长辈房,最小房作为宝宝房。
2.需要多一点收纳空间,男主人偶尔会在家里办公,主卧要一个书桌。
3.喜欢现代风格,也要带点温馨。
4.小次卧面积偏小。
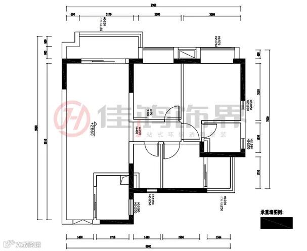
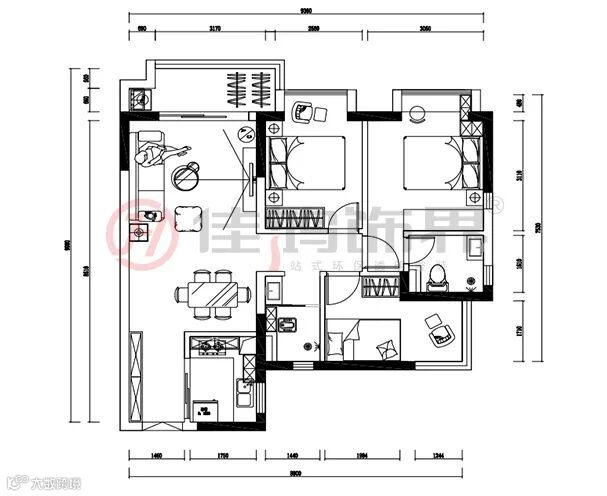
户型平面设计方案
Flat design plan
▲(原始户型图)
▲(平面布置图)
户型分析
House type analysis
存在缺陷:
✖️ 原始飘窗保留的情况下,卧室面积偏小。
✖️ 小卧室面积偏小,宝宝缺少活动区。
改造后:
✔️ 将主卧飘窗拆除,改造成一个主桌+书柜,满足了男主人办公需求。
✔️ 将长辈房的飘窗拆除,设置休闲沙发,作为一个长辈平时小憩和阅读之地。
✔️ 将小次卧和小阳台打通,合理利用小阳台的空间,扩大了小次卧面积,增加了宝宝的活动空间。
设计蓝图
Design blueprint
设计灵感:
温润的白色交织不同的乳胶漆,铺陈出清雅悠闲。漫阳入目,家是写在风里的温柔。利用淡淡的家具布局将原有的空间净化,把气质和品位含蓄地表现出来。
设计亮点:
多处墙面通过乳胶漆分色处理,营造温馨的室内氛围。儿童房预留了宝宝活动空间,让宝宝的成长更加多彩。
设计材料:
效果呈现
Effect
Living room
客厅
01
▲客厅,将情感与温度注入这偏居空间的一隅。金属铜的线性分子灯、皮质沙发、原木电视柜,不同材质互相碰撞融合,既有腔调又不会显得单调。玫红色的点缀温馨浪漫,让空间更加有温度。
Restaurant
餐厅
02
▲餐厅区为居家生活的重心,白色餐桌配绒面餐椅,最简单的搭配却有着回归真我的触感。拼接色漆将墙面与地面融为一个整体,保持色调的统一。忙碌的早晨在餐桌享用自家的早餐,清晨应有的仪式感,让生活更有情调。
Master bedroom
主卧
03
▲卧室在功能上增加了很大的储物空间,床头柜和书桌实现了完美结合,飘窗的拆除改造让空间更加惬意,屋主平时可在书桌上工作,闲暇之余也可以喝杯咖啡眺望远方。
Elder Room
长辈房
04
▲长辈房选择了高背床组合衣柜和休闲沙发的设计,低矮床卧的安全性会更高一些,保留了两侧床头柜,可放置小物品。加上一张小沙发也方便长辈看看书、沐浴阳光。整体颜色以温暖米色为主,让空间干净整洁。
Children's room
儿童房
05
▲儿童房具有丰富的色彩,延续空间自由洒脱的交叠调和,抛光和柔焦,大气与细腻,色调与纹理与在空间中达到巧妙的统一。线条感挂画赋予空间一种灵动性,同时搭配小象夜灯、亮橙色床品,带来归家的温馨与童趣感。
Bathroom
卫生间
06
▲卫生间内部是三角形的布局方案,钻石形的淋浴房做在了转角处,两侧摆放洗手台和马桶。浴室柜做了金属把手的设计,看起来更现代时尚。

你的每次点赞加分享 我都认真当成了喜欢
向你推荐一个超赞的公众号
往期案例推荐
点击图片即可获取全文
推荐阅读
佳鸿饰界,全称广东佳鸿饰界装饰设计工程有限公司,国家注册商标,注册资金1000万人民币。05年成立于广州,是集住宅与商业空间的装饰设计、施工、建材、家具、配饰、售后和增值售后为一体的一站式家居连锁服务商。佳鸿饰界以环保透明为企业的发展特色,是全国最先倡导环保透明家装的品牌。
目前旗下注册商标品牌: 佳鸿饰界整装、谷间私宅、非凡同创3大品牌,同时有佳鸿V8.大宅,佳鸿VV软装两个事业部。在东莞寮步、东莞常平、东莞虎门、东莞塘厦、珠海香洲、惠州大亚湾、惠州博罗、惠州惠阳、惠州罗阳、惠州惠东、惠州惠城、中山等地设有分公司,是广东省最具竞争力装饰公司之一及全国头部家装500强企业。
Honors
资质荣誉
中国头部家装500强企业
广东省守合同重信用企业
中国室内装饰协会会员单位
中国农业银行战略合作单位
湖南设计力量发起单位
东莞市室内建筑设计行业协会单位
百城设计联盟最佳设计创意奖
国家室内装饰企业设计乙级资质单位
国家室内装饰企业施工乙级资质单位
房天下2016年度中国家居风云榜--暨业主喜爱的家居品牌
2016年度装修品牌榜最受业主信任的互联网装修口碑品牌
校企合作企业联盟单位
2016年家装战略合作百强企业
2018年中国商业汇最具口碑装饰设计公司 网络评选大赛冠军
中国室内建筑学会室内设计分会会员单位
APDF亚太设计联盟会员单位
保利地产战略合作客户
万科战略合作客户
......

广东佳鸿饰界
16年专注环保透明家装
一站式整体家装服务商
淘宝/网页搜索“广东佳鸿饰界”都可以找到我们哦!
【非凡同创总部】东莞市寮步镇时代华庭二楼01室
【谷间私宅】东莞市寮步镇时代华庭二楼02室
【东莞寮步店】 东莞市寮步镇时代华庭三楼整层
【东莞常平店】 东莞市常平镇袁山贝文昌三街14-15号4楼
【惠州大亚湾店】惠州市大亚湾区响水北路12号
【珠海香洲店】珠海市香洲区前山左右创意园1栋2-12/13/23/24室
【惠州博罗店】惠州市博罗县罗阳镇荣鸿大厦601室
【惠州惠阳店】惠州市惠阳区淡水志隆大厦8楼
【惠州罗阳店】惠州市惠博大道中洲半岛四期11栋106-107号
【惠州惠东区域筹备部】敬请期待
【惠州惠城旗舰筹备部】敬请期待
【东莞虎门区域筹备部】敬请期待
【东莞塘厦筹备部】敬请期待
【珠海金湾区域筹备部】敬请期待
【中山筹备部】敬请期待







