设计哲学
再波澜壮阔的人生
也需要一个安放之处
热爱生活的人
总是乐意将家布置成最符合心意的样子
...
设计师
项目介绍
Project introduction
工程地址 :瑞丰园
面积 :109㎡
户型 :三房两卫
风格 :现代简约
装修费用:12w
客户背景:
1.想要三间卧室,两个小孩儿都在上学。
2.两个次卧都要求放置书桌,对厨房的空间要求较大。
3.卫生间更偏向淋浴隔断的设计。
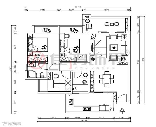
户型平面设计方案
Flat design plan
▲(原始户型图)
▲(平面布置图)
户型分析
House type analysis
存在缺陷:
1、动区空间较小,整个客餐厅空间呈窄长型。
2、主卧卫生间较小,正常的淋浴隔断放不下。
3、次卧空间较小,满足不了客户想要书桌的需求。
改造后:
1、利用边吊的设计让整个客餐厅空间的层次感更强,设计的钛金条使得空间很自然的形成了分区。
2、主卫放淋浴房,符合人体的工程学。
3、次卧增加榻榻米,使得次卧空间利用率得到进一步地提升。
设计蓝图
Design blueprint
设计灵感:
整体设计采用饱和度较低的颜色,使得整体效果非常适合久居,无处不散发着高端、典雅、宁静的气息。
设计材料:
铁艺、胡桃木、金属铜、大理石
效果呈现
Effect
Living room
01
客厅
▲客厅有着很好的采光条件,大面积的光线透过纱帘,呈现明亮的视野。在白色的基调上,融入了其他的色彩搭配,莫兰迪蓝色的抱枕,亮黄色的单椅和窗幔起到很好的点缀作用。其中,客厅具有丰富的线条,带来轻盈的空间感。
Restaurant
02
餐厅
▲餐厅布置一张现代风的餐座椅,布艺的餐椅两种颜色,右侧的餐边柜内藏灯带,也让用餐空间更加精致有仪式感。
Aisle
03
过道
▲客餐厅相连提升了空间视觉的延伸,使空间看起来更敞亮。同时采用黑色线条包边的吊顶和隐藏式的筒灯,过道氛围感十足,层层递进。
Master bedroom
04
主卧
▲主卧空间宽敞,贴墙放置上定制衣柜,飘窗的一侧开放式设计,打造成一个集休闲放松与阅读工作一体的区域,储物柜留出空格,可以放置装饰,书本等物品。
Second bedroom
05
次卧
▲卧室刷成了粉蓝的拼接色背景墙,软装上用的使人沉静的深蓝色。一体式的衣橱和写字桌,左边一角做成了书柜,方便收纳和整理,前面的空间刚好容纳下细脚的单椅。
Second bedroom
06
次卧
▲次卧延续了客厅素雅的风格,木质榻榻米采用收纳+装饰的设计方式,大大增加了储物空间,搭配质感十足的书桌椅和清新挂画,打造了简约舒适的生活空间。
我与业主朋友
业主从事教师行业,对房子的装修设计有很多自己的看法,对工艺的要求也比较高。我们进行过很多次的交谈,后面也是从一个设计师与业主的关系晋升成为了朋友,现在我们也会经常聊一些软装方面的设计想法。
你的每次点赞加分享
我都认真当成了喜欢
向你推荐一个超赞的公众号

往期案例推荐
点击图片即可获取全文
推荐阅读
佳鸿饰界,全称广东佳鸿饰界装饰设计工程有限公司,国家注册商标,注册资金1000万人民币。05年成立于广州,是集住宅与商业空间的装饰设计、施工、建材、家具、配饰、售后和增值售后为一体的一站式家居连锁服务商。佳鸿饰界以环保透明为企业的发展特色,是全国最先倡导环保透明家装的品牌。
目前旗下注册商标品牌: 佳鸿饰界整装、谷间私宅、非凡同创3大品牌,同时有佳鸿V8.大宅,佳鸿VV软装两个事业部。在东莞寮步、东莞常平、东莞虎门、东莞塘厦、珠海香洲、惠州大亚湾、惠州博罗、惠州惠阳、惠州罗阳、惠州惠东、惠州惠城、中山等地设有分公司,是广东省最具竞争力装饰公司之一及全国头部家装500强企业。
Honors
资质荣誉
中国头部家装500强企业
广东省守合同重信用企业
中国室内装饰协会会员单位
中国农业银行战略合作单位
湖南设计力量发起单位
东莞市室内建筑设计行业协会单位
百城设计联盟最佳设计创意奖
国家室内装饰企业设计乙级资质单位
国家室内装饰企业施工乙级资质单位
房天下2016年度中国家居风云榜--暨业主喜爱的家居品牌
2016年度装修品牌榜最受业主信任的互联网装修口碑品牌
校企合作企业联盟单位
2016年家装战略合作百强企业
2018年中国商业汇最具口碑装饰设计公司 网络评选大赛冠军
中国室内建筑学会室内设计分会会员单位
APDF亚太设计联盟会员单位
保利地产战略合作客户
万科战略合作客户
......

广东佳鸿饰界
16年专注环保透明家装
一站式整体家装服务商
淘宝/网页搜索“广东佳鸿饰界”都可以找到我们哦!
【非凡同创总部】东莞市寮步镇时代华庭二楼01室
【谷间私宅】东莞市寮步镇时代华庭二楼02室
【东莞寮步店】 东莞市寮步镇时代华庭三楼整层
【东莞常平店】 东莞市常平镇袁山贝文昌三街14-15号4楼
【惠州大亚湾店】惠州市大亚湾区响水北路12号
【珠海香洲店】珠海市香洲区前山左右创意园1栋2-12/13/23/24室
【惠州博罗店】惠州市博罗县罗阳镇荣鸿大厦601室
【惠州惠阳店】惠州市惠阳区淡水志隆大厦8楼
【惠州罗阳店】惠州市惠博大道中洲半岛四期11栋106-107号
【惠州惠东区域筹备部】敬请期待
【惠州惠城旗舰筹备部】敬请期待
【东莞虎门区域筹备部】敬请期待
【东莞塘厦筹备部】敬请期待
【珠海金湾区域筹备部】敬请期待
【中山筹备部】敬请期待







