
楼盘地址:御城水都
项目面积:128㎡
户型格局:4室2厅2卫
设计风格:现代轻奢

▲原始结构图
这是一套面积为128平米的四居室,房子南北通透,采光充足,舒适度高。屋主平时一家四口居住,希望有足够的收纳空间。 喜欢现代风格,整体简洁大方,融入些许轻奢元素。
1、主卧与入户门对门,隐私得不到保障,也不符合我们传统的生活习惯
2、屋主育有一儿一女,物品较多,屋内收纳空间不足

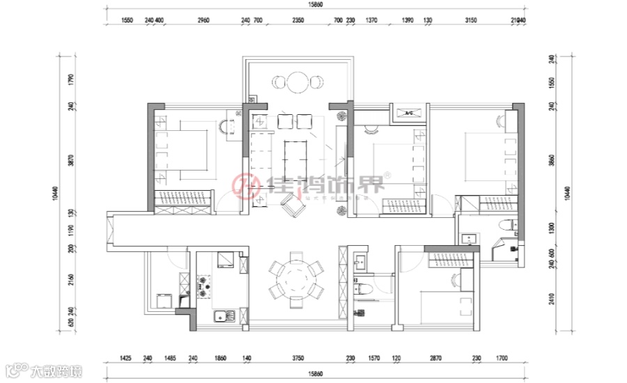
▲平面布置图
设计策略:
1、公卫根据功能需求优化空间布局后,设计干湿分区,空间利用更合理
2、主卧门位移,避免门对门的尴尬,并打通了过道的墙面,让家居动线更流畅
3、家有小朋友,更要注重收纳问题,根据使用需求,合理布置了收纳区
客厅与阳台打通,并去掉了传统大茶几的摆放,整个客厅空间的通透性和开阔性得到提升,也更适合家里俩孩子玩耍嬉戏。

电视背景墙以莫兰迪蓝色乳胶漆和木色的护墙板,给空间带来独特的视觉体验与韵味。下方搭配上一款深灰色的悬空地柜,整体拥有简约线条和天然纹路,优雅而大方。

来到餐厅,通透的视野透过客厅一直延伸到窗台上。整体为双眼皮吊顶+无主灯的设计,更显轻盈,雅致的白色空间以点点绿意和部分棕色进行点缀,干净简洁的软装布局,空间立体而敞亮。

餐边柜嵌在过道旁,整洁清爽,与墙面完美融合,通过开放格的提亮,凸显层次感。

公卫盥洗区外置,砌上半墙,功能及动线都更合理。灰色的墙面,在轻奢的定制柜体中流转,切割着、变换着空间的轮廓。墙面壁龛设计,方便实用。
主卧宽敞柔软的大床、温暖不炫目的色调、功能俱全的布局,让这里成为一个能让身心放松的场所。

整体以简约的设计手法构筑纯粹的生活情境。沉稳的灰蓝色作为主色调引导空间情绪,再以金属元素点缀,静谧与质感的格调氤氲而生。

智能家居为生活带来便利,LED美颜镜、自动冲洗的马桶,让主人每一天都能保持精致的状态。

次卧墙面是米色的乳胶漆,通铺木色地砖,搭配双开门的通顶衣柜,简约而不失美感。将意式轻奢皮床置于其中,整体散发出浪漫和优雅感。

男孩房追求恰到好处的舒适,靠窗一侧铺贴云朵壁纸,能为孩子带来一个促进睡眠、玩耍兼具的小空间。
定制的衣柜书桌一体,不仅可以增加收纳,也为小朋友打造了一个安静的学习区。

女孩房淡雅简洁,淡粉色的清甜与梦幻感透溢于女孩房各处。木搁架的布置,也启发小女孩对未知世界的探索。
本案设计师
Designer of the case

大湾区400余盘
数千样板工地开放参观中
👇 点击下方图片查看
往期案例推荐
点击图片即可获取全文
全国热线:400-6065-645





