空间承载着生活
而设计也更多的关乎人性
重建人与物的美好关系
构建与心一致的生活状态
...
设计师
项目介绍
Project introduction
工程地址 :中洲半岛
面积 :110㎡
户型 :四房两卫
风格 :北欧混搭
写在前面:
业主是高铁列车长,每次我都是在高铁站旁等待,并在车上备着小零食和牛奶,然后将业主接到公司来谈论装修细节,业主觉得我们的服务很好很用心。
而他较喜欢混搭风格。因为房子层高不是很高,所以建议业主用两圈石膏线代替边吊,再配上轨道灯和射灯,做出来的效果比边吊的效果更好,层高也不会低不会住的压抑,有粱位的地方吊平做筒灯就好,简单且好看。
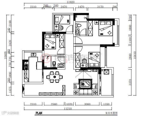
户型平面设计方案
Flat design plan
▲(原始户型图)
▲(平面布置图)
户型分析
House type analysis
存在缺陷:
✖️ 厨房面积太小,鞋柜无处安放。
改造后:
✔️ 把厨房小阳台打通,面积扩大后厨房用起来就很舒服了。
✔️ 在过道入户的位置布置一个换鞋凳,不显拥挤。
设计蓝图
Design blueprint
设计灵感:
设计师以北欧混搭风格的硬装,把家以清新自然的方式呈现出来,使整个空间简洁明快又富有生活化气息,色彩和材质搭配也极具层次,使人感觉眼前一亮的同时又很耐看,让我们随时都能感受到业主对生活的热爱与追求。
设计材料:
胡桃木、金属线条、艺术涂料等
效果呈现
Effect
living room
客厅
01
左右滑动查看更多
客厅设计柔和而自然,电视背景墙采用对称白蓝色漆的设计,以金属线条和壁灯营造精致感,搭配大理石的茶几和布艺墩椅,形成了自然清新的耐看画卷。
Guest restaurant aisle
客餐厅过道
02
左右滑动查看更多
在软装配饰上,设计师以原木材质与复古色调搭配呈现出别样的异域格调,立脚吧台椅、与线条挂画使得吧台区域极具时尚的张力。
Dinning room
餐厅
03
左右滑动查看更多
餐厅体现了现代人对就餐环境的品质追求,石材与布艺的碰撞,轨道灯、射灯与锥形吊灯的结合,不同的元素融合得恰到好处,墙上是色彩丰富的几何挂画。此刻,生活就是如此简单,放松下来享受美食时光即可。
Master bedroom
主卧
04
左右滑动查看更多
主卧做了飘窗的设计,采用拼接色背景墙、高级棕的皮质床卧和推拉门衣橱打造出空间层次感,整体陈设优雅而精致,加设鱼线型吊灯方便屋主的睡前阅读。
Second bedroom
次卧
05
左右滑动查看更多
与主卧温文尔雅的气质不同,次卧的设计更偏向现代轻奢,空间线条硬朗清晰。书桌与飘台相邻,实现了学习工作与放松休闲的两不误,软装的叠加铺设增加了空间的层次感。
Tatami Room
榻榻米房
06
左右滑动查看更多
榻榻米房的采光极好,纱帘轻舞,阳光撩拨着人的心弦。米色与木质的结合简洁明快,小书桌极具氛围感,使这方小天地得到了充分利用。
Children's room
儿童房
07
左右滑动查看更多
淡蓝色代表着美好的心情,对小朋友有着天然的亲和感,趣味的床头与飘逸的云朵,拐角圆弧设计的衣橱,创造出浪漫空间氛围,润泽心灵,使这里成为小朋友的乐园。

你的每次点赞加分享 我都认真当成了喜欢
向你推荐一个超赞的公众号
往期案例推荐
点击图片即可获取全文
推荐阅读
佳鸿饰界,全称广东佳鸿饰界装饰设计工程有限公司,国家注册商标,注册资金1000万人民币。05年成立于广州,是集住宅与商业空间的装饰设计、施工、建材、家具、配饰、售后和增值售后为一体的一站式家居连锁服务商。佳鸿饰界以环保透明为企业的发展特色,是全国最先倡导环保透明家装的品牌。
目前旗下注册商标品牌: 佳鸿饰界整装、谷间私宅、非凡同创3大品牌,同时有佳鸿V8.大宅,佳鸿VV软装两个事业部。在东莞寮步、东莞常平、东莞虎门、东莞塘厦、珠海香洲、惠州大亚湾、惠州博罗、惠州惠阳、惠州罗阳、惠州惠东、惠州惠城、中山等地设有分公司,是广东省最具竞争力装饰公司之一及全国头部家装500强企业。
Honors
资质荣誉
中国头部家装500强企业
广东省守合同重信用企业
中国室内装饰协会会员单位
中国农业银行战略合作单位
湖南设计力量发起单位
东莞市室内建筑设计行业协会单位
百城设计联盟最佳设计创意奖
国家室内装饰企业设计乙级资质单位
国家室内装饰企业施工乙级资质单位
房天下2016年度中国家居风云榜--暨业主喜爱的家居品牌
2016年度装修品牌榜最受业主信任的互联网装修口碑品牌
校企合作企业联盟单位
2016年家装战略合作百强企业
2018年中国商业汇最具口碑装饰设计公司 网络评选大赛冠军
中国室内建筑学会室内设计分会会员单位
APDF亚太设计联盟会员单位
保利地产战略合作客户
万科战略合作客户
......

广东佳鸿饰界
16年专注环保透明家装
一站式整体家装服务商
淘宝/网页搜索“广东佳鸿饰界”都可以找到我们哦!
【非凡同创总部】东莞市寮步镇时代华庭二楼01室
【谷间私宅】东莞市寮步镇时代华庭二楼02室
【东莞寮步店】 东莞市寮步镇时代华庭三楼整层
【东莞常平店】 东莞市常平镇袁山贝文昌三街14-15号4楼
【东莞虎门店】东莞市虎门镇连升路金洲商业大厦4栋9层整层
【惠州大亚湾店】惠州市大亚湾区响水北路12号
【珠海香洲店】珠海市香洲区前山左右创意园1栋2-12/13/23/24室
【惠州博罗店】惠州市博罗县罗阳镇荣鸿大厦601室
【惠州惠阳店】惠州市惠阳区淡水志隆大厦8楼
【惠州罗阳店】惠州市惠博大道中洲半岛四期11栋106-107号
【惠州惠东区域筹备部】敬请期待
【惠州惠城旗舰筹备部】敬请期待
【东莞塘厦筹备部】敬请期待
【珠海金湾区域筹备部】敬请期待
【中山筹备部】敬请期待







