
| 异国风情 古典之美 |
珠海•香溪庄
-
发现美
并且用象征的手法把美表现出来
是设计者的目的

业主家常住3人,较为年长,喜欢美式元素,古典、华丽、优雅。希望各个空间能得到合理利用,最后呈现出一个具备美感、舒适实用、令人眼前一亮的家。

ANALYSIS
户型解析

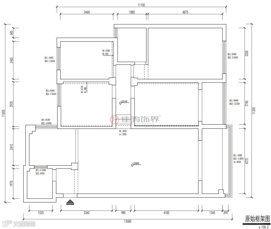
■ 原始户型图
1.原户型入户玄关效果欠缺,卫生间空间较小,使用率不高
Design设计策略:将鞋柜设置于正对门区域,采用实木定制,添加美式元素雕刻,打造入户玄关小景,提升美感。卫生间外扩,设计L型布局,实现干湿分离,空间利用率更高;
2.原户型楼层不高,采光欠缺,布局挡室外光源
Design设计策略:合理规划布局,减少室外光源区域遮挡物,让光源最大化地进入室内,增加室内明亮度;
3.原户型层高不高,大厅整体效果欠缺,缺少层次感拉伸空间
Design设计策略:通过走边灯带吊顶的方式,增加大厅的层次感,通过暗藏灯带的灯光,提升空间拉伸感,视觉上拉高了整体层高。再通过辅助射灯等,提升美感和亮度,优化大厅效果。

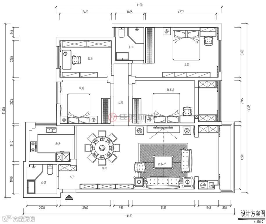
■ 设计方案图

EFFECT
实景呈现


-
对二人而言
对美式复古的空间追求
应该是从一踏进家门就开始的
入户位置做雕花式吊顶
设计1200mm+2600mm储物柜体
满足隐藏生活杂物
展示极具仪式感的美式门厅的要求





-
紧接着是餐厅空间
对生活的认知
会通过自身营造的环境氛围表现出来
并拥有主题与灵魂
从圆桌造型中受到启发
打造富有聚拢和围合感的餐厅氛围
木色与大理石可旋转台面搭配
稳重大方
精选细制
造就一家人的亲密无间




-
海基布+艺术涂料墙面
与复古地砖进行质感碰撞
优雅中传达出一种变化与动感
跌级吊顶内藏灯带
最顶上描绘一圈石膏线却丝毫不觉得繁复
色调与光线呈现出柔美的状态
黄金比例的线条切割
使整个空间节奏瞬间灵动
呈现出一种恰如其分的端庄大气感


-
客厅空间与阳台合并使用后
增加了空间纵向感
视觉更开阔敞亮
大通间式的布局让气氛变得更富有腔调
洗衣机烘干机叠放嵌入收纳柜内
从选衣、烘衣、再到存放
动线一气呵成
充分满足屋主的使用需求





-
鹅黄色与樱桃木色进行搭配交融
空间开放时
墙面反射柔和的光
并浮现色调温和的影子
夹杂着油盐酱醋的日常
也因此变得温馨美好
厨房门改造为吊柜移门
创造多元的使用功能
让空间与空间之间产生更多的交互



-
层层递进
一幅色彩饱满的百合花油画作为点缀
与卧室门比邻
从张扬的空间走向沉稳和静谧
中和整个色彩的冷暖比例
以台阶舒缓上下高度差
将入口以拱门造型释放于公共空间中
创造出灵动、层次感丰富的视觉效果



-
采用书柜框架与自然光线对立的手法
重组空间
构想一个能把学习、办公、思考
还有后期艺术性结合到一起的书房空间
将二人热爱生活的内心
通过另外一种方式表达出来




-
延续客餐厅柔和大气的浅色系
具有弧度的大床卧居中布置复古典雅
樱桃木梳妆台与边柜
纹理通直、色泽光亮
黄铜色吊灯与宫廷壁灯点缀精致感
卧室呈现出一种
浪漫优雅且温柔动人的气场



-
床尾排列斗柜
丰富收纳
搭配黄铜把手
有种旧时光电影感






-
横平竖直的线条
为长辈房带来沉稳的强大气场
在满足基本的功用外
更注重空间的多效利用
以及便捷的生活场景
复古储物柜与简约的线条搭配
营造出低调优雅的宁静之感
根据需要
榻榻米上还可布置小茶几和团蒲坐垫
为老人家创造一可心之地
闲时饮茶阅读
慢度时光
......



-
儿童房设计
以未来成长性为主题
暂时是处于留白的状态
只备有红木的床卧、床头柜和衣柜
以及更具活力感的铃兰花吊灯
将来会根据孩子的喜好及需求再进行补充




▲主卫

▲公卫
-
卫浴内部空间
经过设计和精确的尺寸推敲
同时满足了洗护、淋浴、如厕的使用功能
并选择不同色彩和形状的瓷砖
进行分布搭配
墙面半裙设计
从舒适到空间的美感都完成得十分讲究
不同的石材台面区分主卫公卫
极窄银框玻璃门通透感十足
设计巧思尽显

INFORMATION
基础信息
本案设计师 | Designer:周鑫
楼盘地址 | Address:珠海•香溪庄
设计风格 | Style:美式复古
户型格局 | Type & Area :4房2厅 130㎡
服务模式 | Pattern:全案设计+主辅材+施工
使用材料 | Material:实木、艺术漆、复古砖、石材

往期案例推荐
点击链接即可获取全文

133㎡大平层,纯粹自然之居

120㎡开放式三居,为一家四口量身定制的生活空间

全国热线:400-6065-645

