
78㎡现代简约之家
78㎡ Modern Minimalist Home

基础信息:
地址:龙城一号
风格:现代简约
户型:3房2厅1功能室
面积:78㎡

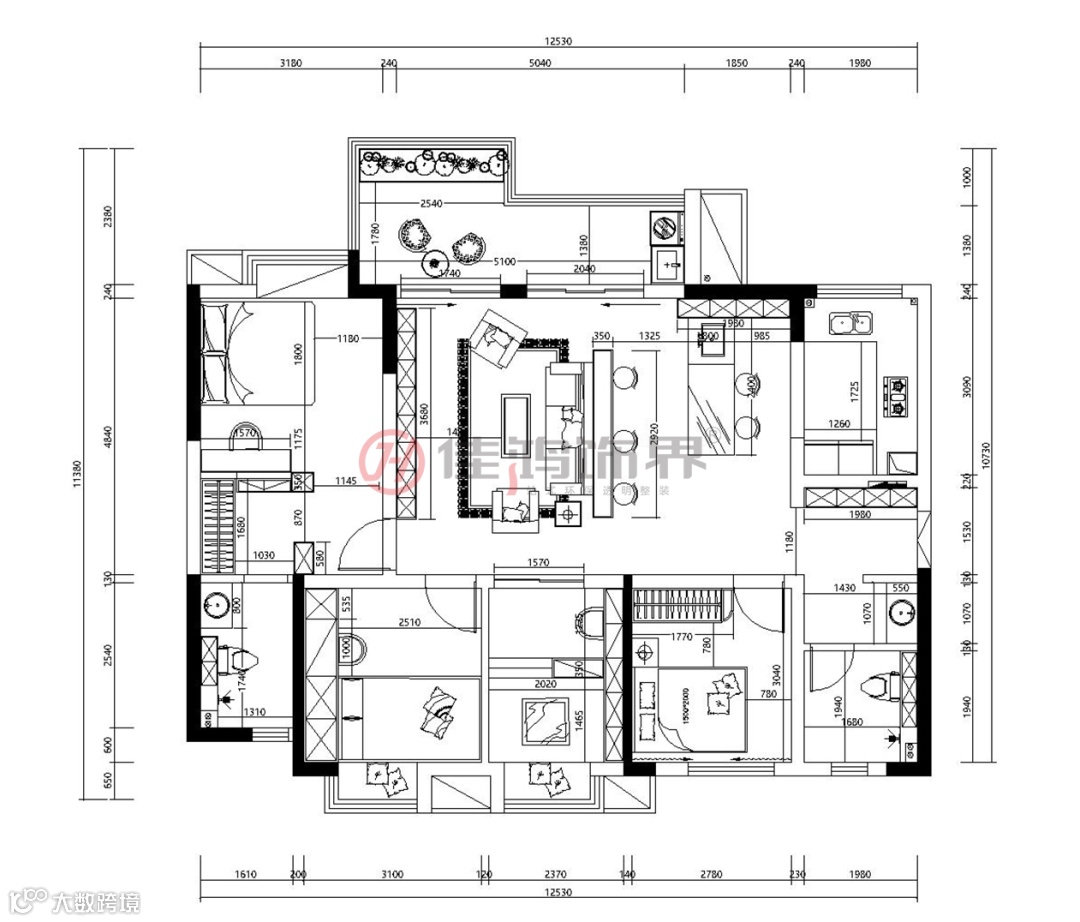
▲原始户型图
业主一家三代同堂,家中有老人、小孩,在欢声笑语中,尽享天伦。
作为改善型住房空间,我们在注重隐私的同时,提升了房屋的储物、收纳功能,借用部分多功能房空间,以此留给儿童更多的活动区域。
客餐厅一体式的设计让空间更加通透无隔断,注重对自然光线的引入,以浓郁的生活气息点亮“家”的温度。

▲平面布置图
户型优化:
1. 楼层较高,将部分阳台进行封窗处理,守护孩子安全。
2. 原户型动静分区不合理,儿童房空间比较小,所以对功能房借用空间,并在主卧做出独立衣帽区,使用更方便。
3. 对长辈房门洞进行修改,避免卧室门正对浴室镜子。
01
玄关
隔而不断,自然舒适


入户通铺灰纹地砖,侧边定制半开放式鞋柜,整体实用储物能力强。半墙+玻璃隔断,形成单独的卫生间干区,简约质感的设计,也增加了空间的自然舒适气息。
02
客餐厅
三代同堂,尽享天伦

将客厅、餐厅及吧台一体化,形成一个整体,动线更加合理,无主灯设计不压层高,视觉上让家更显大。

客厅电视墙面采用岩板+木格栅的装饰,以粉蓝色窗帘增添色彩,搭配意式组合茶几。整个空间造型鲜活灵动,在灯光的照耀下,给人一种时尚的家的温馨感。

方形餐桌搭配长凳和椅子,以插瓶点缀,自由搭配更具个性化,餐桌旁打造白色的吧台,顶上是垂吊的线性灯,空间层次感明显。
吧台后面是一整面的收纳柜,合理的设计让小户型也可以有大的收纳空间。
03
阳台
秩序井然,宁静迷人

阳台既是洗晾区域,也是观景区,上橱下柜的设计分隔电器和洁具,满窗的夜景作为最迷人的装点,也为家里增添了一些宁静的气息。
04
厨房
柴米油盐,有滋有味

厨房内部地面铺上方砖,整体墙面是几何图案+灰纹的墙砖,结合淡青色的定制橱柜、嵌入的电器,为主人营造出一个现代优雅而舒适的做饭空间。
05
多功能室
临窗而坐,轻拂微风

多功能房内带飘窗,采光充足。与墙面等高的书柜,中间开放,翻转后即能成为床卧,为屋主提供出足够多的空间。经典黑色书桌,搭配棕红色转椅,休闲办公模式一触即发。
06
卧室
功能分区,精致高级

独立的分区设计,让卧室拥有更大的活动空间。进门处设计通顶衣柜,布置布艺长凳方便主人更换,往旁边延伸过去是中空的展示柜,对面设计书架增加储物空间,也让拐角更加自然、美观。

去掉床头柜靠墙的一侧定制书桌柜体,可以坐这边看看书,休养身心。宝石蓝的背景以线条装饰不显单调,高背床卧棕色床品高级舒适,两个人就可以将生活过得精致享受。
07
长辈房
清新雅致,回归自然

长辈房的色调依旧是素雅的蓝白,黑色的床辅以颜色相近的床头柜,柔软舒适的抱枕,跳跃着绿色与蓝色,为空间带来活力。双推门衣柜按需设计成不同的尺寸大小,使衣物实现有序的摆放。
08
儿童房
奇妙空间,童趣乐园

男孩房在蓝色床头背景墙的墙面基础,一侧加入层叠环形吊灯,布置一张蓝白色的布艺低矮床铺,整体显得浪漫舒适而简约精致。

床尾设计成集储物收纳区、活动区和学习区一体式区域,为小朋友打造了一处童趣乐园。
09
卫生间
引光入室,视觉丰富

卫生间没有做明显的分区,空间也相应更大了些,一面窗户保证了日常的通风和采光,大理石墙面瓷砖搭配黑色镜柜浴室柜,鲜明的颜色对比丰富了视觉感。
往期案例推荐
点击图片即可获取全文
全国热线:400-6065-645





