
本案夫妻二人育有两个小男孩,男业主目前在深圳坪山工作,日常较繁忙,但不会因此降低生活水准。女业主喜欢料理和阅读,男业主喜欢品红酒看足球赛。Social功能是他们共同需求,希望家里尽可能开阔,能够有地方容纳朋友聚会。
同时他们对材质、细节的品质要求很高,钟情于简洁大气耐看的设计风格。
我们为了提高业主生活品质,希望把空间最大化敞开。围绕现代风,用大面积灰白色系,通过石材与皮质元素的结合,为他们营造纯净、自然、舒适的居住环境。
改造策略
Reform strategy

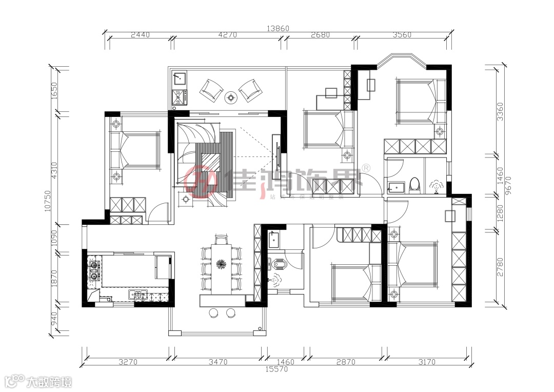
●原始结构图
主要居住需求:
需要客房,一体式客餐厅,视野开阔

●设计方案图
户型优化:
1、房子原始的户型当中阳台占用过多的空间,设计师将一半的空间隔出给到儿童房,使得每个空间均衡舒适。
2、拆除了没有必要的第三个卫生间,把面积留给卧室,让空间变大更舒适,同时完成了大宝房间内学习区的布置。
实景呈现
Live-action rendering

●厨房全景图
入户右侧是厨房,白灰主色调,上方是咖色吊柜下方是胡桃木地柜,用木材的纹理彰显空间的趣味性。
在厨房重油污地区的台面使用纯白石英石,干净好打理。

●客餐厅全景图
客厅空间简洁有序,连贯分明,有着充裕而灵活的活动空间。

回字形的吊顶采用了黑色线条装饰,将中央空调藏匿于其中,空间就显得更加明亮宽敞了。
室内地面铺设灰纹地砖搭配同色系的沙发背景,还有大理石电视墙,让整个家充盈着现代的时尚感。
屋主很喜欢邀请朋友来家中做客,所以设计师要满足这个给到客人的需求。
客厅L型沙发和方形茶几营造了一个轻松的氛围。和朋友坐在这里聊天、看球,是一种极致的享受。

客餐厅是开放的,空间的连贯,家人的互动都可很好地兼顾。整体保持着风格的统一,显得简约又讲究。


白色岩板餐桌清爽柔丽,能够很好地衬托食物的色泽,可旋转的设计也能兼顾到大人小孩的用餐需要。
灰色餐椅、分子吊灯与客厅相呼应,点亮了空间的暖意。


侧边定制了满墙餐边柜,封闭式与开放式相结合,收纳展示功能兼具。
黑玻柜内置灯带,方便主人拿取,而且可以带来更好的视觉体验。

●主卧全景图


主卧背景墙的配色,低调又十分舒适,与象牙白的衣柜相衔接,同时也在两侧加入了组合式的壁灯和吊灯,简约而富有层次。


奶乎乎的双人床卧以最舒适的靠窗形式出现,承载着大容量收纳的柜子颜值也很高,风格微暖,宅家不乱,设计还原真实生活。

●主卫全景图
卫浴空间在保持极简、无压的原则下,通透的玻璃门隔断与温润的陶瓷填充,带来了干净、清爽的舒适视觉,让紧绷的身体得到舒适、惬意的放松。

●大宝房全景图



大儿子房通过简约的吊顶造型,灰色的乳胶漆和温润的木色搭配,营造出一种能让心灵得到安宁的朴素和自然。
恰到好处的布局,让空间中每一个家具都得到合理的安放,床头柜的存在也方便了日常生活所需。


屋主希望能给儿子一个学习的空间,它需要保证安静和惬意。
所以设计师将多出的卫生间拆除,以开放的形式打造了这样一个温馨、静谧的阅读角。

●小宝房全景图


这间男孩房的空间色彩整体使用天蓝色+奶白的设计,视觉上优雅高级不失活泼感。
两种色彩结合在一起温暖又清爽,相信在这样一个阳光环境中,宝宝一定可以健康地成长起来。

定制衣柜设计简洁利落,与墙面保持统一,视觉上不突兀,储物空间也非常大。

宜家风格书桌书柜,现场安装,预留电脑键盘位。顶面筒灯,满足不同状态的灯光需求。

●客房全景图


客房把同色系的搭配进行到底,有着让人无法抗拒的整体性和素净。

空间弥漫着静谧安宁的氛围,以低调柔和色调的床卧搭配清新雅致的纱帘,舒适而温馨,诠释着主人对客人最暖心的款待。
装修信息
Information
项目地址:凯南广场
设计风格:现代简约
户型面积:5房2厅 140㎡
往期案例推荐
点击图片即可获取全文
全国热线:400-6065-645





