
家居空间的设计,涵盖了一个家庭生活的各个方面,设计不仅要满足生活的使用功能,还要突显主人家的生活品质。一起来看看这个品质与美感并存的新中式设计案例,是如何在打造居家功能的基础上,低调而细腻地表达出对生活美学和设计美学的独特见解。
面积:180㎡
户型:四室两厅三卫
家具及定制材质:花梨木+白橡木
出品:东莞·东家
设计师:伦肇军

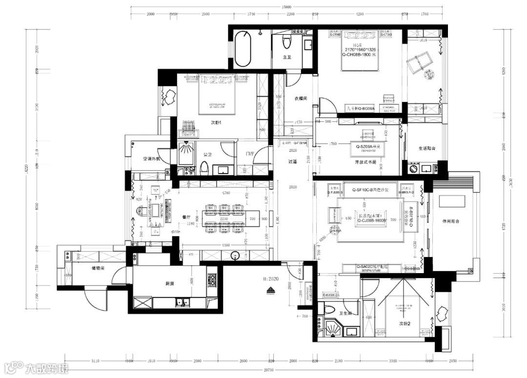
/ 平面户型图 /
本案户型为四室两厅三卫,设计师以花梨木材质作为家居设计主材,以时尚的新中式风格作为设计基调,希望可以改变固有的花梨木家具给人的感觉。运用不同的材质和空间规划对不同的空间属性进行规划布局,平衡色彩与空间的关系,营造出具有东方生活气息又不失现代感的居家氛围。
01 客厅

客厅是居家的中心,是承载欢聚生活记忆的空间。灰色软包的花梨木沙发占据了主要位置,与之搭配的是方形茶几,将舒适性与实用性融为一体。客厅背景以简洁硬朗的直线条,改变大面积的木饰面装饰的设计,采用大面积的白色搭配金属竖纹,为整体居家空间奠定了简约时尚的格调。

金属包框的大理石电视墙与沙发背景墙相互呼应,营造了整体极致与内敛的氛围。客厅轻奢时尚的灯饰,与雅致的新中式家具相辅相成,当新中式与轻奢融合,碰撞出独有的气质,是“简”与“奢”之间的平衡。

餐厅朴素自然的黑檀木大板餐桌,通过与大理石面的花梨柜体结合形成中岛台式餐桌,深浅色调的配色,表达出不同材质融合的魅力,使得每个家具独立而不孤立。顶墙餐边柜,兼具装饰、收纳的职能,内嵌的红酒恒温柜,彰显主人轻奢的生活品味和格调。

狭长的过道穿梭于整个空间,给人一种曲径通幽的感觉,地面简洁的波导线划分了餐厅与客厅的区域。浅色吊顶和内嵌的灯光,让走道变得宽敞明亮。走廊尽头别致的玄关摆件,给过道增添了一份恬淡优雅的美。
04 茶室

茶从口中入,道至心间生,打造一个独立茶室是每个爱茶的人心中所求。茶室淡雅的茶褐色木材家居,与餐厅花梨木色形成鲜明对比。采用内嵌式的收纳架,去除繁琐和华丽装饰,节省了空间的同时,营造了一个素雅简洁的茶室空间格调。
05 书房

新中式风格的书房,端庄素雅,它像是避开外界喧嚣的一处静谧。一套新中式风格的桌椅和对称的书架便可以打造一个书香沁心的书房,书架间现代元素的加入,避免了室内氛围过于庄重。在具有浓厚文化氛围的书房静心潜读,不失为现代家居生活中的一大享受。
06 主卧

主卧采用的家居材质是带有淡淡的木材香味的花梨木,自然的选材、奢适的性能、精细的工艺,营造出大气舒适氛围的主人房。设计师根据业主的需求在主卧配备了休闲区域,睡坐行立间都是业主追求极致的生活方式。

主卧配备的花梨木材质的独立衣帽间,保持了家居风格的美观和整体性。整面墙作的L型衣帽间搭配内嵌的灯带的设计,最大限度地利用转角空间。半开放的衣帽间功能规划齐全,实现轻松分门别类收纳,让整个空间显得干净整洁。


次卧作为客房,采用的是色泽清新的青山橡系列,无论是质感还是肌理,都散发着自然轻逸的美。青山橡系列用朴素而简单的设计语言,将温润的木材和高级感的设计融合在一起,透露出自然与纯粹的生活,符合年轻人的生活方式及审美需求,深受年轻人的喜爱。

根据次卧门厅的使用实际情况,设置顶墙的门厅柜,外观整洁优雅,实现利用空间弹性收纳,增大门厅的收纳储藏功能,可以让门厅长期保持干净,也能很好的装饰居家环境。
-
生活美学无框架可言,东家新中式风格的家居设计,可以通过家具的材质和对设计的态度,使设计更单纯简洁。为满足客户对生活品质的追求,东家在设计和产品里融入了温度及工艺之美。
喜欢的家人们欢迎在分享、点赞、在看!下一期,带大家看更多新中式大宅案例~
编辑丨梁晓婷