

在如今的城市生活里,拥有一方院子,过着竹影深巷的生活,是很多中国人的向往。今天我们来到一处纯粹为中国人打造的现代中式院墅——碧桂园铜雀台。这里的院墅采用坊巷的建筑格局,回归左邻右里的巷弄文化。青砖巷道,绿竹林立,闲暇时串门聊天,体验和谐的邻里氛围。


项目介绍
家具系列:东家·7号檀院、东家·胡桃里、东家·青山橡
项目出品:东莞·东家
设计师&出镜:伦肇军
摄影:黄细璇
摄像:潘明溪
文案:王文星
/ 点击观看视频 /
—
本期介绍的别墅是现代中式的建筑设计,与传统的联排别墅相比,L型的别墅结构,拥有更充足通透的采光面,借景入内,享受“对影看月,临窗听雨”的文人意趣。无论是舒适性还是私密性,都能得到保障。

本期业主蓝先生是一位80后,同时也是一个喜欢喝茶,拥有深厚东方情怀的人,可以说是,年轻的外表里住着深邃的灵魂。蓝先生本人非常注重细节,并且从方案的设计到项目落地,事无巨细全程参与,最终交付落地还原度高达90%以上。
全屋基于东家·7号檀院、青山橡、胡桃里3大系列,进行整体木作定制,极简文气的设计中,不失东方雅致。

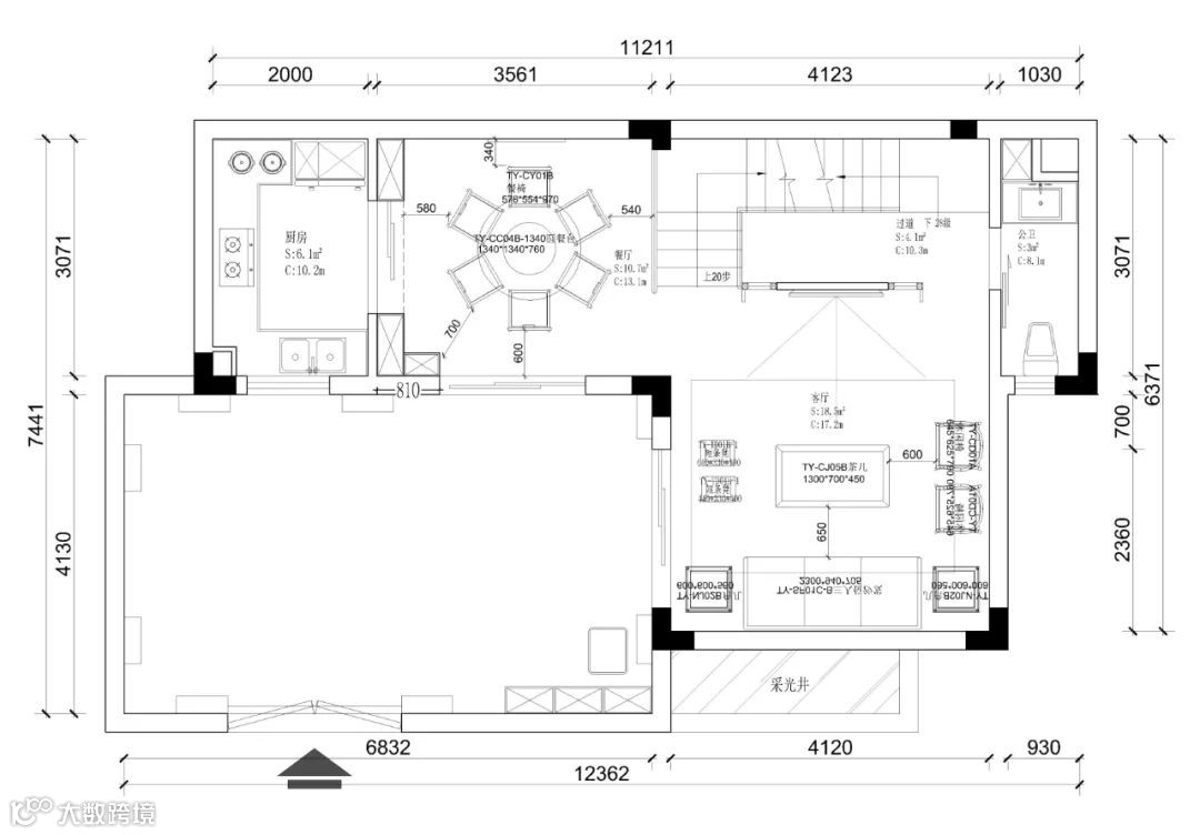
一层平面图
01 客厅


无论是软装搭配,还是定制设计,我们都尽可能地实现业主的需求。根据业主的生活习惯,我们将视听柜进行简化处理,隐藏电线与接口,看起来更为简洁大体。

为了保证过道的顺畅与家人的安全,电视与墙面几乎保持在同一个平面。电视背景墙利用了木栅格+磨砂玻璃的结合,采光与私密性,二者达到均衡的效果,再看顶部,与门框保持一致的通顶设计,拉伸层高的视觉空间,从有限的格局里通过细节发挥中式风格的“清、静、雅”。

02 餐厅

餐厅空间同样包围在木作的氛围中,圆形的天花对应餐桌,利用重复元素的呼应体现东方的意境。


将原本密封的楼梯间打通后,改造为更通透的观景窗,减少空间的压迫感,同时将间断的另一面巧妙地设计成餐边柜,增加储物的功能。


—

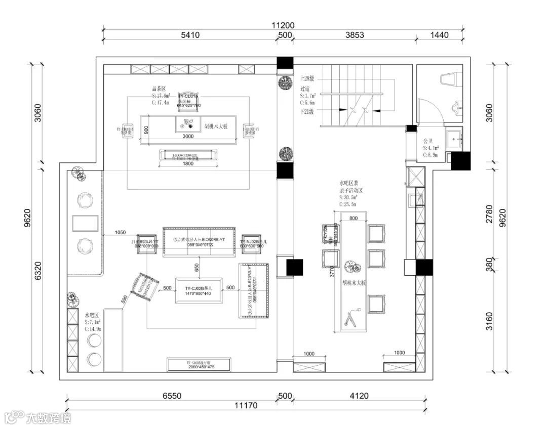
负一层平面图
一楼聚焦烟火气里的生活之美,而地下负一楼,则是展现生活里的志趣之乐。130平米的超大空间,划分为六大功能区,满足一家人的娱乐消遣。开放式的布局,通过天花线条、门框、柜体等木作装饰,丰富了空间的观感,同时起到区域划分的作用。

03 书画空间


文房雅玩,案头赏心。东家·7号檀院系列书桌,搭配水墨画般的背景墙,营造朦胧烟雨般的写意。雨过琴书润,风来翰墨香。闲来几笔,书写文人雅调。

培养孩子的阅读习惯,需要从家庭环境着手,量身定制的书柜必不可少,可以是开放式,也有封闭式,重点是营造“随时随地可读”的阅读氛围。

04 生活休闲区



客厅+吧台的组合,把社交功能和生活情调发挥到极致。结合实木与大理石打造的吧台,时尚感不言而喻。更宽松的沙发组合,带来更舒适的观影体验。



05 钢琴房


背景墙后面,是女儿的小天地。既是钢琴房,也是阅读室,琴棋书画,六艺皆通。两组多功能书柜,上方摆放书籍,下方存放玩具。后面摆放一张罗汉床,方便父母陪伴孩子练琴,在案几上阅读,充当小书桌使用。

06 茶空间



用一壶好茶,接待四方来客。有雅趣,便有雅物。温杯洗茶,品茗闻香,泡茶有仪式感,茶器的摆放同样也要有仪式感。



黑檀茶台与茶叶柜的组合,朴素而优雅,蓝先生为此取名为“幽玄茶室”,意思是追求品茗修身时的心神合一。

07 办公区

最后这个相对独立的区域,是为蓝先生本人打造的书房空间,书房是我们面对日常喧嚣时的一片净土。东家博雅书桌,宽阔的桌面设计,大气沉稳。读书办公,陶冶情操,用至简的陈设,装点一处文人空间。

08 玄关


地下二楼是车库以及换鞋区。精心布置的玄关空间,推开门就能感受到回家的温暖。通体定制的鞋包柜,内含充足的收纳空间,同时结合换鞋凳的设计,整体风格协调美观。

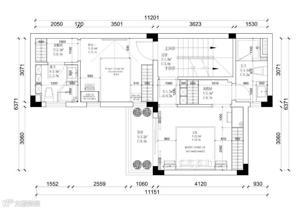
二层平面图
09 主卧


全屋的房门都采用通顶门设计,显得美观大气。主人房主要采用胡桃木材质,床具、衣柜、包括背景板,统一的胡桃色搭配,沉稳的色泽里渗透出高级感,每一处细节都经过深思熟虑。

衣柜封顶增加储物空间,整体协调性更强;圆弧的刀型带来柔滑的手感;柜门的设计简约而不单调;包括浴室柜,也是源自东家之手,实木质感为冰冷空间增加一点温暖。


10 次卧


儿童房则用了浅色调来营造轻松活跃的居住氛围。利用白橡木的原木质感,在木蜡油渗透下,呈现出自然优美的纹理,绿色环保的处理,无论是大人小孩,都需要一个健康的家居环境。


—
中式院墅的出现,真正做到建筑让步于自然。四面围合,檐下听风,竹径通幽处,巷院花木深。在回家路上,享受四季更替,鸟语花香。东家将东方美学的设计,完美融合当代中国人的家。在中国人的信念里,只有回家,才是回归生活。
喜欢的家人们欢迎分享、点赞、在看!下一期,带大家看更多现代东方的设计案例~









