
空间设计的精髓在于服务生活,每一处细致的考量背后都体现着一种生活方式。


项目名称:万科翡丽山
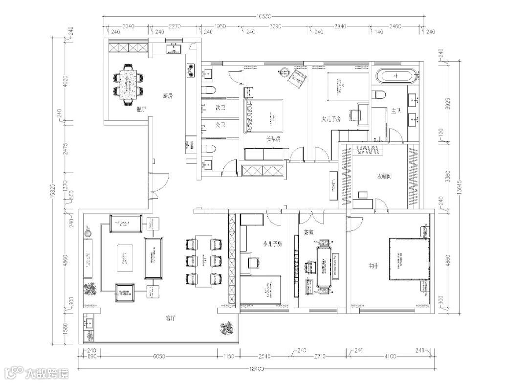
面积:260㎡四室一厅
家具系列:东家·胡桃里、东家·阿禧、东家·黑胡桃、东家·儿童
项目出品:东莞·东家
设计师:刘美华



客厅打破了传统设定,将阅读区域融入其中,用沙发形成了开放式的区域隔断,打造一个自如的空间。
沙发由胡桃木、浅色调、素色棉麻等元素搭建而成,能在生活的间隙感受到微妙而又和谐的氛围。独特的金边与细腻的纹理,透露着纯粹的美好,自然与人的连接就在此处显现。
宽敞的阳台由开放式改造成了封闭式,透亮的玻璃质感对于光线的引入恰到好处。胡桃木质的门套线为阳台增添了一抹动人的色彩,整体上既安全又通透美观。


另一角为精心设立的阅读区域,满足了家庭成员阅读的需求,更营造了书香满溢的良好家风。
搭配专定书柜,书柜与墙体的严丝合缝,在将空间使用面最大化的同时,使浩瀚的知识书海有了珍藏之地。


餐厅与厨房一体设计,静置一张木色温和的餐桌,显得雅致而精巧。大理石的桌面由格木作支撑,木与石的结合,体现了顺意的风水意象。



黑胡桃独有的沉静感,塑造出静谧典雅的茶室空间。茶台上丰富的纹理变化带来岁月美感,精细有致的线条设计,配合规整的茶叶柜,使空间空灵有序而不显沉闷。


主卧遵循简约的布局,提供一个舒适的休憩空间。床体由绵软的皮质软靠和温润的木质组成,减少了木作的生硬感,增添一份暖意。衣帽间、护墙板和床头柜对应着空间整体材质、色彩,是精心设计的融洽感。

老人房对整体边角处进行了圆滑设计,意在给予无限的空间安全感。床体各处圆润大方,木质细腻,床脚采用了内收式,不怕磕碰,细致且贴心。定制衣帽柜设计了隔断柜,放置常用物品十分便捷,小巧的休闲椅迎合了老人不宜久卧的习性,无形中更是体现了对家人的关心与爱护。

(大儿子房)

(小儿子房)

儿童房在设计上采用统一理念,浅淡的白橡木混搭温暖的胡桃木,视觉上温馨淡雅,给予轻松惬意的空间感。
同时十分注重品性习惯的养成,通过书桌、矮柜和隔板等的设计搭配,培养孩童自觉学习、整理归纳的能力。
空间与人的连接,是设计理念与生活方式的融合,从整体空间布局到微小边角处理,无一不是对生活的诠释。
设计:余贵
编辑:骆玉翠









