
项目名称:万科城市高尔夫花园
面积:200+㎡
家具系列:东家·黑胡桃、东家·7号檀院、东家·阿禧、东家·儿童
项目出品:东家东莞星河城店
设计师:胡慧


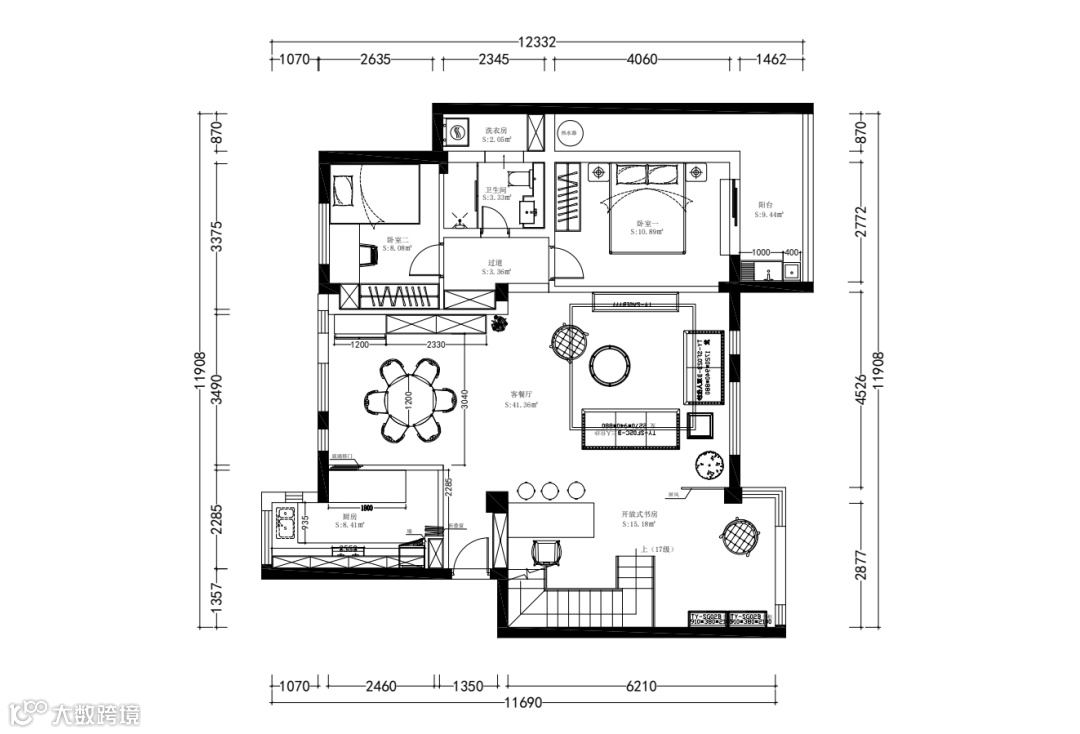
一层平面图
“遵循风格导向的生活本身是一种悖论,生活方式才是设计的主导。风格一词有时间的局限性,未来的房子,会流行什么风格,是轻奢还是极简,归根结底是由生活方式来决定的,因此在给自己设计房子的时候,我更倾向一种融合风格,有这个时代的印迹,更重要的是,能够包容每一位家庭成员的生活需求。”




在“去风格化”的理念基础上,设计师萌生了“去客厅化”的想法,原因是家有二宝,希望营造更多的公共区域,来陪伴孩子的成长,同时也考虑到家里老人的习惯,选择暂时保留了电视,但沙发的位置则依照传统的布局,一定程度上削弱了客厅的观影功能,换来的却是,宽阔的亲子娱乐活动空间。




整体空间的风格遵循了“重软装轻硬装”的设计理念,如何在大白墙的基础上提升空间品质,选择用木色来点缀空间。
客厅的背景铺砌了一面墙的木饰面板,家具与背景融为一体,一方面利用木的视觉与触感,让空间更有温度,另一方面为了抵消家具的体积感,同色系的沙发与窗帘,也是同样的处理手法。



以人为本的设计不止步于基本的生活需求,更应着重精神领地的打造,在有限的格局内发挥更多空间功能。若隐若现的木屏风从视觉上起到空间划分作用的同时营造开放式的互动氛围,让书房、休闲区与客厅的关系变得更加和谐。





原木大板书桌,承担起孩子学习与大人办公综合功能,利用楼梯的异形空间定制内嵌书柜,造型妙趣横生。双排落地窗带来充沛的采光条件,坐在休闲沙发上阅读,舒适惬意。



餐厅厨房是本案中最大的户型改动,原本是封闭的卧室,影响了客厅的采光。打通墙体,厨房改造成半开放式,双吧台的设计,增加生活的互动性,为此特意搭配了圆餐桌,用餐舒适度提升一个档次。






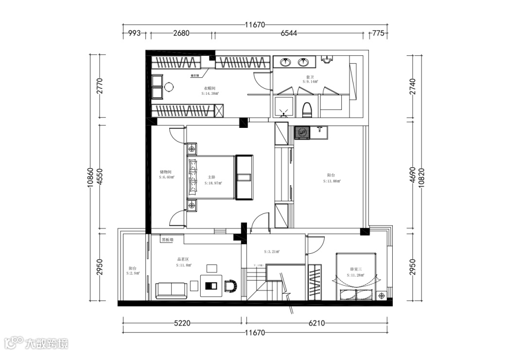
二楼平面图



由阳台改造而成的茶室,不仅仅是茶室,而是集合水吧、茶室、起居室和娱乐室等功能的空间。在设计构想中,二楼除了卧室空间,同时需要一个能解决起床后/睡觉前的生活区域,空间不大,但安静的氛围与一楼的环境形成过渡,让感官与情绪有一个动与静的交替变化,人性化的设计毋需震撼人心,而是用“润物细无声”的方式滋养人。





白天,是拥有自然采光的阳光房,孩子们在黑板上涂画嬉戏。夜晚,是静心品茶的灵魂居所,迎来全身心的惬意。半镂空的阳光房,让昼夜的温差更加怡人。迷你水吧台不占用空间,使用起来更方便顺心。



温和的木色让卧室内敛沉稳,细腻的质感,在灯光的烘托下,营造出轻奢感。坡屋顶的木天花,让简约与时尚在空间内达到平衡。






坡顶结构的区域被巧妙地设计成收纳空间,同时利用天窗的自然光,作为衣帽间的主光源。开放式的衣柜设计,不仅让衣柜拥有了展示的功能,也让衣帽间更具通透的质感,而全实木材质则让空间更显奢华大气。



老人房的布置简洁实用,为老人家提供足够多的活动空间。无论是墙面还是家具都注重细节的质感,精心挑选的软包靠背,充分为老人家的身体进行考量,而床边的休闲椅,则贴心地营造多一个生活场景。



儿童房的设计重点围绕健康与成长,精选白橡木材质的家具,打造浅色系的童话意境,面积有限但书桌却不能少,目的是为了孩子提供独立学习的环境。
去风格化不是不需要风格,而是不拘泥于风格,它能够包容多种风格并存。当设计的目的在于舒适与体验,而风格则用来表达生活习惯和人文精神。
编辑/排版:王文星









