龙湖——龙誉城·现代极简
客厅整体采用灰白背景
搭配极简黑家具
白色为空间带来纯粹的感觉
极简黑为空间增添了神秘感
结合无主灯的设计
打造出温暖平和的氛围
在空间设计上
强调以少胜多,以简胜繁
摒弃多余而浮夸的装饰
留下一些功能性较强的家具
呈现出一种感官上的极致简洁
从而追寻更加有序,高效的生活方式
以高度凝练的色彩
极度简洁的造型
在满足功能的前提下
将空间与家具进行
合理精致的组合
让空间与色彩达到平衡
化繁为简
减法的高级感
赋予空间鲜活的生命力
以光为舞台
与时间共舞
空间以低饱和
色彩为基调
恬静素雅
满满高级感
阳光跃进空间
营造出慵懒柔和的氛围感
极简不仅仅是指视觉上的简约
更能在细节中凸显品质
看似简单的背后
容纳着生活中的各种色彩
没有过多华丽的装饰
却可以彰显高级感
给人带来一种返璞归真的感受

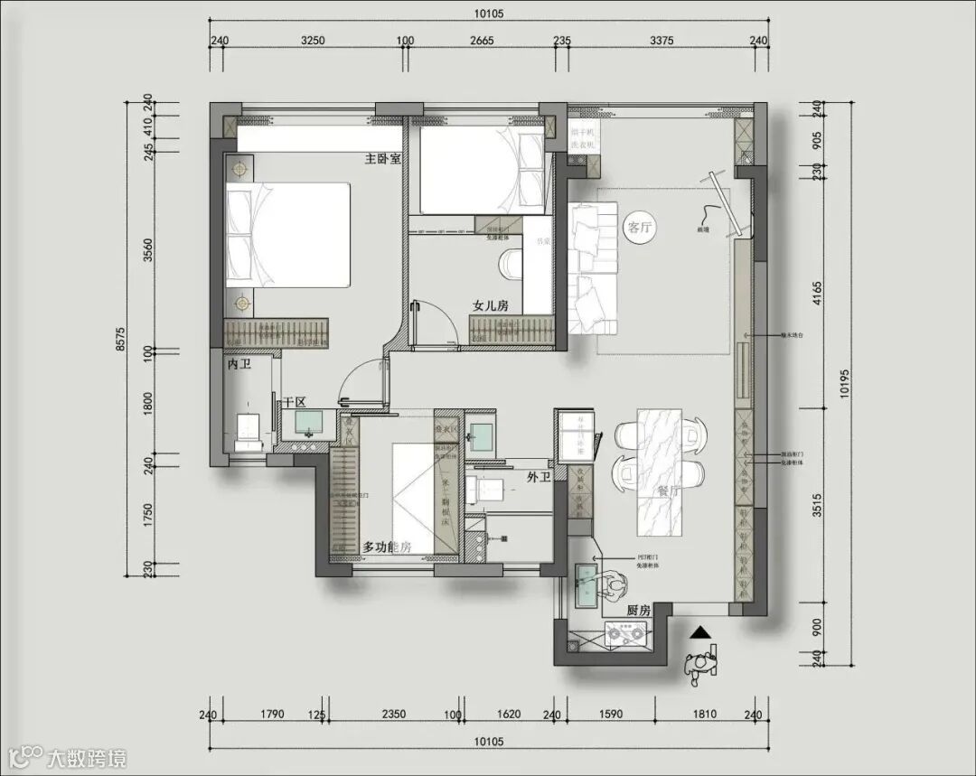
(户型图)
(扫码即可联系专属客服)
项目信息
项目地址|龙誉城
项目面积|88m²
项目类型|平层
项目承建|迈森空间
项目风格|现代极简
项目信息
(扫码即可联系专属客服)
(具体位置)

