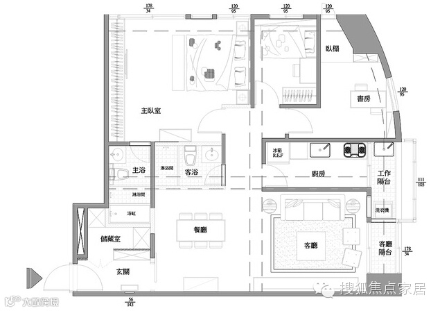
入门,穿越右侧直向的立面层次、左侧鞋柜与步入式的收纳空间,简单的餐柜与餐桌灯饰,传递清爽乾净的简约气质。
以温馨的色调铺陈简单乾净的客厅空间,看似利落的电视主墙,以暖色带有颗粒感的壁纸处理,细腻的触感层次缓慢于生活中发酵。







【更多精彩,请点击下方“阅读原文”!】
这里是【搜狐焦点家居】官方微信。喜欢的话就点击右上角,分享给更多朋友吧!
如何关注我们的微信:
1.点击右上角-查看公众账号
2.添加朋友-查找微信公众账号-搜索“搜狐焦点家居”
更多精彩内容请登录搜狐焦点家居:http://home.focus.cn


