
引进山脉的壮阔,以设计重新解构、组合山居宅邸的新意,把对於大自然的尊重,化作媒材特质表现,不造作地、粗犷地一一相映成景。
既要与在地生态完美链结,必先破除过多的实体墙线阻隔,因此,透视性的公领域中,餐桌与低高度的电视主墙设定,流畅出了双口字型的迴动,步步释放著空间生命力与有机价值。
山林接壤之间,设计师虞国纶映以木质为大基底,弱化的轨迹中,变化着私领域的自在与隐蔽,意识性地重写山林豪宅的无限想像。
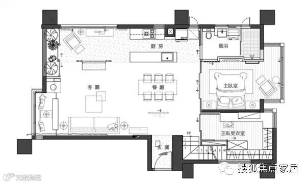
房屋平数:92平
图片提供:格纶设计
空间格局:玄关、客厅、餐厅、厨房、主卧房、主卧更衣间、卫浴
主要建材:铁件、石材、木皮、实木













【更多精彩,请点击下方“阅读原文”↓↓↓】
这里是【搜狐焦点家居】官方微信。喜欢的话就点击右上角,分享给更多朋友吧!
如何关注我们的微信:
1.点击右上角-查看公众账号
2.添加朋友-查找微信公众账号-搜索“搜狐焦点家居”
更多精彩内容请登录搜狐焦点家居:http://home.focus.cn


