
业主作为70年代出生的人,又是律师职业,性格比较严谨、沉稳,同时又透入出中国人特有的勤劳美德,所以家的实用性、功能性、对业主来说显得格外重要,他们不过多的追求华丽的外表,所以在设计时即便是装饰性设计布置的元素也要有一定的实用功能;色调上以白色、木色为主,体现新中式的格调;作为一个由传统的中国文化熏陶出来的一代,元素的构成中吸纳中国符号的元素是很有必要的,同时融入一些主人收藏的一些书画、古董、摆件,更能体现中式文化的内涵:追求优雅与浪漫、崇尚中式文化与艺术表现的人。

客厅效果图

餐厅效果图

书房效果图

卧室效果图

娱乐室效果图

卧室效果图

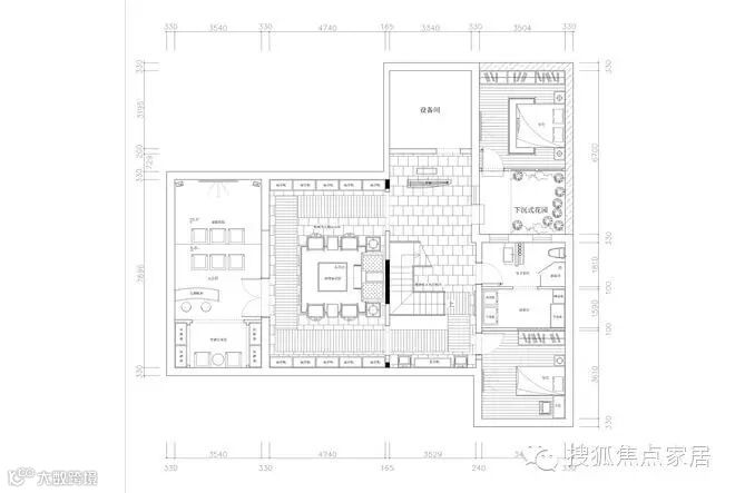
平面图

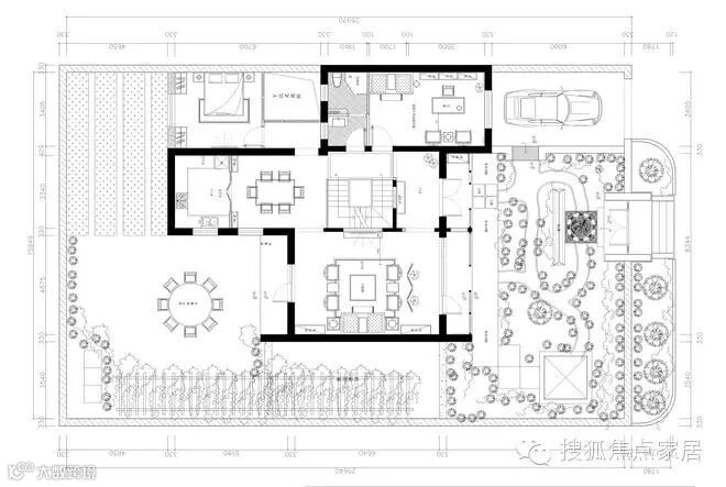
平面图

【更多精彩,请点击下方“阅读原文”↓↓↓】
这里是【搜狐焦点家居】官方微信。喜欢的话就点击右上角,分享给更多朋友吧!
如何关注我们的微信:
1.点击右上角-查看公众账号
2.添加朋友-查找微信公众账号-搜索“搜狐焦点家居”
更多精彩内容请登录搜狐焦点家居:http://home.focus.cn

