
风格:美式
居室:二居
面积:114平
造价:4万/半包
设计思路:
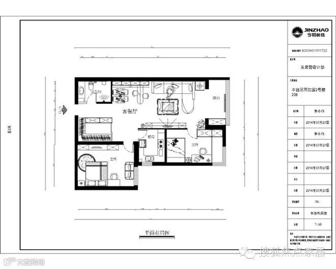
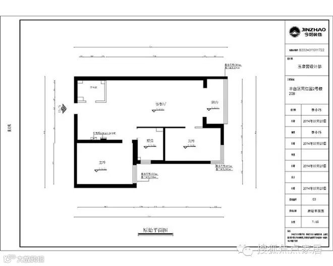
房子是业主买的二手房,年轻夫妻二人,原始格局的卫生间面积较小,把卫生间的墙整个后退,扩大卫生间的面积,整体显得大方整洁实用性强。女主人喜欢美式风格,在家居选材方面也大都偏向美式的爱好。其次对于原始布局也有一些改动。进门的衣帽间,增加女主人多衣帽间的需求,吧台的设计比较时尚,原本破旧的二手房,焕然一新。

客厅效果图

餐厅效果图

客厅效果图

平面图

户型图
【联系设计师,请点击下方“阅读原文”↓↓↓】
这里是【搜狐焦点家居】官方微信。喜欢的话就点击右上角,分享给更多朋友吧!
如何关注我们的微信:
1.点击右上角-查看公众账号
2.添加朋友-查找微信公众账号-搜索“搜狐焦点家居”
更多精彩内容请登录搜狐焦点家居:http://home.focus.cn

