
风格:现代
居室:二居
面积:88平
造价:7万/全包
设计思路:
业主是一对准备结婚的年轻人,房屋为婚房。设计需求:需要单独的衣帽间,整体风格低调奢华,喜欢黑白灰的色调。

客厅效果图:灰色的墙面,黑色的造型,白色的顶面,黑白灰的简单色调,搭配少许浅绿色壁纸色的使用,在低调的单色世界里融合了宁静的气息。

餐厅效果图:厨房开放式,餐区又与客厅相连接,既要划分出餐厅的区域,又不能因为区域的划分而使空间割裂,失去大空间的明亮宽敞。

卧室效果图:作为婚房使用,卧室即不能走简约的风格,又不能脱离整体色调,同时还要有新婚的喜庆感。

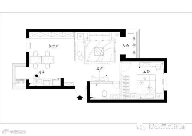
户型图
收藏查看原图
平面图
【更多精彩,请点击下方“阅读原文”↓↓↓】
这里是【搜狐焦点家居】官方微信。喜欢的话就点击右上角,分享给更多朋友吧!
如何关注我们的微信:
1.点击右上角-查看公众账号
2.添加朋友-查找微信公众账号-搜索“搜狐焦点家居”
更多精彩内容请登录搜狐焦点家居:http://home.focus.cn

