
设计师将整体的风格定义为中式风格,混搭入现代简约、欧式、美式等多种别墅装修风格的元素,同时采用艳丽的颜色,是的整体装修时尚、热情奔放!

时尚多彩的独栋别墅装修-客厅

时尚多彩的独栋别墅装修-客厅一角

时尚多彩的独栋别墅装修-餐厅

时尚多彩的独栋别墅装修-一层楼梯

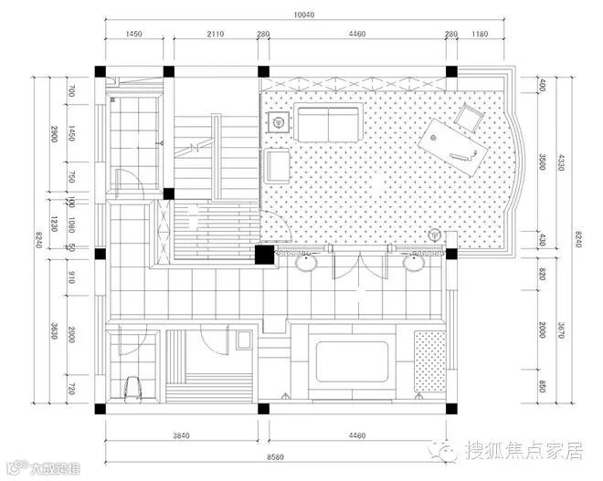
时尚多彩的独栋别墅装修-一层平面图

时尚多彩的独栋别墅装修-二层书房

时尚多彩的独栋别墅装修-二层书房

时尚多彩的独栋别墅装修-二层书房及卫生间

时尚多彩的独栋别墅装修-二层卫生间

时尚多彩的独栋别墅装修-二层卫生间

时尚多彩的独栋别墅装修-二层卫生间

时尚多彩的独栋别墅装修-二层平面图

时尚多彩的独栋别墅装修-三层楼梯

时尚多彩的独栋别墅装修-三层主卧

时尚多彩的独栋别墅装修-三层梳妆台

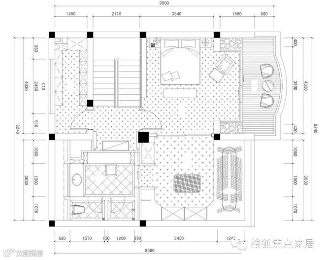
时尚多彩的独栋别墅装修-三层平面图

时尚多彩的独栋别墅装修-地下茶室

时尚多彩的独栋别墅装修-地下茶室

时尚多彩的独栋别墅装修-地下茶室

时尚多彩的独栋别墅装修-地下过道

时尚多彩的独栋别墅装修-地下影音室

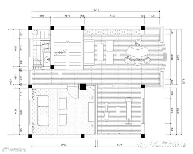
时尚多彩的独栋别墅装修-地下平面图
【更多精彩,请点击下方“阅读原文”↓↓↓】
这里是【搜狐焦点家居】官方微信。喜欢的话就点击右上角,分享给更多朋友吧!
如何关注我们的微信:
1.点击右上角-查看公众账号
2.添加朋友-查找微信公众账号-搜索“搜狐焦点家居”
更多精彩内容请登录搜狐焦点家居:http://home.focus.cn

