
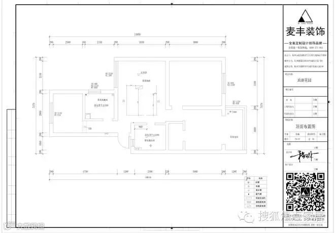
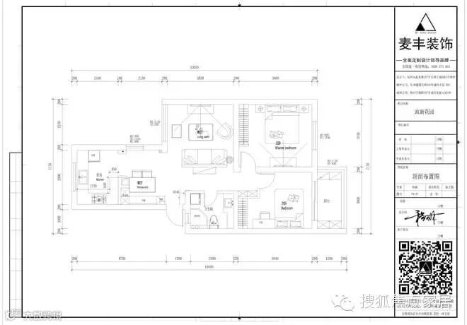
风格:清新美式
户型:砖混三室一厅
建筑面积:89㎡
主要用材:砖、乳胶漆、窗帘、墙纸、木线条、彩条砖
作品说明:
本案为老房改造记,在整套房子的设计中我们采用带有清新感的现代美式风格,把偏小的公寓空间放大化处理,设计中放弃了复杂的形体表现,更多的是把家具融入到空间中去,想利用配饰的搭配来呈现风格,而非在装饰造型上下很大的功夫,这样也方便在小空间制作。














【更多精彩,请点击下方“阅读原文”↓↓↓】
这里是【搜狐焦点家居】官方微信。喜欢的话就点击右上角,分享给更多朋友吧!
如何关注我们的微信:
1.点击右上角-查看公众账号
2.添加朋友-查找微信公众账号-搜索“搜狐焦点家居”
更多精彩内容请登录搜狐焦点家居:http://home.focus.cn

