
风格:现代
居室:三居
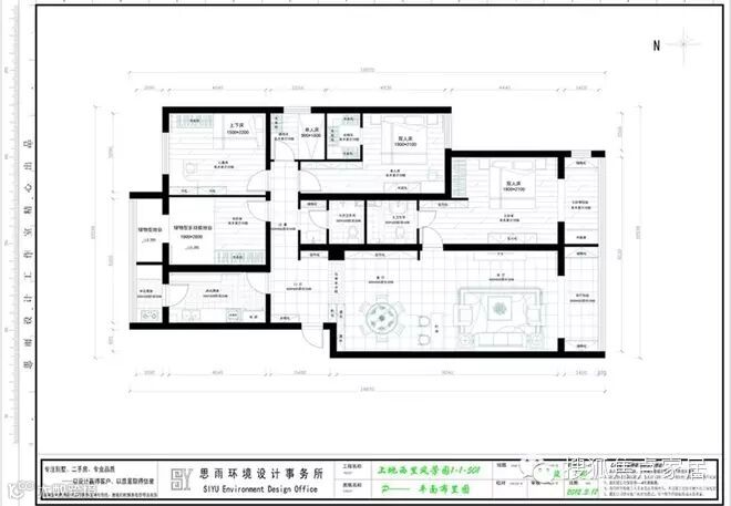
面积:160平
造价:5万/全包
设计思路:
此户型是一家三代人居住,而且还有一个保姆。虽然房子比较大,但是居住人口也是非常多呀。
整体户型结构上并没能做太大的改造,仅对两个卫生间空间整体了一些简单改造,但是大大改变了生活方式,提升了生活品质。尤其是次卫生间的改造方式,实现了干湿分隔,同时又为卫浴用品提供了专门独立的收纳空间。
对于老人房增加了一个衣帽间,考虑家里有两个小孩,都需要相对宽敞独立的娱乐空间,所以考虑客卧室设计了地台的形式,并且把此地台一直延伸到阳台,同时增加一步台阶的形式,增加空间的趣味性。
在空间氛围的营造上,主要是通过暖色的墙面,雕花的镜面,高光泽折射的马赛克互应起来。可以让业主全家人居住在温馨且有品质的生活空间。

餐厅实景图:餐厅

客厅实景图:客厅

其它实景图:门厅

平面图:原始结构图

平面图:平面布置图
收藏查看原图
平面图:顶面布置图
【更多精彩,请点击下方“阅读原文”↓↓↓】
这里是【搜狐焦点家居】官方微信。喜欢的话就点击右上角,分享给更多朋友吧!
如何关注我们的微信:
1.点击右上角-查看公众账号
2.添加朋友-查找微信公众账号-搜索“搜狐焦点家居”
更多精彩内容请登录搜狐焦点家居:http://home.focus.cn

