
风格:现代
居室:二居
面积:80平
造价:6万/全包
设计思路:
这个设计风格以简约时尚为主,把简单的线条融合在一起,来创造出简单,时尚,个性,另类的气氛。在方案中把客厅和餐厅融合在了一起,在客餐厅与进户门过道间设置了一个通透的玄关。

卧室效果图

客厅效果图

客厅效果图

卧室效果图
收藏查看原图
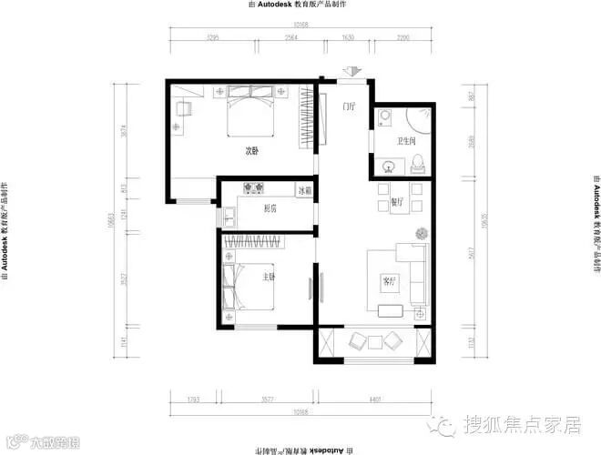
户型图
【更多精彩,请点击下方“阅读原文”↓↓↓】
这里是【搜狐焦点家居】官方微信。喜欢的话就点击右上角,分享给更多朋友吧!
如何关注我们的微信:
1.点击右上角-查看公众账号
2.添加朋友-查找微信公众账号-搜索“搜狐焦点家居”
更多精彩内容请登录搜狐焦点家居:http://home.focus.cn

