本文整理自搜狐焦点装修论坛资深专家孙工的装修日记
原题:我家装修设计重在以人为本——孙工装修日记
经搜狐焦点家居小编小王整理而成

本文以即将装修的毛坯房或二手房为例,并以最短的5年为期限来讨论需要进行的装修风格及布局。主要分如下几个情况分别讨论:
1、5年内不准备要孩子的小夫妻(重点)
2、5年内准备要孩子的小夫妻(重点)
3、5年内父母将来长期同住
4、5年内准备要孩子而且需要父母来帮忙带孩子同住
5、5年内准备要孩子而且需要雇保姆来照料孩子同住
6、5年内不准备自己住用来出租赢利
本文将重点就前两种情况进行深入分析讨论(毕竟前两种基本是最普遍的情况)。
注:
本文只讨论最经济实用的户型设计方案。如果家里是土豪、住大别墅,您随意~

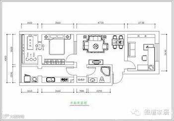
一、5年内不准备要孩子的小夫妻
这类夫妻一般是事业型夫妻,或者叫创业型夫妻。生活节奏比较快,社会交际比较频繁,在家的时间比较少,做家务的时间也少。他们的居住强调个性和随意,以舒适、方便、简洁为宗旨。因此——
1、大格局定位:一阳台、一卧室、一客厅、一书房

(图例)
睡觉、看电视、看书上网、运动休闲都有独立的区间,互不影响,同时每个区间都可充分发挥其功效。两口子可以独立看电视、睡觉、上网、运动,保持了现代人应有的独立空间需求。即使家里临时来人,也可以在客厅或者书房的沙发床上将就一下。
2、卧室定位:舒适宽敞

(图例)
对于上班族来讲,卧室是在家中停留时间最长的空间,因此其舒适性、宽敞性和通风光照的良好性很重要。家是你自己的家,你自己最常停留在哪里,就要将哪里弄得最舒适,这是装修的原则。相反,孙工倒是觉得客厅并不需要弄得那么好。
3、客厅定位:实用宽敞

(图例)
像客厅这种家中最宽敞的场所,不要在装修时期就将其设计得满满的,保不齐在你入住后的日子里,今天相中一副好画、明天看到有漂亮的装饰品、后天有特价实用的地灯,大后天觉得同事那谁家的客厅的那啥也不错,也想弄一个……所以,客厅有基本功能就好了,客人来了能有地方坐、家里吃饭能摆下桌,就OK了~
4、书房定位:舒服实用

(图例)
在家上网、看书、工作是目前的大趋势,而家里的书房不同于办公室,不需要拘谨,所以舒适随意很重要。不要过于考虑其整洁性,只要考虑其收纳功能和腿脚身体的自由度就可以了。
5、阳台定位:不只是晾衣服

(图例)
现在家庭很少有运动休闲区域,尤其是小面积户型。但是家中一样应该有运动休闲的地方,地方再小也能挤出来。阳台不应该只是个晾衣服的场所,更不应该成为储物间,这里光线好、通风好,很适合做一个小型的运动休闲场所。
6、衣柜定位:在卧室摆一面墙的衣柜

(图例)
夫妻两口子的衣物,在卧室摆一面墙到棚顶的衣柜基本足矣,实在不行还有储物间可收纳衣物呢。不过由于家具是室内污染的重要污染源之一,其环保性一定要重中之重的考虑,尤其在卧室里。
7、热水器、地面定位:电热水器;复合地板或者地砖
关于热水器,我个人认为,储热式的电热水器对年轻的小两口更实用,如果女主人不是特别能用水的话,50升左右的热水器够小两口先后使用了。
关于地面,我认为由于年轻人忙于事业,没太多时间收拾家务,复合地板或者地砖这种易打理的材料更合适。

(整体效果图)

二、5年内准备要孩子的小夫妻
我国常见的年轻夫妻类型,结婚之后就要生个小宝宝。所以这类小夫妻的室内装修设计通常是围绕孩子来进行的。
1、大格局定位:一阳台、一卧室、一客厅、一客卧兼书房

(图例)
睡觉、看电视、看书上网、运动休闲都有独立的区间互不影响,同时每个区间都是可充分发挥其功效。两口子及孩子可以独立看电视、睡觉、上网、运动,绝对互不影响,保持了现代人应有的独立空间需求,同时又考虑到三人睡觉或者家里临时来人帮助伺候月子的居住要求。
2、卧室定位:主卧在一定时间内能摆放个小婴儿床,客卧能至少舒适的睡一个人

(图例)
孩子在襁褓期肯定是和大人睡在同一房间的,以方便随时观察和照料。一般都在主卧双人床边临时放个小小的婴儿床。所以对于主卧来说就是一定要摆放的下一个小婴儿床。同时,为不同时影响夫妻两人的休息,可以轮流看护孩子,另一人可在客卧不受打扰的休息睡眠。
3、客厅定位:实用宽敞,家具要没有坚硬的棱角和易碎物品

(图例)
孩子开始学走路的时候极易磕碰和摔倒,为避免孩子的伤害,不要在客厅摆放有坚硬的棱角的家具,如见棱见角的茶几、电视柜等。如果有,那么也要用海绵将所有棱角包裹起来。同时防止易碎物品被孩子碰到地上而伤到孩子,所以工艺品要避免易碎,如:玻璃花瓶等。
4、书房/客卧定位:要有很实用的客卧功能

(图例)
这时候的书房不仅要能看书,还要能舒适的睡觉,起到客卧的功能,为不值班照料孩子的一方提供良好的休息,或者为父母来伺候月子或者看孩子提供休息的地方。同时,需要考虑在客卧增加衣柜。书柜和书桌也可以考虑采用一体式的。
5、阳台定位:要考虑对主卧的保温效果

(图例)
阳台仍然可以具有:晾衣服、储物间、运动休闲功能。但考虑到孩子的存在,要注意对主卧的保温效果。这就要求阳台不可以再用开放式,要和主卧之间加道保温效果好的推拉门,建议以塑钢门为首选,因为它便宜又保温。同时,推拉门的玻璃要具有达标的厚度或者使其钢化,防止孩子误撞而导致玻璃破碎伤到孩子。
6、衣柜定位:卧室里的衣柜要增加容量

(图例)
因为添人进口了,所以衣物用具也将增加,必须增加衣柜容量。两种方案,一是将常见衣柜设计高度提高,让它直到顶棚;二是增加面积,可以考虑将门前挪一段距离,增加门后的空间而多摆放一组衣柜。
7、热水器、地面定位:电热水器是必备的,可考虑电和煤气兼用;使用地板
这里孙工更推荐储热式的电热水器,或者离水龙头很近的燃器热水器。我觉得把它们俩结合起来,电和燃气并用这样效果会更好,只是可能成本会略高。
这个问题还需要家里有小孩子的各位进一步的讨论,可以写在评论区哟。
家里有小孩子就要注意地表污染,时刻注意家里家具、油漆、涂料、装饰物、地板等所散发的污染气体的治理。

下面几种情况,只概括一下设计时的重点。
三、5年内父母将来长期同住
设计重点:书房变卧室;阳台变书房

(图例)

(图例)
四、5年内准备要孩子而且需要父母来帮忙带孩子同住
设计重点:书房变卧室,卧室里还要有子母床以方便父母照料孩子。由于卧室内老的老、小的小,家具还多,尤其要注意室内污染的情况。

(图例)
五、5年内准备要孩子而且需要雇保姆来照料孩子同住
设计重点:书房变卧室,卧室里还要有上下铺床以方便保姆照料孩子;阳台变书房

(图例)
六、如果是5年内不准备自己住用来出租赢利
设计重点:地面铺瓷砖;各空间独立分隔,不配或配简单家具让租户可自行调配。
更多装修经验,关注微信公众号“独道家居”即可查看。您也可以登录搜狐焦点家居装修论坛,查看各位装修达人的最新装修日记。


