点击上方“搜狐焦点家居”关注我们
“一”字形户型从整体上看就是个细长条,进深小,面宽大。为了减少在走道上浪费空间,脑回路正常的开发商会把门开在“一”字中间,让功能区依次排开、互不干扰,再来个南北通透的格局。

那要是碰上奇葩的“一”字户型呢?举个栗子:

这真是一个浑身都是毛病的户型啊!
空间浪费:户型结构又长又窄,房间跟浴室靠墙,门还开在“一”字头儿上,长过道是跑不了的,这浪费的空间让人心疼;
采光问题:西、南相邻两面采光,西晒;卧室和卫生间占用了南面两扇大窗,切断了本来就有限的光源;
功能区设置不合理:厨房餐厅位置尴尬,空间极其局促;客厅和厨房分列“一”字两头,从客厅去厨房取个啥需要横跨全屋;家里大门还正冲着洗手间!
对付这种反人类的奇葩小户型,【空间大师】自有办法。上改造图!

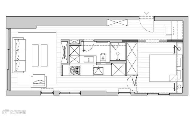
【空间大师】整个空间的最关键的改造措施,就是把厨房、卫浴、收纳空间整合到一起,移到了房间的中央位置,让卧室和会客区分别位于“一”字两端,用两条走廊双向连接卧室和客厅。这样做的好处有多大?
我们先来围观下卡在房间中央的核心区。

从客厅的位置看,面对着的是一面电视柜,三层收纳架+两个大抽屉,把可能在客厅里出现的电器和物品都收了起来。
电视柜跟前的玻璃方几既当茶几又当餐桌,省了不少地方,加上那面电视墙,就从30平空间里挤出来一个功能齐全、区域明确的小客厅。

在北面的这一道墙(进门右手方向左手方向),是卫浴空间的入口以及一条长过道。横竖这个“一”字户型都需要走廊,对小户型而言,空间浪费就是犯罪,【空间大师】在这里把墙面利用起来,做了个五层的收纳架。

而进门处的厨房和餐厅空间,被替换成了卧室。地处卧室的这面墙,还是被当作收纳空间,做成了一排“一”形衣柜。
可是一开门卧室一览无余,不是很尴尬么?

这点【空间大师】也替你设计好了,卧室入口处有一道巨大的推拉门,将门合上之后,卧室立刻变身密闭空间。如果有客人到访,进了大门只会看到一堵白墙。
这样布局的最大好处,在于让卧室和客厅分别占着“一”字两头,休息空间与公共空间被完全分隔开来,互不干扰。

于是,被卧室挤走的厨房,就从逼仄的角落移到了这个小房子的中心位置,紧挨着客厅。从此再也不用横穿整个房子去厨房拿吃的了;窄窄的一条走道,既是动线,又是厨房活动空间,还是整个空间最重要的通风、透光口。
如果在厨房开伙,还需要在卧室和厨房之间加一道推拉门,免得油烟满房子乱窜。

在这个30平奇葩户型中,【空间大师】把“一”字小户型必备的长线走廊,变成了“口”字形的环状,南面的窗口完全开放出来,让空气和光在室内自由流通,连视线也是360度无限延伸。
治恶疾须下猛药,【空间大师】大刀阔斧地重新划分了功能区域,打破了原有的传统格局。不需要刻意设计功能分区隔断,整个空间各区域功能的过渡,是通过中心区域四面转角来实现的。

为了让这30平米小户型显得宽敞明亮,【空间大师】在“一”字狭长户型中使用了白色和原木色等明度高、纯度低的色系,在视觉上有延伸感,整体风格极其简约,遵循“能少就少,能藏就藏”的收纳原则。
案例来自:來自以色列的設計公司 SFARO
设计师:Bosmat sfadia-Wolf及Nir Rothem


