

( From gooood)
超脱风格框架的局限,植入疗愈空间概念,回归人的心理感知,审慎思考人与空间的关系,探讨居住者真正的生活需求。
屋主要求屋子要空,希望通过设计把屋子放大,但「空不是无物」,而是将空间的感知与视觉以现代主义的手法来设计,舍去以往常见制式的空间定义手法,去掉无谓的装饰性语言,赋予场域最大的尺度与弹性。
▼
走廊以光作为设计重点
Lighting
此案公共区走廊以光作为设计重点。斜线条及线条延伸至立面代表光的照耀线条,以客制的点照明三角形灯盒,加上条状的平均照明结合。
从大门进耒左边留白墙面开了一些光沟,用光做引导及营造氛围的目的。

▼
大门左边留白墙面的光沟
Light groove
引用《圣经》里的“约翰8章12节”中的一句话「我是世界的光,跟从我的,就不在黑暗裡走,必要得著生命的光!」。在走廊的两个末端,把这句话用摩斯密码的方法,把电报语言转化成立面照明设计。

▼
在走廊中延伸的光沟
The oblique


▼
走廊两端立面照明设计
Telegram language

▼
客餐厅
Living and Dinning Area
客餐厅保持了良好的环状舒适动线,跳脱陈旧的家具摆放型式,改而从人为出发角度,思考著不同生活使用情境,摆置出具有人的温度的配置。

▼
客餐厅
Living and Dinning Area
空间的基础色调恰如其分的作为基底与延展的效果,相似色感却皆不同材质,如隐隐光泽的薄片磁砖或那具有手感温度的浅灰色漆面从墙面、柜门等部分堆迭,
衬托其上具有现代光泽感的不锈钢与氟酸明镜材质,并在素底上勾勒出灯沟,使动线、材质、光线得以凝聚。

▼
客餐厅
Living and Dinning Area
浅灰色漆运用于大面积柜门时,同样考量了使用的顺畅性,平推式的拉门五金具有良好的使用与空间运用,搭配柜内皆具有感应式灯光,使机能与使用舒适度都可同存,
且因採用平推式门片设计,门片关起时并不会产生厚度高低,使门片上的浅灰色手作漆材质在空间中的延续更加整体。

▼
客餐厅
Living and Dinning Area
“生命的光”的理念贯穿全室,光不仅是用于视觉效果,在空间的动线与层次上也发效果,串连公领域与私领域的金属天花板结合手喷压克力灯沟照明,在动线的两端,以圣经章节转译成密码型式,内敛的刻画其中的含意。



▼
厨房
Kitchen
回归到使用者的角度做思考,细腻思考烹调时的各项需求细节如动线、收纳位置、使用机能、灯光需求,材质运用延续整体空间调性,
后阳台门片採用大面百叶窗作视觉整合;干净利落,并利用光线从窗隙中透出,营造自然氛围。



▼
客浴
Guest Bathroom
客浴室面积不大,故特别选用大面白瓷砖做基底,并有不同的细节压花丰富层次,机能部分利用不锈钢勾勒整体功能介面,搭配绿意植栽,简洁却有生活亲近感。


▼
主卧室
Master Bedroom
回归到卧房深处,探讨人对材质的感受,採用泰国丝绷布做墙面包覆,细致的触感反射出柔和的浅灰色光泽,呈现静谧的空间感受,而非喧宾夺主般的跨大喧闹。
壁面上嵌入的不锈钢体壁灯,同时具有轮廓修饰与生活情境功能,可在夜晚中,微微点亮动线,帮助走动便利。


▼
主浴室
Master Bathroom
因应良好的双面采光落地窗,设置独立式的烤漆面盆柜结合悬吊镜箱,自然光能在空间流畅,不锈钢框体将收纳机能、管线、结构整合规画,在仿石材磁砖的互相衬托下,表现细致的质感层次。

▼
小孩房
Kid’s Bedroom
採用构图手法规画空间中的比例,利用蓝色壁板、白色木皮材质与灯光层次,呈现轻快的空间感受。


▼
小孩浴室
Kid’s Bathroom
延伸卧房轻明调性,壁砖构图式的排列几何图腾,墙面就像整张画布般,为空间活泼上彩。

▼
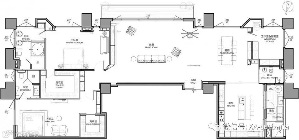
平面图
Plan

长按,识别二维码,加关注

