

这栋始建于1920年的两层公寓与毗邻建筑比肩而立,如今被改造为四层的建筑带有一个地下停车场、一个地下室、首层花园公寓和两层的阁楼公寓。
原有建筑40%的结构被损毁,主要损毁发生在建筑后部功能不齐全的房间,现今被四层的结构取代。
建筑的正立面的安妮女王灯窗,深栗色砌砖墙和木材木瓦都保留完好,建筑风格与当前街道的其他保持一致。
没有人会相信在这些精致立面后面的公寓房间会变成现代开敞的起居空间,其宽敞的露台可以使住客观赏城市景观,欣赏由伦佐皮亚诺,诺曼福斯特和英恩霍文设计的摩天大楼,且能瞥见悉尼优美的海港。
▼
后立面
Back elevation
后立面的剪刀形阳台倾斜一定角度方便住户欣赏街侧面的景观,同时使建筑后立面与周边建筑对齐。

▼
门口的台阶
Steps
复式公寓的正立面有木板裙形的窗户和新的台阶入口组成。
该设计的双重性也体现了居民的各种性格,城市化的建筑也富于世界历史文化和家庭故事,设计师热情的关注于当代艺术建筑和城市生活。
每一寸的设计都经过精心的思考,旨在将着个大房子融入进这个城市街区中,建筑中收集了兼收并蓄的家具和艺术品,项目建筑师Jane McNeill的木工设计也简洁精巧,旨在为用户提供尽可能多的储藏空间。更衣间内优雅的梳妆台也为室内增资添彩。

▼
楼梯
Stairs
阁楼公寓的楼梯通往上层的起居空间,为住户提供了愉悦的上上下下的体验。其连接了建筑的新老部分,并形成了横向和纵向的联系。螺旋状的楼梯形成了独特的自支撑体系不要钢梁的支撑。

▼
客厅
A living room
书架和电视与业主的收藏艺术品融为一体。

▼
书
Book
热爱文化的业主割舍不掉他的书籍,Jane为他设计了图书馆和书房配有舒适的扶手椅,藏在Jacobs梯子台阶后面。
台阶通往有景观屋顶露台、温泉池的玻璃屋顶,在放松的同时尽享身后的城市天际线景观。
住户可以在这个小图书馆读书,或是通过舷窗对着天空发呆。楼梯位于厨房餐厅的上方,通向屋顶。

▼
卧室
Bedroom
所有楼层都能欣赏到景观,主卧室通过一个缆道和城市相连,在住宅的阳台可以看到诺曼福斯特未完工的塔楼,SAANA即将增改的新南威尔士艺术画廊,Woolloomooloo码头的W酒店,和其余的城市景观。

书架和电视与业主的收藏艺术品融为一体,Euan McLeod 和Sali Herman的绘画作品与经典的设计家居相得益彰。

▼
厨房
Kitchen
色调统一的厨房面向露台开放

▼
卫生间
TOILET
主卧的浴室也能看到城市景观,弧形棱角的台面,大理石包围的浴池,纯白的墙面组成了一个纯净的浴室。

主浴室位于建筑的1920年代的公寓里面,地铁站风格的瓷砖紧密的贴合在一起,表现了那个时代的风格。

▼
手绘图
Sketch

▼
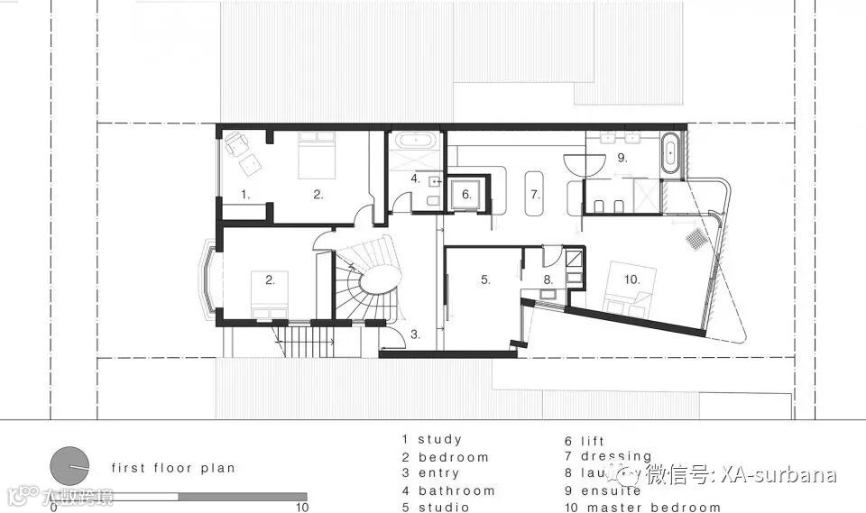
首层平面图
Ground Floor Plan

▼
一层平面图
1st Floor Plan

▼
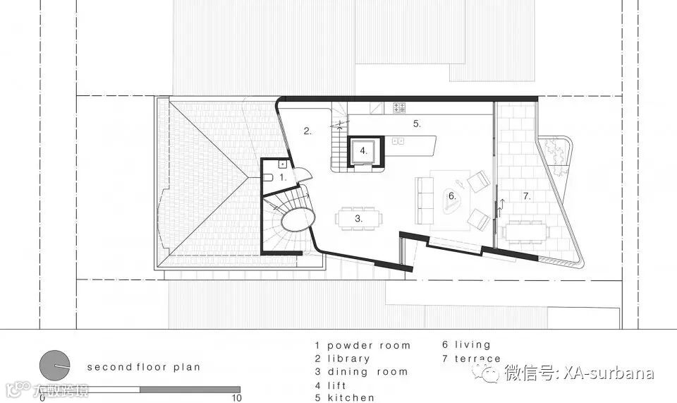
二层平面图
2nd Floor Plan

长按,识别二维码,加关注
▼
点击左下方“原文连接”
可进入在下预约

