

( From gooood)
新建筑位于当地 Les Pins 区域的中心,象征着对城市中心区的更新。
Vitrolles 像其他大都会周边的城市一样,有着过快的增长速度,成为了 20 世纪 60 年代城市化的受害者。
小镇从一千居民的普罗旺斯小村庄变成了由现代公寓楼组成城市,失去了地区的灵魂。
▼
建筑外立面的材质对比
Comparison of building facades
多媒体图书馆项目具有双重材质组成的外观。
底层的空间沿着平行与街道的方向排列,使用了全玻璃的幕墙,吸引市民进入。
建筑的上半部分采用了水泥浇筑的波浪形态,在一天之中产生了变幻的光影。
通过两种材质的对比,整个建筑体现出动态的轻盈感和具有冲击力的视觉感受。

▼
底层通透的公共空间
Public space
从建筑一侧广场,可以进入完全透明的底层空间。
通透的玻璃外墙向行人和市民清晰的展示了图书馆内部的部分功能:咖啡厅、展览空间和礼堂。
上层空间,建筑向外侧延伸,为人行道提供庇荫;同时在开放内部空间的上方后撤,保证室内的照明。

▼
具有张力的主楼梯
Main stair

▼
流线型的夹层
The smooth oval mezzanine

▼
流线型的内部空间
Interior space
建筑师在阅览室的设计中采用了大量的曲线形态,具有很大的流动性。
同时建筑师对光的使用给予了特别的关注:面向广场的南立面只有少数的开口以避免阳光直射,而北端的空间使用了较大面积的窗体以保证整个建筑中均匀的光照效果。




▼
建筑露台上的洞口
The openings on the terrace
具有动感的建筑外立面给图书馆带来了不断变化的空间形式,顶部水泥立面上的洞口象征晶体的形态。
在光线的作用下无论什么地点,无论是白天还是黑夜,建筑都呈现出不同的面貌。

▼
夜景
Night view


▼
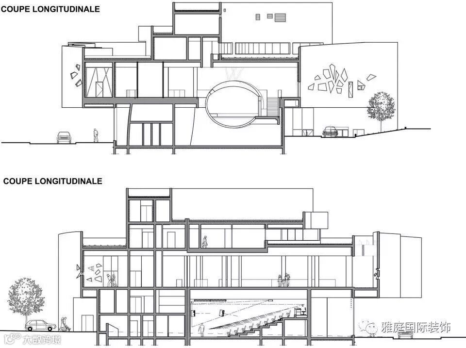
剖面
Section

长按,识别二维码,加关注

