

(来源于网络)
源于拥有八百余年历史的北京阜成门外钓鱼台风景区的“钓鱼台”品牌是钓鱼台国宾馆的传承。
它的选址一直都非常注重历史和文化的积淀,
从某种程度上说,钓鱼台酒店是一个窗口,旨在以中国神、国际范的府邸大宅概念,
从中国哲学和美学的底蕴出发,塑造世界一流的国际酒店品牌。
▼
酒店大堂入口
The Lobby
大堂是客人进入酒店的第一空间,是府邸的“客厅”。
设计由中国传统院落和园林得到灵感和启发,在平面布局中借鉴了院子的概念,隐含了北京的四合院和徽派建筑四水归堂的结构布局。

▼
钓鱼台酒店
Diaoyutai Hotel
正面的正屋设置了全日餐厅,右侧是接待台,左侧是大堂休息区。
采用了有传统韵味的院落式布局,空间层层递进,在纵轴形成了三进两廊的多层次布局。
对景,框景,端景等东方美学特点的造景手法,在此都有体现。

▼
三进的空间的第一进
Three-entry Hall of the Lobby
客人走过一层一层的空间,体味每段不同的氛围与微妙的差异,
逐步走向中心高耸的庭院,映衬着更深处落地窗外的自然绿意和美景,可感受空间的壮阔与气势。



▼
抽象的亭子,大堂吧,芳菲苑
Pavilion & The Lounge
承担着“客厅”功能的大堂共设计成三进格局,入口门厅两侧担当怀旧、观赏功能的轿厅及休息区是第一进;
穿过连廊,中间耸立着一座具有中式营造味道的抽象亭子的中央藻井庭院是第二进;
第三进是窗外即是酒店专属后花园的大堂吧(芳菲苑)及品聚餐厅,透过第三进能看到山石古松,别具风雅。




▼
品聚特色餐厅
Pinju, the Special Restaurant


▼
连接宴会区的走廊
Corridor
宴会区秉承中西融合的理念,以现代的手法,内敛的方式诠释一个极致韵味的写意空间。
空间硬装以浅蓝调子的石材与灰蓝木为主,暖白皮革为辅,穿梭于长长的宴会前厅径道上,
蓝色的菱形地毯扑入眼球,亦冷亦暖,以一种别样气质,开始抒写空间印记。

▼
宴会区
Banquet Hall
别于一般宴会区金光闪致的富丽感,却添置了清新雅致的动人气质,以全新的容貌始于人前。
内厅墙面以暖米色皮革轻轻铺置,嵌入金属细节配件,达2200高度的壁灯立墙,丰富了空间语言,
天花吊灯以一种波浪壮阔的形态凌驾于空中,有如钱塘江面波光粼粼,映射人前。
临江的全景玻璃窗格提取了古都杭州的文化元素,似乎将人们儿孩时期走过小巷窗台,仰头一望的窗格记忆在这一刻凝固……文化的动脉在空间弥漫。


▼
中式餐厅
Chinese Restaurant
从细微处发掘变化,董事会议室不再以严谨的姿态存在,
别具匠心地添置了橙红色,中式的书法以竖幅矗立与墙上,对墙以黑白水墨为底,
图面为西湖景致,面上刺绣红杉树,高挂的窗帘,铺置的地毯,暗红,深红,绛红,橙红,
不同的色系,不同的表皮肌理,组成不同的微差美,对空间做了非常有趣的诠释。



▼
露天户外平台
Outdoor platform
从宴会厅穿过露天户外平台,多功能厅以独栋形式屹立与此,小厅以会议为主,延续了宴会厅的设计理念,
以暖白皮革蓝色的地毯诠释整个空间,透过复古的玻璃门,隐隐约约透出一点点淡淡的光晕,
放眼看到一处吧台,在会议之余,宾客们可围台而坐,肆意享受忙里偷闲的慢时光。
随着旋转楼梯而上,二层休闲厅一窗一几,窗外的一草一木,显得精致惬意,满满的阳光洒至满屋,
有意留置这样一处空间,此时此境,闲暇之余,忘却城市喧嚣烦忧。


▼
客房入口的走廊
Entrance
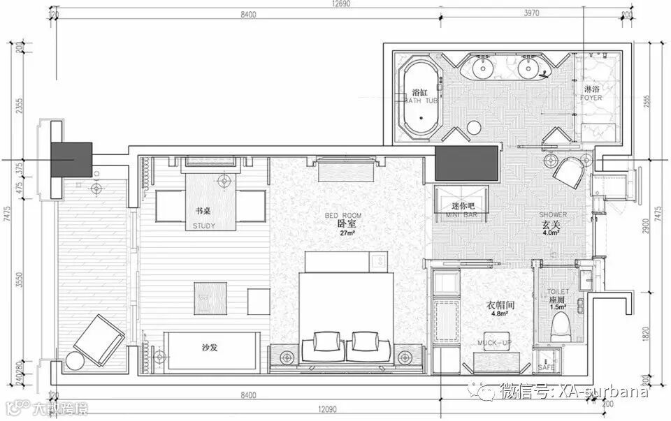
客房布局和空间组织基于江南园林的建筑特点,注重空间的延伸、渗透与分隔。
客房面积均在60平方米以上,每间客房均设计独立玄关,独立洗手间与步入式衣帽间,卧室睡眠区、书写工作区与会客区按照功能关系划分、

▼
属于江南的房子(客房)
Jiangnan house
配以中西兼容的家具、黑漆屏风、丝质扪布、锈镜等元素,丰富空间层次感,营造客房空间的灵动格局。
客房家具风格淡雅,素色沙发简练舒适,实木家具细节考究,
点缀中式工艺精湛的瓷器、漆器、以及花艺等软装艺术品,西式的迷你吧与中式大漆柜的融合,为客房增添了人文气息。


▼
客房平面
Guest Room’s Plan

▼
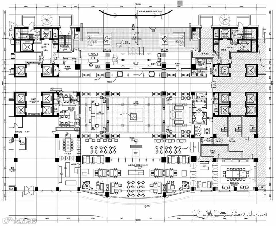
一层平面
Ground Floor Plan

长按,识别二维码,加关注

