
该案例为改善型住房,业主两口子性格内敛低调,在找我们之前,做了大量的准备工作。喜欢极简的干净清爽略带中式禅意的内涵。一个苏州博物馆让我们一拍即合!
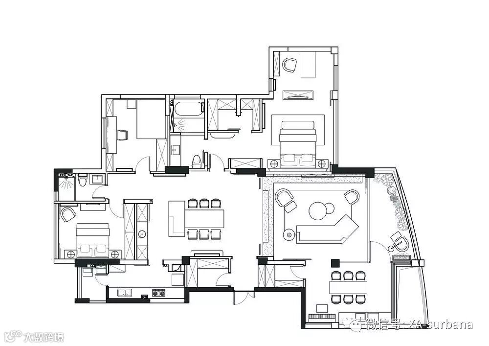
对于整个房型来说,面对东湖,南北通透,房子的各个功能区比较大,该户型的客餐厅区域开阔,互动联动整体明朗,通过空间细节的利用让整个空间表达出应有的节奏。




对于一个改善型住宅来讲,它的实用性会更加确切具体,业主在有一定生活经验的情况下总结出来的储物要求是必须满足的。
三个储物间和细节:进门的鞋帽间,茶室的储物间,主卧的衣帽间,分工明确,整理得当。各个房间也有自己各自的生活必需储物柜。




极具禅意古朴自然的木纹橱柜柜门使整个设计得质感得到升华。木质房门和进口水性乳胶漆的材质对比,使整个空间更加有质感。
大空间加入大量绿植的点缀,天堂鸟,琴叶榕等植物象征美好意义,充满文艺气息,使整个空间更具生气。



软装饰品上的定位以中式禅意茶文化为主题,精致茶具,名人真迹字画,赏植,赏画,品茶无一不体现主人的生活品质。
通过大量木质和棉麻材质的运用,增强空间的舒适和底蕴感,体现享受型住宅的精致和返璞归真的人文魅力。















长按,识别二维码,加关注
▼
点击左下方“阅读原文”
可进入在线预约

