
一 一
起 起
设 品
计 味
生
活

像牛一样拼命工作结果还是买不起大房子。
得,只能安慰自己,小户型设计好了照样住得舒适。别以为这是心理安慰,看下面三个单间小公寓的案例,符合逻辑的布局加上整体家具的运用,小单间也能大扩容。
01
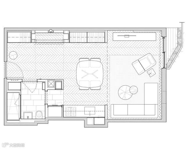
擅长处理小户型的纽约建筑师Christopher Kitterman的设计。41㎡的单间里,客厅、餐厅、厨卫、卧室一应俱全。

除了客厅处层高3.6m,其他部分层高为2.6m。
依照格局自然而然地将层高较高的地方布局为客厅,成为整个空间的重点。其他部分是厨房和可转换的卧室。

客厅外还有个小阳台。

公寓的色调中性明快,家具颜色柔和,采用核桃木人字拼花地板,整体温馨有家居感。

客厅对面的开放式厨房及毗邻的卫生间。

用餐区还隐藏了卧室的功能。

布帘遮掩住墙上的壁床,当帘子拉开,放下床后,一个简易的卧室就成形了。

整体设计看似简单,但布局简洁合理,居住起来体验一定很好。
02
巴黎设计师Geraldine Laferte几乎将所用家具折叠在墙上,成功打造了一个18㎡的超小公寓。

在这么小的空间里设计出功能齐全的家极具挑战性。
设计师最大化地压缩边角空间,通过客厅卧室二合一将不可能变为可能。


公寓可以不断变化来适应需求,整体柜有隐藏搁板,拉下就是一张书桌。
假如有客人光临,沙发底的两张凳子能拉出来提供座位。

这个公寓也靠隐藏床打造卧室,床就在整体柜和墙之间,天衣无缝,一丝空间都没有浪费。

整体柜还提供了床头柜的功能,储物很方便。



整体柜一直延伸到厨房旁,墙面上有可折叠餐桌,地下的小箱子拉出就是餐椅。

卫生间紧挨厨房,幸好有台阶作缓冲。
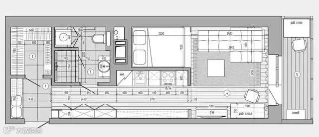
03
只有29㎡的公寓,用整体化的设计将卧室隔断开,处理得很干脆利落。床和厨房处于同一模块的设计虽属妙计,不过恐怕不太适合油烟过大的烹饪习惯。


整个空间以白色为底,搭配淡淡奶咖色的沙发和贯穿整个空间的木质元素,蓝色印花地毯,大幅装饰画,造型独特的悬挂灯饰,让空间一角变得柔软,充满艺术的美感。 选择低矮的家具,并且靠着墙边摆放,营造出宽敞的视觉效果。

进口处内凹的空间刚好可以安排玄关位,一盏吊灯让空间精细有格调。

利用狭长的过道设计出整排的储物柜,统一的色彩让柜体极为“隐蔽”,虽然因此缩小了过道的宽度,但是对于独住的屋主来说,也是丝毫不会影响生活。



与一般沙发+电视的客厅设计不同,电视机旁的书桌让客厅实用又紧凑。



设计师将卧室设计在了整个空间的中央区域,制造出一个包裹着功能区的“木质盒子”,盒子外部作为厨房使用,对于轻食料理的屋主来说,这样节省空间的做法再适合不过。
整体家具统一了空间的色调,一字型的开放厨房最大化地节省了空间。



卫生间在进门处的厨房隔壁,湿区集中,没有占用采光好的位置。
并且混凝土的大面积使用有着放大空间的视觉效果,黑白印花瓷砖为整体增添时尚感。


