
项 目:合正汇一城
面 积:170m2
主 设 计:朱俊翔.刘孟
合作 设计:廖俊鹏
软 装 :刘孟
本案采用简约美式风格,虽然没有欧式的精致,也没有地中海的风情,但是由于美式没有太多造作的装饰,不经意间传递出人们所追求的自由自在,随意不羁的生活方式。浪漫温馨,给人带来一种清新、安静之美。


















客创优品
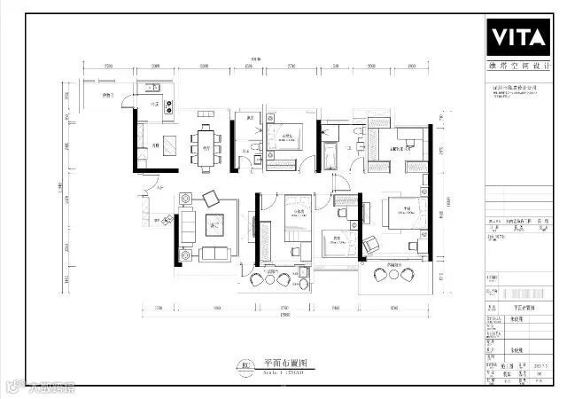
项 目:合正汇一城
面 积:170m2
主 设 计:朱俊翔.刘孟
合作 设计:廖俊鹏
软 装 :刘孟
本案采用简约美式风格,虽然没有欧式的精致,也没有地中海的风情,但是由于美式没有太多造作的装饰,不经意间传递出人们所追求的自由自在,随意不羁的生活方式。浪漫温馨,给人带来一种清新、安静之美。

















