《漂亮的房子》真人秀里,在改造完安徽的“中国传统村落”龙潭肖之后,吴彦祖又带着一帮人来到了,以海岛文化为主的“无人村”——舟山黄龙岛东咀头村。与改造设计师—关天颀一起进行舟山房屋爆改任务,这里山路多,且房子大多依山而建整个村子以石屋建筑为主不过大多数都已荒废,久无人住。

改造目标选择了海边两个空置近20年的房子,上下标高近4米左右,两间房朝向面南,山墙为东西方向,面对大海,主要是抵御海上台风侵蚀。


与之前的挑战相比,这一次的改造目标从一栋变成了两栋,而且房子因常年被潮湿的海风侵袭,房屋表面都布满了霉菌,整体难度增强。

因为两个老房子的开间空间较小,无法满足改造后客厅、餐厅所需的公共空间需要,不适合当代的社交空间尺度,关天颀设想建造新房来解决这个问题。

▲改造前

▲改造后
最后改造完工的房子,由大片的玻璃营造落地窗,主体为钢筋混凝土“盒子”组成,有上下两个庭院,看风景真是美哭辣辣辣~

▲认真画图的吴工


▲设计草稿

▲推敲模型比例


▲建筑模型
接下来欣赏一下
这栋和吴工颜值一样高的无敌海景房

▲项目位于舟山群岛的一个小村落
位于舟山群岛的一个小岛的村落,村里70%的房子空心化,选择了海边两个空置近70年的房子,上下标高近4米左右,岛上民居由当地石材建造,结构完整,坚固结实,屋面由于当时建造技术与材料的条件限制,部分坍塌…两间房朝向面南,山墙为东西方向,面对大海,主要是抵御海上台风侵蚀…

▲面朝大海的混凝土体量


▲临海立面
因为有两个很“结实”的老房子,设计过程是室内设计开始到室内设计结束,在仅仅三,五天的设计时间内来考虑建筑,室内,景观……各个空间设计的均衡,在建造时间仅有40几天的工期内(实效工期31天),如何达到符合拍摄要求还能够经营使用,在这个仅有几百人、各种生活生产物料依赖大陆的海岛上,选择适宜的建造方式,这是设计师考虑的重点。

▲站在菜地看房子


▲傍晚的房子
场地条件高低错落,海景风光如画,设计的想法一直再围绕着如何把海景引入室内,一直关心着房子里的人如何多角度的“看景”,对于房子长成啥样儿,反倒是不太关心,新设计加入的房子,位于低处老房子的东面,场地里仅有的一块儿可以用的地方,面向大海,正好弥补原来两个老房子进身开间尺寸都太小,不适合当代的社交空间尺度的硬伤,新房子用了钢筋混凝土为主要的结构,结构与空间完整统一,没有过多装饰,用混凝土作为构造与装饰,主要也是为了抵御海洋的极端气候所带来的侵蚀。

▲入口路径

▲二层庭院


▲从一层庭院看向客房

▲从庭院望向风雨廊
所以整个建筑是由两个老房子设计成的卧室,加上一个没有了屋顶,后来添加玻璃顶的老厨房改造成工作室。还有面朝大海新建的钢筋混凝土“盒子”组成,上下两个庭院,上坡主人房与下坡两间客房分开,以新建“盒子”的空间为纽带,作为共同的社交居家空间。


▲带有秋千的风雨廊


▲风雨廊连接着大海和山景
场地中“新盒子”是低调的,退后的,面对老房子近70年历史的“岁月积淀之美”,面对绝佳的自然景观,新添加的任何元素都显得多余与无力,所以新建的房子选择了【忘我】,尽量表达出尊重含蓄,并没有很多炫耀的成分,更多体现的是温情与敬意。“新”与“旧”之间相互理解尊重,和谐共处,当下的“审美”与旧日的“遗存”融合共荣。——关天颀


▲客 厅


▲餐 厅


▲夜晚的客厅
整体布局来看,岁月使两个老房子是与原有村庄融合为整体的,新建的盒子在村街当中人的“视点”里是毫不起眼的,甚至可以忽略“它”的介入,从老村街步入进来院落,不觉中才会发现这个全新的空间,把270度海景的“高潮”留在最后空间序列中,当然从海上看过来,那是个全新的面向当下与未来的肌体……

▲从楼梯看向主卧室


▲卧室的宽阔海景视野



▲浴 室

▲卧室休息区
参加这个节目,最主要是个建筑改造设计项目,而不是单纯室内空间改造,建筑设计考虑的问题可能要注意公众性问题,场地,环境,人文…室内设计可能很多解决业主本人的事情。盖起来房子还要能够使用,要把建筑,结构,机电,室内,陈设,景观各专业的协调完整,60天的设计与施工周期(舟山项目实际上是40天左右)是个巨大挑战,设计之初就要充分考虑技术,材料,工艺实施落地的可行性及完成度……

▲上下建筑连接处

▲屋顶平台


▲夜 景

▲航拍夜景
我们现在关注的建筑大多为宏大叙事的主题,很多毫不起眼房子与我们的生活息息相关,我们大多数人却又“视而不见”,我们身边的很多公共建筑200米视线的观感还好…但往往20米,2米…的尺度内又粗糙了很多,同时,我们又太过关注“建筑”本身的“好看”与否,忽略建筑所深处的环境,可能需要我们的房子要单纯,低调,含蓄,可能不需要那么的“英雄”…如果一个电视节目通过娱乐的方式传递给公众…使之关注到环境与建筑的关系,关心我们身处的人居环境,关注建筑美学给人们带来的空间愉悦与场所精神,“娱乐化”也没什么不好!

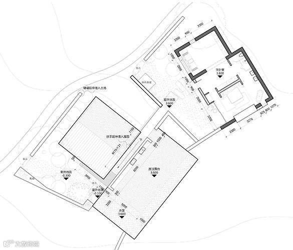
▲首层平面图

▲二层平面图
关注微信号:Kcypkj-123 专业设计师免费上门量房、免费设计效果图一套、获取装修报价



