对于一个三口之家来说,
50㎡着实是一种“蜗居”。
然而,梦想中的生活再遥远,
也可以一步一步去实现......

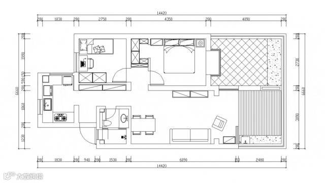
家中的平面布局
shuyan与老公Nono一家三口住在徐汇区,
一栋50㎡的老房子里,
虽然房子不大,
但还附带了一个20㎡的小院子,
整个居住环境十分舒适、温馨。
shuyan平时喜欢收集一些“老古董”,
并爱好园艺生活,
这个混合了多种装修风格的家,
便是她和老公精心打造的杰作。

同时,家居类杂志Houzz,
也给了她很大的启发——
原来布置家居并不拘泥于固有的形式,
木板、梯子等都可拿来做装饰品。

房子刚买来的时候,
由于设计的不合理,
室内光线极为昏暗,
很少有太阳光能照射进来。

院内的陈设不见一丝精致,
还是上个世纪90年代的模样。

为了改变整个家的面貌,
并布置成自己喜欢的样子,
整个装修的过程达半年之久。
玄关
玄关的设计非常合理,
采用了高柜、矮柜结合的储物方式,
为日常收纳留出足够的空间。

原来阻挡光线的墙壁被敲掉了,
用一面通透明亮的落地窗取而代之。
墙面整体也做了刷白处理,
令整个空间瞬间亮堂起来。

客厅、餐厅和办公区合为一体,处于一个开放式的格局之中。
老式木头家具虽然陈旧,
但一点也不突兀地融入进来,
岁月的沧桑历历可见,
反而流露出一种气定神闲且耐看的味道。


没有任何的高端和定制,
所有的软装都是一件件精挑细选而来。

另一侧的墙壁也被充分利用起来,
放了一张铺了麻布的桌子、
一台电脑、一盏可以灵活转动的台灯......
形成了一个小型的办公区。

局部细节的设计,
采用了简约的日式风格。
所有装饰大多强调其功能性,
但不乏清新脱俗的自然气息。



木头元素几乎随处可见,
给人一种置身自然的感觉。

老式高柜的左侧还有一些位置,
刚好可以容得下一张折叠沙发。

平时躺在这里看看书,
或者看看窗外的风景,
一整天的心情都会好起来。

想要变成茶几也毫无压力,
在沙发上垫一张木板就可以了!


隔间内的日式厨房,
没有安装门作为隔断,
而是用简单的门帘来划分空间。
这个设计也是real随性```

厨房是U型结构,
容量上比较有限,
但也承载起了一家人的幸福生活。

各种各样的零碎物品都被归置起来,
让厨房看起来更加干净整洁。

由于吊顶不够高,
所以他们放弃了吊柜的设计。
而是在洗菜区旁边放了一个两层的矮柜,
有效提高空间的利用率。


小而精致的家,
也可以通过巧妙的设计,
充分利用我们不容易挖掘的角落,
进行空间扩容哦!
比如厨台与冰箱之间的空隙,
也放得下一个置物架。


这面墙原本是打算敲掉的,
现在是最佳的展示区。
背后的嵌入式的大书柜,
也营造出满满的亮点。

主卧带着时下流行的飘窗,
床头的装饰自成一景。

飘窗也是一物两用,
不仅有着广阔的视野,
还有底下强大的储物功能,
可以收纳家里很多杂物。

一旁的儿童房,
简简单单又充满童趣。

墙面上所挂的画作,是小朋友自己画的。
屋主的儿子特别喜欢玩具,
于是床的下面形成了一块游戏区域,
丝毫不占空间。

爬往床上的小楼梯设计,
在无形之中给孩子增加了行进中的乐趣。

所有的物品都摆放得整整齐齐,
在家具的安排上尽量节约空间,
还要保证小孩的安全。

家里的唯一一间洗手间,
用花色的窗帘进行了“干湿分离”。
洗脸池后面的背景墙上,
也延伸出更多的储物空间。

绿意蓬勃的小院,
勾起了多少城市人的向往。

白天在小院里浇花种草,
好不惬意!

夜里开起小夜灯,
一家人围在一起看星星,
也不失为一种浪漫。


房子不一定要多大,
只要用心安排自己的生活,
精简的家也可以打造成小别墅,
让你体会最美的风景就在身边。
关注微信号:Kcypkj-123 专业设计师免费上门量房、免费设计效果图一套、获取装修报价



